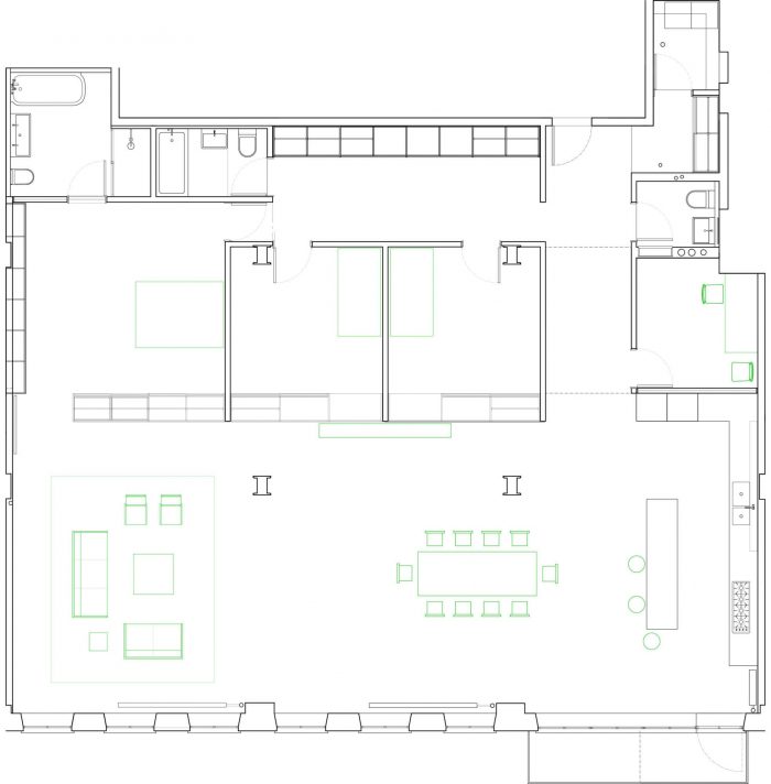
这个格林威治村的阁楼以前是作为一个艺术家的工作室。改造后,为一对夫妇和他们的两个孩子创造了宽敞的卧室和隐藏的储藏室。降低开放式客厅和厨房的窗台,使公共区域的阳光最大化。带有反光玻璃窗的矮墙让日光进入卧室,同时保留了隐私。
This Greenwich Village loft was previously used as an artist’s studio. The renovation created generous bedrooms and hidden storage for a couple and their two children. Lowering the windowsills in the open living room and kitchen maximizes sun in the common areas. A low wall with reflective glass transom windows allows daylight into the bedrooms while preserving privacy.




南面的窗户被改造成门,以创造一个小的户外阳台。每个孩子的房间都有壁橱和一个内置书桌,卧室后面的大储藏室作为私人房间之间的流通。将私人区域分隔在一面墙后面,保留了空间的宽敞、工业化的特点。
The south window was converted into a door to create a small outdoor balcony. Each child’s room has closets and a built-in desk, and the large storage room behind the bedrooms serves as circulation between the private rooms. Partitioning the private areas behind a single wall retained the spacious, industrial character of the space.





Architects: Neil Logan Architect
Area : 2568 m²
Year : 2010
Photographs :Dean Kaufman
Manufacturers : Louis Poulsen, Benjamin Moore, Dinesen, Stone Source
City:NEW YORK
Country:UNITED STATES