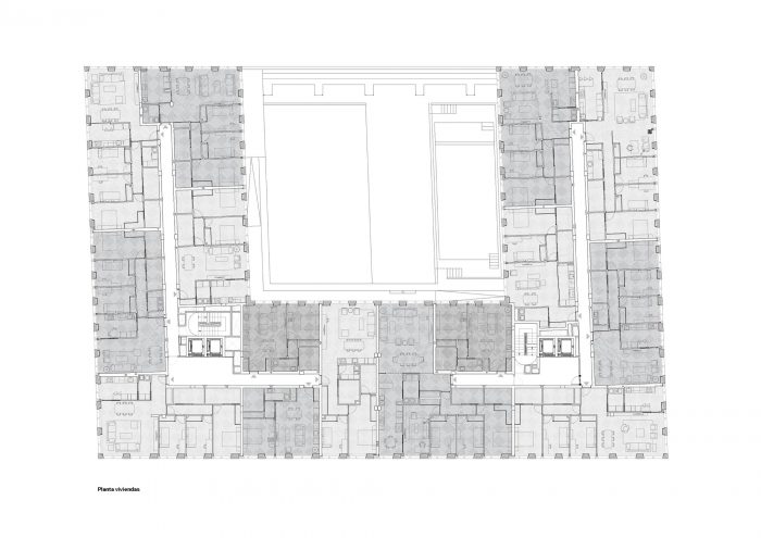
该合作社是基于90年代从圣玛尔塔隐居地周围的城市化中出现的住宅区的地块之一,紧邻蒙特-德-康克索。在目前的城市规划中,住宅建筑被开发成U字形的开放街区,包括供私人使用的内部院落。
The Cooperative is based on one of the plots of the residential estate that emerged in the 90s from the urbanization of the surroundings of Santa Marta´s Hermitage, next to Monte de Conxo. In the ordination proposed by the current urban planning, the buildings for residential use are developed in open blocks in a U-shape embracing inner courtyards for private use.



该建筑显示了对这一配置的兴趣,被认为是康波斯特拉住宅区的紧凑型街区的翻译,利用了这样一个事实:当开发一个单一用途(住宅)时,有可能对从街道到屋顶的体积进行统一处理。
Showing interest in this configuration, the building is considered as the translation of the compact blocks of Compostela’s residential composition taking advantage of the fact that when developing a single-use (residential) it is possible to give a unitary treatment to the volume from the height of the street to the roof.

因此,提出了一个清醒和紧凑的建筑,其立面是通过在整个表面上的均匀的网格孔组织的。从这个恒定的节奏中,住宅单元的内部分布被确认,通过插入每一个孔中的野生花岗岩屏风,使其表面的其余部分完全开放和玻璃化,在每一个停留中挑出一个实用的元素--窗户。
As a result, a sober and compact building is proposed, whose façade is organized through a homogeneous grid of holes in its entire surface. From this constant rhythm, the interior distribution of the dwelling units is recognized, by means of screens of wild granite that are inserted in each one of the holes, leaving the rest of its surface totally open and glazed, singling out a practicable element in each stay, the window.


通过这种方式,形成了大型的外墙画布,在这些画布中,一个总体的秩序正在变得细微,空心到空心,空心到空心,由每一个背后的现实来决定。建筑的形状是这样的,直到它到达屋顶,在那里它打破了它的正式规则性,提供了高度和视野所提供的所有可能性。
In this way, the large façade canvases are formed, in which a general order is becoming nuanced, hollow to hollow, void to the void, by the reality behind each one of them. The building is shaped like this until it reaches the roof where it breaks its formal regularity to offer all the possibilities that height and views provide.


在这里,他们将创造一系列的花园空间,与复式住宅相连,这些复式住宅被赋予了私人的景观角落,有一个阳光露台和朝向城市南部的特权景观,创造了一组迷宫般的建筑形象,这是住宅区的特点,尽管这里受到允许的最大体积的限制。
Here they will create a series of garden spaces linked to the duplex houses, which are endowed with private landscaped corners with a sun terrace and privileged views towards the south of the city, creating a set of labyrinthine images of the building, characteristic of residential blocks, although here conditioned by the maximum volume allowed.

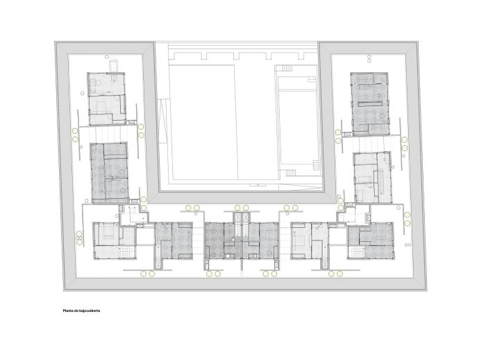
在底层,有一个公共区域,旨在为建筑的所有用户提供一个真正的客厅。从外面可以通过一个开放的空间,与社区花园保持连续的视觉关系,到达通往高层的入口。
一个日光浴室、一个儿童游乐区、一个花园和一个游泳池将使开放空间充满内容,同时还有遮蔽的空间,在树荫下,辅以一个多功能的封闭空间和一个儿童房。
On the ground floor, there is a common area that is intended as an authentic living room for all users of the building. Access from outside is through an open space in a continuous visual relationship with the community garden to the access portals to the upper floors.
A solarium, a children's play area, a garden, and a swimming pool will fill the open spaces with content, along with sheltered ones, in the shade, complemented by a multipurpose enclosed space and a children's room.

















Architects: Carbajo Barrios Arquitectos
Area: 11698 m²
Year: 2018
Photographs:Luis Díaz Díaz
Manufacturers: Cortizo, GCP, Otis
Lead Architects: Manuel Carbajo Capeáns, Celso Barrios Ceide
Drafting: David Camiño Quintela, Laura Pardo, Beatriz Asorey
Signage And Furniture: Cenlitrosmetrocadrado
Structural Design: HH Arquitectos
Engineering: Obradoiro Enxeñeiros
Cooperative Management: Grupo Arial
Country: Spain