2015年,Ogic被选中在属于里昂大都会和国家铁路公司SNCF的土地上建造一个多功能区。一个竞争被启动,ITAR和SUD被选中。他们与Wilmotte & Associés建筑师事务所合作,后者被Dentressangle公司选中建造 "Part Dieu Central "办公大楼。
In 2015, Ogic was selected to build a multi-purpose block on land belonging to Lyon Metropole and the national railway company, SNCF. A competition was launched and ITAR and SUD were selected. They were associated with Wilmotte & Associés Architectes, chosen by Dentressangle for the construction of the "Part Dieu Central" office building.




该行动的设计团队由3个建筑师团队、1个景观设计师、6个工程咨询公司、1个CSPS和1个检查办公室组成,与SPL Lyon Part-Dieu和其城市规划师AUC紧密合作。Émergence Lafayette项目首先是一个团体经验和一个共享项目。
The design team for the operation was composed of 3 teams of architects, 1 landscape designer, 6 engineering consulting firms, 1 CSPS and 1 inspections office working closely with the SPL Lyon Part-Dieu and its urban planner, AUC. The Émergence Lafayette project was first and foremost a group experience and a shared project.

三个建筑师团队提交了一个单一的建筑许可证,并共同合作,成功实现了该项目。由当地公共城市管理局--AUC--建筑师--客户研讨会在上游发起,这个集体的故事贯穿了整个设计、施工和拨款阶段,有一个共享的BIM模型、共同的生产时间和共享的地点。
The three teams of architects submitted a single building permit and worked together to successfully achieve the project. Initiated upstream by the Local Public Urban Authority - AUC - architects - clients workshops, the collective story continued throughout the design, construction, and appropriation phases with a shared BIM model, common production times, and shared locations.

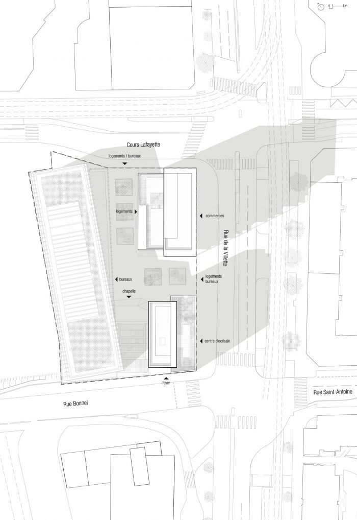
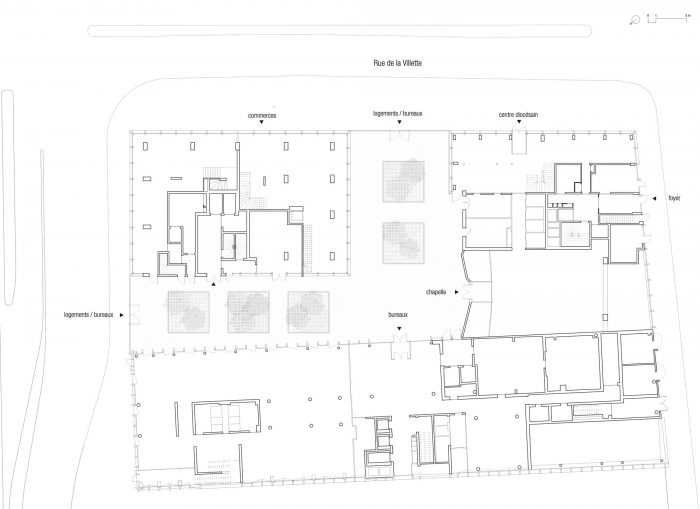
多样性。社会多样性和混合使用是这个雄心勃勃的项目的目标。我们面临的挑战是,通过一个由办公室、住房、商店和服务以及一个小教堂组成的混合用途项目,吸引居民回到Part-Dieu区的中心。
Diversities. Social diversity and mixed uses were the goals of this ambitious program. The challenge was to attract inhabitants back into the heart of the Part-Dieu district through a mixed-use program of offices, housing, shops, and services, as well as a chapel.

经济适用房的几类购买者(首次购买者、主要住宅购买者、投资者)为多样化的居住人群提供了可能。社会住宅(由Entreprendre pour Humaniser la Dépendance支持)旨在满足几种情况的需求:单亲家庭、来自儿童福利机构的年轻人、依靠奖学金的学生、或经济困难的年轻人。
Several categories of buyers (first-time buyers, main residence purchasers, investors) for affordable housing offer the possibility of a diverse population of occupants. The social residence (supported by Entreprendre pour Humaniser la Dépendance) is designed to meet the needs of several profiles: single-parent families, young people coming from child welfare services, students depending on scholarships, or young people experiencing economic hardship.

在青年工人住宅的底层,创建了协同工作空间,使用户围绕工作聚集在一起,从而创造一个真正的专业互动场所。它在劳动力的年轻成员之间建立了一种联系,以促进他们通过职业道路的融合。
On the ground floor of the young workers' residence, coworking space has been created to bring together users around work and thereby create a genuine place for professional interactions. It creates a link between the young members of the workforce to facilitate their integration via the professional path.

该项目创造了一个多功能的生活空间,白天和晚上都很有吸引力,人们可以住在138套公寓之一,在办公楼里工作,生活和享受商店和服务,并在教区中心或小教堂聚会。白天所有人都可以进入的小巷是该行动的基础。它将城市与街区连接起来,使人们可以进入办公室、小教堂和住房单元。它在Cours Lafayette和Rue de la Villette之间创造了一个和平的人行通道。
The program creates a multifunctional living space, attractive both day and night, where one can live in one of the 138 apartments, work in the office building, live and enjoy the shops and services, and gather in the diocesan center or the chapel. The alleyway, accessible to all during the day, is the operation’s foundation. It connects the city to the block by giving access to the offices, the chapel, and the housing units. It creates a peaceful pedestrian passage between Cours Lafayette and Rue de la Villette.


所采用的材料创造了建筑物之间的统一和对话。色调和材料的统一是通过房屋体量的石质混凝土和三个项目基地的布局来实现的。它通过共同实施的石灰色铝制细木工板得到加强。在城市街区中,由于其交错的结构和两个叠加的街区,办公大楼很容易被识别。
The materials employed create unity and dialogue between the buildings. The uniformity of shades and materials is achieved with a stone-colored concrete for the housing volumes and the layout of the three programs’ bases. It is enhanced by the shared implementation of stone gray aluminum joinery. Within the city block, the office building is easily recognizable thanks to its staggered structure and its two superimposed blocks.















Architects: ITAR Architectures, SUD Architectes
Area : 10027 m²
Year : 2022
Photographs :Sergio Grazia, Gaela Blandy
Clients : OGIC, Dentressangle
Technical Team : Marco Rossi Paysagiste, Iliade, Arcadis, Socotec, Synacoustique, L. E. A., Arcora, Enexco, Equaterre, AIA Management
Companies : Rougeot, Perrier TP, Eiffage, Etantec, Amalgame, Simonetti, MCI Rocha, Doitrand, CNE, Gérard Plomberie, Medt, Parquet sol, Dani carrelage, Rolando Poisson, Lenoir, Kone, Nature
City : Lyon
Country : France