该项目建立在Pré l'Arpent住宅区的前露天停车场上,该停车场主要被残破的车辆占据。这个住宅区于1974年由Andrault和Parat机构建造,由一个三层的阶梯式建筑组成,其中心是一个一楼的停车场。这个具有高度遗产质量的建筑见证了一个时代,这些建筑师试图通过中间住房来调和集体和个人住房的质量。他们在全境设计了几个变体。
The project is established on the former open-air parking lot of the Pré l'Arpent housing estate, mainly occupied by wrecked vehicles. This housing complex, built in 1974 by the Andrault and Parat agency, consists of a three-story stepped building with a first-floor parking lot at its heart. This construction of high heritage quality is the witness of a time when these architects sought to reconcile the qualities of collective and individual housing through intermediate housing. They designed several variations throughout the territory.



像许多社会业主一样,在土地稀缺的推动下,Valophis栖息地正在寻求通过密集化其房产的自由空间来发展其住房存量。在这里,该项目包括在这个遗产建筑的屋檐下建造一个大约20个住房单元的新建筑,以延续Pré l'Arpent住宅区。选择这个概念是为了故意避免任何模仿的策略,或者相反,肯定的双重性,这将导致在这两种情况下,现有建筑的项目被削弱。因此,我们的方法是建立一个简单的体量,用一个兼容和离散的词汇,非常清醒的。
Like many social landlords, pushed by the scarcity of land, Valophis habitat is seeking to develop its housing stock by densifying the free spaces of its properties. Here, the commission consists of raising a new construction of about twenty housing units against the gable end of this heritage building, in the continuity of the Pré l'Arpent housing estate. The choice of this conception was to deliberately avoid any strategy of mimicry, or on the contrary of affirmed duality, which would have led in both cases to a weakened project of the existing building. The method was therefore to build a simple volume with a compatible and discrete vocabulary, with great sobriety.



我们提出了一个三层的建筑体量,悬挂在一个容纳停车场的底层空隙上。为了与相邻梯田的水平层相遇,该体量的水平线由带子标记。始终本着共鸣的精神,这些水平线之间的外墙的填充物是由长度很长的白色混凝土板组成,让人联想到邻近的砖。
We proposed a built volume of three levels suspended on a ground floor void housing the parking lots. In order to encounter the horizontal strata of the neighboring terraces, the volume has horizontal lines marked by bands. Always in a spirit of resonance, the filling of the facades between these horizontal lines is composed of concrete slabs of white color of very long length, reminiscent of the neighboring brick.

在这种寻找删除的过程中,开口的大小是相同的,并被安排在一个严格规则的垂直和水平的双重网格中。最后一层,强烈的后退,减轻了建筑的重量,使其具有水平的轮廓。一个混凝土盖,加强了整体的弓形效果,延伸了这个阁楼的正面。第一层的材料是原始的(混凝土和砖石),地板上是白色的。
In this search for deletion, the openings are of identical size and are arranged in a double vertical and horizontal grid strictly regular. The last level, strongly set back, lightens and gives the building a horizontal silhouette. A concrete cap, intensifying the effect of the bow of the whole, extends the front of this attic. The materials are raw on the first floor (concrete and masonry) and white on the floors.

正是这种材料、颜色和体积的清醒,以及在对邻近建筑的建筑语汇的重新解释中--规整、水平性的表达、垂直托架、当前外墙的双材料性--我们认为这是对Andrault和Parat的运作的必要致敬。
It is this sobriety of material, color, and volume, as well as in the reinterpretation of the architectural vocabulary of the neighboring building - gauge, expression of horizontality, vertical bays, bi-materiality of the current facades - that we believe is the necessary tribute to the operation of Andrault and Parat.


为了不影响突出的地下水位,在建筑的两边布置了两个下沉式的保留草坪,大部分是植被。它们产生了一个高质量的半湿润景观,在生态上是良性的,鼓励生物多样性的发展。从街上到大厅是通过一条穿过水花园的小路。为了使雨水的自然路径可读,阳台和露台的边缘有长方形的栏杆,配备了链子,引导雨水进入两个凹陷的草坪。
In order not to impact the outcropping water table, two sunken retention lawns, largely vegetated, have been laid out on either side of the building. They generate a quality semi-humid landscape and are ecologically virtuous, encouraging the development of biodiversity. Access to the hall from the street is via a pathway crossing the water garden. In order to make readable the natural path of rainwater, the balconies and terraces have rectangular barbicans on the edges equipped with chains that guide rainwater to the two recessed lawns.

同样,屋顶的水通过公寓的技术护套,沿着停车场的高楼底层流淌,贴着柱子往下流,最后流入铸铁排水沟,流向水花园。
Similarly, roof water passes through the technical sheaths of the apartments, runs along the underside of the high floor of the parking lot, goes down against the posts, and ends up in cast-iron gutters that flow into the water gardens.

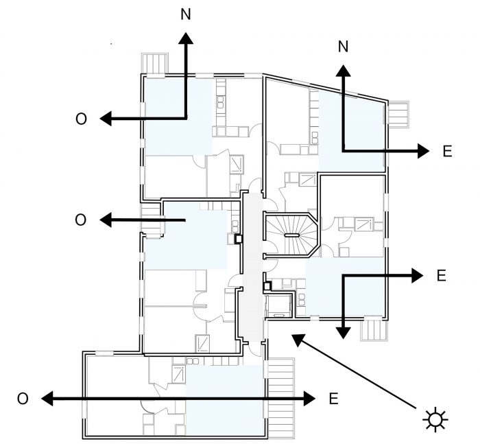
居住的舒适性主要是由公寓的精确的生物气候学实施产生的。因此,在每一层中,五套公寓中有四套有双重方向或交叉。唯一的单一方向的公寓是向西开放的。双向的公寓被设计成由阳台延伸的角落客厅。楼梯的设计也是为了生活的舒适性:在电梯前安装了一个大的窗台,使其成为一个明亮和友好的空间,有利于居民之间的交谈。
The comfort of living is primarily generated by a precise bioclimatic implementation of the apartments. Thus, on each level, four out of five apartments have a double orientation or are crossing. The only mono-oriented apartment is open to the west. The double-oriented apartments are designed with corner living rooms extended by balconies. The landings are also designed for living comfort: a large bay window installed in front of the elevator makes it a bright and friendly space conducive to a conversation between residents.















Architects: Benjamin Fleury Architecte-Urbaniste
Area : 970 m²
Year : 2021
Photographs :David Boureau
Manufacturers : KEIM, Atlas Schindler, Kronimus, Sfel, Tarkett, Alphacan, Atlantic, Desvres, EPSILON, Joricide, LALLEMANT, Lady light, Velux
Structure Consultants : I+A
Project Architect : Jean Roch Hamel
Site Supervisor : Jean Roch Hamel
Economic Consultant : Ateec
Hvac, Mep Engineer : Synapse
City : Valenton
Country : France