位于奥克兰的获奖公司Medium Plenty为西奥克兰服务不足和代表不足的社区设计了一个以包容性为主题的创业创新中心和多方位工作空间。Medium Plenty与Kapor Capital(一家专注于投资代表性不足的企业家的基金会)合作,改造了一个15,000平方英尺的工业仓库,创造了一个平易近人且灵活的空间,供青年团体和初创企业使用,作为科技机会的桥梁。
The oakland-based, award-winning firm, Medium Plenty, designed a start-up innovation hub and multi-faceted workspace for the underserved and underrepresented communities of West Oakland themed around inclusivity. Working with Kapor Capital, a foundation focused on investing in underrepresented entrepreneurs, Medium Plenty transformed a 15,000 sq ft industrial warehouse to create an approachable and flexible space to be used by youth groups to start-ups to serve as a bridge for opportunities in technology.





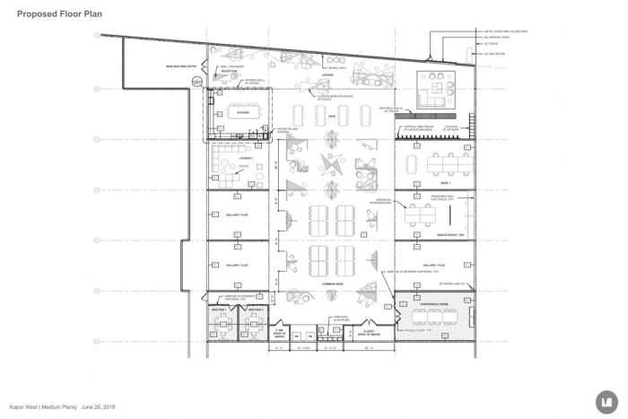
设计动作要求通过各种多功能空间和家具创造出最大的灵活性,并创造出开放的专用办公室、大型会议区、公共厨房和休息区,从而激活这个大空间。Medium Plenty与社区开发商和艺术家Binta Ayofemi合作完成了这个项目。
The design moves called for activating the large space by creating maximum flexibility through a variety of multi-functional spaces and furniture and creating open and dedicated offices, large conference areas, a communal kitchen, and lounge area. Medium Plenty collaborated with community developer and artist Binta Ayofemi on the project.

目前的租户和Kapor的受益人Promise对空间的公共性很感兴趣。这家初创公司由Prince的前经理Phaedra Ellis-Lamkins和Diana Frappier创立,旨在通过在线应用程序和工具帮助低收入的黑人和棕色人远离刑事司法系统。Promise有一半的用户在湾区,因此他们发现1901 Poplar是他们公司总部的理想地点和空间,作为与社区联系的一种方式。灵活的设计为他们提供了单独或作为团队工作的机会,通过建立头脑风暴区。
Current tenants and Kapor benefactors, Promise, were interested in the communal aspect of the space. The start-up, founded by Phaedra Ellis-Lamkins, a former manager for Prince, and Diana Frappier, aims to help low-income Black and Brown people stay out of the criminal justice systems through online apps and tools. With half of their users in the Bay Area, Promise found 1901 Poplar to be an ideal location and space for their Corporate Headquarters as a way to connect with their community. The flexible design offers them the opportunity to work individually or as a team by building brainstorming areas.














建筑师:Medium Plenty
面积:15000平方英尺
年份:2019年
摄影:Melissa Kaseman
制造商:AutoDesk, Caesarstone, Cle Tile, Douglas Fir
客户:Kapor Capital
城市:奥克兰
国家:美国
Architects: Medium Plenty
Area: 15000 ft²
Year: 2019
Photographs: Melissa Kaseman
Manufacturers: AutoDesk, Caesarstone, Cle Tile, Douglas Fir
Clients:Kapor Capital
City:Oakland
Country:United States