原有的和新的结合在一起。一套位于市中心的20年代末的公寓,供一个成长中的家庭使用。该公寓被分为两部分。东南面的房间有过渡性的房间,原始的木地板和双翼门。
Joining of the original and the new. An apartment in the city center from the late 20s for a growing family. The apartment is divided into two tracts. The southeastern tract with transitional rooms, original wooden floors, and double-wing doors.



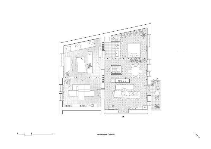
西北区面向院子,显示了过去无数层的装修和加建。设计的重点是西北部的房舍。
The northwestern tract faces the yard, showing numerous layers of renovations and additions from the past. The design focuses on the northwestern tract.



空间概念、价值的体现以及公寓的社会性都很明显。我们开放,消除障碍和去物质化,只增加必要的元素。我们希望有更多的空气、景色、感情和鲜花。一个共享时刻的框架。我们通过将空间运动分布在一个循环模式中,创造一个 "无限的空间"。我们不希望走到走廊的尽头,转身就回去了。
The spatial concept, the manifestation of values, and the social aspect of the apartment are evident. We open, remove barriers and dematerialize, adding only necessary elements. We want more air, views, feelings, and flowers. A framework for shared moments. We create an "infinite space" by distributing spatial movement in a circular pattern. We don't want to come to the end of a corridor, turn around and go back.



我们的灵感来自大自然,我们鼓励玩耍。设计中没有风厅,打开前门后,我们直接来到公寓的中心地带,一家人聚集在一起—大桌子前。我们专注于创造计划,同时保持从共享和社交到最亲密的空气。
We are inspired by nature and we encourage playfulness. There is no wind lobby in the design and after opening the front door we come directly into the heart of the apartment where the family gathers - to the big table. We focus on creating plans while maintaining airiness from shared and social to the most intimate.


















Architects: Kilo / Honc
Area : 113 m²
Year : 2021
Photographs :Matej Hakár
Manufacturers : Berker, Element, Nesia, Osmont
Lead Architects : Mgr. art. Richard Kilo, Ing. arch. Matej Honč, MgA. Bára Antošová
City : Bratislava
Country : Slovakia