这个项目是关于在嘈杂和平静之间创造一个平衡的氛围。
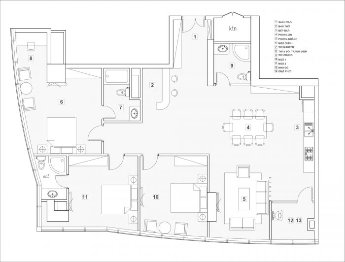
让我们来介绍一下我们的心血结晶。2415EW是欧洲之窗大楼的第二高的公寓。它位于市中心的一个角落,那里总是繁忙而拥挤。在另一边,公寓的外墙是由玻璃制成的,所以它有一个大的视野和充分的自然光。然而,有一间卧室掩盖了一部分景观的视野。这就是我们在装修公寓时面临的挑战。
This project is about creating a balanced atmosphere between noisy and calm.
Let us introduce our brainchild. 2415EW is the second highest apartment of Euro Window building. Located at a corner of city center, in which always busy and crownded. On the other side, the facade of flat was made from glass so it has a large view and full of natural light. However, there was one bedroom hid a part of the sight to see landscape. That was our challenge when renovate apartment.




这个公寓的主人告诉我们,他喜欢音乐,他希望有一个生活空间,但也是一个娱乐室,以享受声音和葡萄酒。我们的解决方案是重新安排计划,拆除一些墙壁,使之成为一个开放的生活空间。我们用1/2的面积做厨房和客厅,也把它们放在公寓的中心。我们称其为 "放松空间"。混凝土墙似乎是这个公寓的一个弱点,但是,我们认为如果把它变成一个镜面包层会很好。事实上,镜面墙的效果非常好,它在空间中创造了一个平视点,没有起点和终点。主人房和卧室最好的部分是,我们使用磨砂玻璃作为房间的隔断。对空间的影响是带来了从东到西的无尽视野,使家庭成员始终保持联系。
The owner of this flat told us, that he loves music and he wants a space to live but also an entertainment room, to enjoy sound and wine. Our solution here is rearrange the plan, remove some walls to make an open-living space. We use 1/2 area for kitchen and living room, also placed them in center of apartment. We called that a "chill out space". A concrete collum seem a weakness of this flat, however, we thought it would be great if turned it into a mirror cladding. In fact, that mirror collum work really well, it creat a paranoma view in spaces, there is no start or end point. Best part of master and bedrooms is that we use frosted glass as the room divider. The effects on spaces are bring out an endless view from East to West and keep family members always connected.

公寓的主入口被酒吧(也是厨房的岛)挡住了。我们希望大厅能引导人们逐渐进入空间,而不是直接进入。唤起人们的好奇心,然后再由背景迸发出来。说到厨房岛,它是由拉丝铜整体制成的。独特的设计和闪亮的材料,使吧台成为公寓的亮点。
The main entrance of apartment is blocked by the bar (also the kitchen island). We want the hall will lead people into the spaces gradually, not directly. Evoking curiousness then bursting by the context. Talk about the kitchen island, it made from brushed copper monolithic. With an unique design and a shiny material the bar become highlight of apartment.

总的来说,我们为这个公寓选择了一个极简的设计,我们还在空间中交替设置了实心箱和开放式箱。每件家具的选择和设计都是经过仔细考虑的。确保了家具与空间的统一。我们可以说2415EW是一个绝对方便生活的公寓,完全是一个舒适的居住场所。
Overrall, we choose a minimal design for this apartment, we also set solid box and open box alternately in the spaces. Each furniture was carefully consider to chosen and designed. Ensuring furnishings unite with spaces. We can say 2415EW is an absolutely convenient apartment for life and totally a comfortable place to live.


















Architects: DaoHo Studio
Area : 146 m²
Year : 2020
Photographs :Nguyen Thai Thach
Air Conditioning : BTB-Aircon
Interiors (Bar) : Handdecor
Lighting : Alis Viet Nam
Country : Vietnam