所有的房间(客厅和卧室)都面对着早晨的阳光,并有金属栅栏保护,作为遮阳板和元素,为近邻提供隐私。厨房和厕所面向(炎热的)西侧,但6米外的建筑体块却大大地保护了它们免受西侧的影响。
All the rooms (living rooms and bedrooms) face the morning sun and are protected by metal grilles that work as sun shades and elements to provide privacy vis-à-vis the close neighbors. Kitchen and toilets face the (hot) west side, yet a building block 6m away protect them from the west considerably.


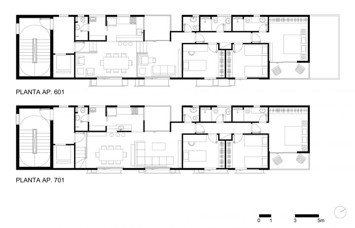
蒙得维的亚285号是一块鹅卵石,这是由当地严格的建筑条例决定的围墙。一个公寓有一个更大的计划(5楼),悬臂朝向唯一不受建筑条例约束的体积的一面(后院)。在截面上,该项目探索了法规允许的最大高度,并产生了不同的天花板高度,房间内的三步楼梯类似于房子的内部空间;3米的悬臂突出了5楼的差异(更大的窗户,更大的天花板高度,更大的卧室,阳台等)。
285 Montevideo is a cobblestone as a consequence of the envelope determined by the strict local Building Regulations. An apartment has a larger plan (5th floor), with the cantilever toward the only side of the volume not bounded by the Building Regulations (the backyard). In section, the project explores the maximum height allowed by the Regulations and generates differentiated ceiling heights, with three-step stairs inside the rooms resembling the internal spaces of a house; and a 3m cantilever accentuating the 5th floor’s differences (larger windows, larger ceiling height, larger bedroom, balcony, etc).


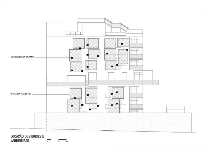
外墙有带白色排水管的种植箱;栅栏式遮阳板也为喷泉草(Russelia equisetiformis)的生长提供支持。
The façade has planting boxes with white drainage pipes; the grilles sunshades also working as support for the fountainbushes’ (Russelia equisetiformis) growth.

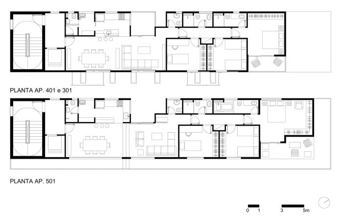
该计划非常传统,是为传统家庭设计的,在巴西贝洛奥里藏特这样一个对新思想相当封闭的城市,这是一个重要的事实。
The plan is very conventional and designed for a traditional family, an important fact in a city rather closed to new ideas, such as Belo Horizonte, Brazil.


































Architects: Vazio S/A
Area : 480 m²
Year : 2008
Photographs :Leonardo Finotti , Vazio S/A, Eduardo Eckenfels
Manufacturers : Gyotoku, Madepal, Marmoraria Triângulo, Portobello, Serralheria Paramirim, Tecnocril
Project Team : Leonardo Rodrigues, Ligia Milagres
Principal Architect : Carlos M Teixeira
City : Belo Horizonte
Country : Brazil