2+U为西雅图市中心的社区创造了一个空间。该项目位于西雅图艺术博物馆旁边,通过将塔楼提升到85英尺高的街道上,将滨水区、商业区和艺术区编织在一起,在行人范围内提供连通性,并通过街区的视野看到艾略特湾。
2+U creates a space for the community in the heart of downtown Seattle. Located next to the Seattle Art Museum, the project knits together the Waterfront, Business District, and Arts District by lifting the tower 85 feet above the street, providing connectivity at the pedestrian scale, and views through the block to Elliott Bay.




2+U的概念在建筑的形式和西北地区的特征之间建立了强有力的联系,从而形成了一个真正的太平洋西北地区的建筑。2+U与迪勒酒店共享街区,其设计敏感地回应了1890年的标志性砖结构。四座低层建筑围绕着塔楼底部的街道边缘,映射在迪勒酒店设定的基准线上,并以分层的赤土外墙来回应其材料特性。
The concept for 2+U creates a strong connection between the building's form and the Northwest's character, resulting in a true Pacific Northwest building. Sharing the block with the Diller Hotel, 2+U is sensitively designed to respond to the iconic 1890 brick structure. Four low-rise buildings hold the street edge around the base of the tower, mapping onto the datums set by the Diller, and responding to its materiality with a layered terracotta façade.


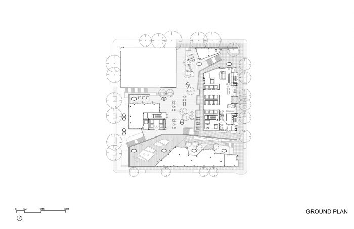
一个创新的设计策略--将裙楼提升至高于街道水平的85英尺--创造了24,000平方英尺的露天、行人友好的公共空间,在那里社区可以聚集充满活力的零售商。2+U庆祝西雅图市中心的艺术和文化,并提供1100平方米的专用创意和工作室空间供当地艺术家免费使用,重点是新兴艺术家和服务不足的社区。
An innovative design strategy – lifting the podium tower 85 feet above street level – creates 24,000 sf of open-air, pedestrian-friendly public space with dynamic retail where the community can gather. 2+U celebrates the arts and culture of the downtown Seattle neighborhood and offers 1,100 sf of dedicated creative and studio space for local artists to use free of charge, with a focus on emerging artists and underserved communities.


上面的塔楼提供全年的天气保护,类似于树冠的温暖和舒适,下面的动态露天零售体验则是公众的聚会空间。城市村有五个接入点,融合了当地的零售、艺术、文化和自然,提供了16000平方英尺的餐厅和零售空间。城市村的设计是一个非常多孔的和受欢迎的行人体验,它还可以容纳食品卡车,以及在公众可进入的广场上的娱乐和大型艺术机会。在拆除过程中从现场抢救出来的重型木梁被重新利用为长椅,以提供座位。
While the tower above provides year-round weather protection akin to a tree canopy's warmth and comfort, the dynamic open-air retail experience below serves as a gathering space for the public. With five access points, the Urban Village fuses local retail, art, culture, and nature to offer 16,000 square feet of restaurant and retail space. Designed to be a very porous and welcoming pedestrian experience, the village also accommodates food trucks, as well as entertainment and large-scale art opportunities within the publicly accessible plaza. Heavy timber beams salvaged from the site during demolition were repurposed into benches to provide seating.


丰富的户外空间提供了身体和精神上的好处,提供了呼吸新鲜空气的机会,绿色植物,以及普吉特海湾和奥林匹克山的景观。2+U直接位于西雅图市中心的主要自行车道网络上,并提供一流的自行车通勤基础设施,包括可容纳125辆以上自行车的室内自行车库、电动自行车充电、个人储物柜、淋浴和桑拿设施,以及自行车维修店。
Abundant outdoor spaces offer physical and mental benefits, providing opportunities for fresh air, greenery, and views of the Puget Sound and the Olympic Mountains. 2+U is located directly on Seattle’s primary downtown bicycle lane network and offers best-in-class bicycle commuting infrastructure, including conditioned indoor bike storage for 125+ bikes, eBike charging, individual lockers, shower and sauna facilities, and a bicycle repair shop.


与一个致力于可持续发展、高性能解决方案的多学科团队合作,该项目从可持续发展愿景会议开始,形成了设计过程。有影响力的目标包括最大限度地利用日光,优化能源效率,同时超过严格的西雅图能源法规,并尽量减少用水量。该项目最终获得了LEED-CS铂金奖和健康-安全认证。
Collaborating with a multidisciplinary team committed to sustainable, high-performance solutions, the project began with a sustainability visioning session that shaped the design process. Impactful goals included maximizing daylight, optimizing energy efficiency while exceeding the stringent Seattle Energy Code, and minimizing water usage. The project ultimately achieved LEED-CS Platinum and Well Health-Safety Certifications.


这座530英尺、100万平米的甲级写字楼包括一个19层的裙楼和38层的塔楼。侧面核心区允许开放的楼板,普吉特海湾的景色一览无余,塔楼的厕所和主要出口楼梯都有自然光。该塔楼的能源效率部分是由主动式冷梁系统实现的。多层的生物蓄水池和19层平台上的耐旱花园都有助于减少径流。
The 530-foot, 1 million GSF Class-A office tower comprises a 19-story podium and 38-story tower. A side core allows for open floor plates with unobstructed views of Puget Sound and natural daylight in the tower's toilet rooms and main egress stairs. The energy efficiency of the tower is made possible in part by an active chilled beam system. Bioretention planters on multiple levels and a drought-tolerant garden on the level 19 terrace serve to mitigate runoff.















Architects: Pickard Chilton
Area : 1000000 ft²
Year : 2020
Photographs :Benjamin Benschneider, David Sundberg/Esto
Manufacturers : C.R. Laurence, Kalzip, Kaswell, Kawneer, NBK North America, NanaWall, Rulon International, Mosa, Pandawall, SIREWall
Architect of Record : Kendall/Heaton Associates
General Contractor : Skanska USA Building Inc
Structural Engineers : Magnusson Klemencic Associated
MEP Engineer : WSP Norge, WSP
Landscape : Swift Company
Principals : Anthony Markese FAIA, Jon Pickard FAIA, William D. Chilton FAIA,
Project Managers : Nancy Clayton AIA, Adrienne Nelson AIA
Project Team : Kathleen Maciejko AIA, Tanner Sharpe, William Traill, Darin Barnes, Rachel Howlett AIA, Andrew Gorzkowski AIA, Anne Lissett AIA, Daniel Raznick AIA, Justin Cochran
Client : Skanska Commercial Development
Enclosure : All New Glass
Retail Consultant : Graham Baba Architects
City : Seattle
Country : United States