这个项目是一个家庭自我更新的变化的结果,从中诞生了回收现有家庭财产的想法。干预措施旨在使现有的休闲空间适应新的生活动态和需求。
This project is the result of changes within a family that renews itself, from which the idea of recycling the existing family properties is born. The intervention seeks to adapt the existing leisure spaces to new living dynamics and needs.



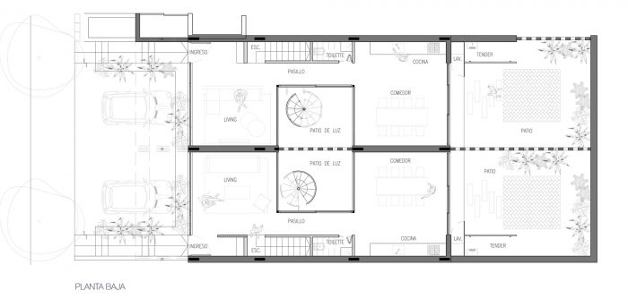
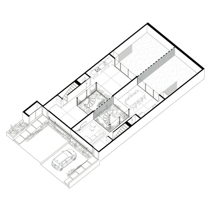
在一块曾经是足球场的南北狭长的土地上,两个成对的三层住宅--三联体--在纵向和横向上都得到了发展,将项目引向后院,重新制定了阿根廷典型的中庭住宅模式,其中天井的空隙是所有室内空间的主要衔接点。
A dense program on a narrow north-south lot that used to be a soccer field, two paired three-level houses - triplex - are developed both vertically and horizontally, directing the program towards the backyard reformulating the typical model of Argentinian casa de medio patio (half patio house), where the void of the patios is the main articulator of all the interior spaces.


这两座房子位于科尔多瓦Suquía河附近的一个住宅区,其中一个现有的工作室房子与三层楼房相邻,并以功能和视觉方式完成了这组建筑。
The two houses are located in a residential neighborhood near the Suquía river in Cordoba, where an existing studio house that adjoins the triplexes accompanies the new blocks and completes the set of buildings in a functional and visual way.

第一层沿三个天井衔接,浓缩了日常休闲活动:客厅、厨房和餐厅,以及后面的服务点。前面的通道停车天井,中间的绿色天井作为两栋高层辣妹屋的垂直连接,后面的天井则结合了植被和休息空间。
The first level is articulated along three patios and condenses daily leisure activities: a living room, kitchen & dining room, and a service spot in the back. A front access parking patio, an intermediate green patio that serves as a vertical connection for the two high-rise chorizo houses, and a back patio that combines vegetation and resting space.


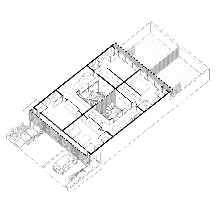
第一层是最私密的一层,包括两间套房卧室,完成了南北立面,被沿中间天井的循环所缓冲,还有一个工作桌角,实现了大流行后的新生活方式。
The first floor is the most private level including two en-suite bedrooms that finish off the north and south facades, cushioned by circulation along the middle patio and a working desk corner that enables the new post-pandemic ways of life.


第三层也就是最后一层是一个形态上的破坏性结构,由金属板覆盖,加强了水平的不连续性,同时在垂直方向上统一了三层高的房屋。这种美学与砖块形成对比,后者与相邻的阁楼对话,直至第二层。
The third and last level hosts a morphologically disruptive structure covered by sheet metal that reinforces horizontal discontinuity while vertically unifying the triple-height houses. This aesthetics contrasts with the brick blocks that dialogue with the adjoining loft up to a second level.

一个工作室和两座三层楼房将整个建筑群封闭起来。这个综合体同时显示了它的连续性和不连续性。
One studio and the two triplexes close the complex. A complex that reveals itself as continuous and discontinuous at the same time.


















Architects: Choza. Espacio de Arquitectura
Area : 3229 ft²
Year : 2022
Photographs :Andrés Dominguez
Manufacturers : EGGER, JOHNSON ACERO, ACINDAR, Aluar, Bará Cemento, Bukara, Egger, Peirano, Tello SRL, Vasser, ferrum
Lead Architects : M. Clara Amoedo Fiore, Agustina Calamari
Construction Management : Centeno Centeno Ingeniería + CHOZA. Espacio de Arquitectura
Collaborators : Pilar Flores, Gonzalez Pablo Santos, Josefina Ciocca
Structural Project : Edgar Morán
Builder : Adrián Calderón Construcciones
Landscaping : Hilda Moratello
Equipment : Conbell
Aluminum : Henisa SA
Smithy : Mariano Vergara
Microcements : Lilian Suarez
Coatings : Leonardo Coronel
Program : Conjunto de viviendas
City : Córdoba
Country : Argentina