Gavá项目是一个由Aram基金会开发的社会住房区。
自2009年项目开始到2013年工程完工,公共和银行的帮助遭受了如此深刻的变化,主要是对需要经济适用房的公民,以及促进这种类型活动的基金会或公司,造成了不稳定。
The project of Gavá is a block of social housing, developed by Aram Foundation.
Since the project's inception in 2009 until the completion of the work in 2013, public and bank’s helps have suffered such deep changes that have destabilized, mainly to citizens in need of affordable housing, and also, to foundations or companies that promote this type of activity.



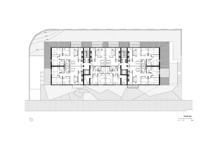
这是一个多家庭住房建筑,由30个家庭组成,每个工厂6个,有2和3个卧室。
It is a multi-family housing building consisting of 30 homes, 6 per plant, of 2 and 3 bedrooms.

该项目是在 "Riera de San Llorenç "区的部分计划中开发的。该项目是在 "Riera de San Llorenç "部门的部分计划中开发的,根据其管理规定,使用的是一般受保护的住房计划。
The project is developed in the Partial Plan of the sector "Riera de San Llorenç" Gavá with use of generally protected housing scheme, as provided in its management.

该规划提供了一个与街道相隔的特定容积;与此平行,该场地有一个陡峭的斜坡,优化了停车层,并为其提供通风和自然光。
The planning provides a specific volume alienated the street; parallel to this, the site has a steep slope that optimizes the parking floor and provides it with ventilation and natural light.

该项目在其结构、围墙和设施的一些元素中采用了工业系统。
The project is built with industrial systems in its structure, enclosure and some elements of its facilities.

结构是由混凝土制成的,基于承重墙、柱子和空心楼板。波纹板的轻型通风外墙覆盖了整个建筑,使其具有连续性、独特的质感和失重感。该外墙由每个住宅的宽敞阳台定制。
The structure is made of concrete, based on load-bearing walls, columns and hollow core slabs. A light ventilated facade of corrugated sheet covers the entire building, allowing continuity, a unique texture and weightlessness. The facade is customized by the spacious balconies of each dwelling.

提出了集中设施的系统,以确保最大的效率;太阳能电池板提供生活热水并支持加热。每个住房的控制和监测计划被引入,以确保平稳运行和能源管理。
Systems of centralized facilities are proposed to ensure maximum efficiency; solar panels feed domestic hot water and give support to heating. Control and monitoring of each housing is planned is introduced to ensure smooth operation an energy management.









建筑师:Pich-Aguilera Architects
面积:2763平方米
年份:2014年
照片:Simón García
集团董事:Pau Casaldáliga, Ángel Sendarrubias.
项目总监:Jordi París
实习合作者:Salvador Girvent
设施:Avant
测量和预算:Leopoldo Varas, LVCAT
最终成本:1.966.090,05欧元
发起人:Fundació ARAM
负责建筑师:Felip Pich-Aguilera Baurier. Teresa Batlle i Pagès
城市:Gavà
国家:西班牙
Architects: Pich-Aguilera Architects
Area: 2763 m²
Year: 2014
Photographs: Simón García
Group Directors:Pau Casaldáliga, Ángel Sendarrubias.
Project Director:Jordi París
Intern Collaborators:Salvador Girvent
Facilities:Avant
Measurements And Budget:Leopoldo Varas, LVCAT
Final Cost:1.966.090,05 €
Promoter:Fundació ARAM
Architects In Charge:Felip Pich-Aguilera Baurier. Teresa Batlle i Pagès
City:Gavà
Country:Spain