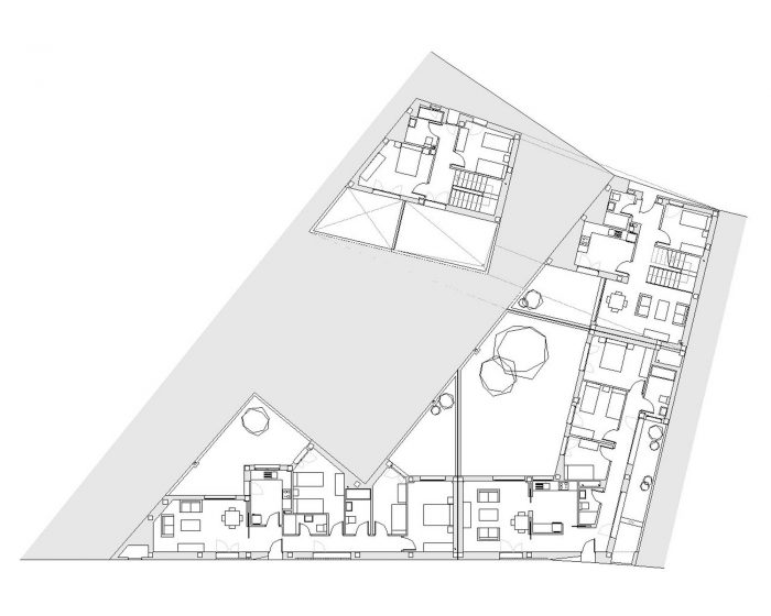
应在两个相邻的地点共设计五栋房屋,这些房屋形态各异,地形坡度可达4米,与其他建筑物的隔墙相邻,并与几条街道相连。由于是分层住宅,这些房屋的可用面积应限制在80平方米,如果可能的话,其中一些房屋将只开发一层,而且它们将按照建筑法规的规定,考虑到其他法规,采用坡屋顶。
It should be designed a total of five houses in two close sites, being those of a different morphology, with topographic inclines up to four metres, adjacent to other buildings' dividing walls and orders to several streets. The houses, because of being subisidized housing, should have a limited area of 80 m² usable area and if it is possible, some of them will be developed in just one floor, and they will have sloped roofs as building regulations state taking into account other regulations.



高度上的强烈差异会在房子之间产生重要的台阶,这就是为什么它有明确的意图,加入和软化这些台阶与建筑项目的共同周围,考虑到这是唯一的一个,而不是作为增加重复的元素,所以常见的独立屋。它的目的是作为倾斜的屋顶,作为房屋的前面,作为一个独特的包围,使用相同的颜色为他们的纹理(如果我不得不说,我的颜色,我对巴达霍斯地区的房子的记忆,是白色的)。
The strong differences in heights would produce important steps between the house, this is the reason why it was had the clear intention of joining and softening those steps with a common surrounding of the building project, considering this as the only one and not as the addition of repetitive elements so common in the detached houses. It was intended as the sloped roofs as the front of the houses, acted as a unique enveloping, using the same colours for their textures (If I had to say with a colour my memory about the houses of Badajoz area, is the white.)

在这个环境中,这些房子和其他任何方式一样,有一个庭院,被认为是一个生活和私人的元素,对大多数底层的房间都指向。几乎可以说,户外的视野并不在意,在许多情况下,它们的开口只是为了保证与院子交叉的空气流通。
The houses, like in no other way in this environment, have a courtyard, that is conceived as a living and privative element towards most of the rooms of the groundfloor are pointed. It could almost be said that the vision to outdoors does not mind and that their openings are conceived in many cases, only to guarantee the crossed air circulation with the yards.


为了获得,一方面,他们的隐私的froundfloor房间,和另一个,给更多的重要性和clearnees与纹理,它是设想一系列的覆盖百叶部分的围墙背后,不同的开口被隐藏。
With the intention of obtaining, on the one hand, they privacy of the froundfloor rooms, and on the other one, to give more importance and clearnees to the with texture, it is conceived a series of covering louvers part of the enclosure behind which different openings are hidden.


有不同角度的教育的特殊性,并将它们集成在不同的城市场景,他们是一部分,保留在所有的proyect一个共同的语言。
The peculiarity of having different perspectives of the edifications and integrated them in the different urban scene of which they are part, preserving in all the proyect a common language.

















建筑师:Antonio Holgado Gómez
摄影:Jesús Granada
工料测量师:Daniel Tena Velarde
建筑公司 : Foncal Villanovense, S.L.
开发商 : Government of Extremadura (Spain)
建筑师:Antonio Holgado Gómez
城市 : Cabeza del Buey
国家:西班牙
Architects: Antonio Holgado Gómez
Photographs: Jesús Granada
Quantity Surveyor:Daniel Tena Velarde
Building Company:Foncal Villanovense, S.L.
Developer:Government of Extremadura (Spain)
Architect In Charge:Antonio Holgado Gómez
City:Cabeza del Buey
Country:Spain