在每个项目上,我们都会专门研究背景。我们对项目的近、远、历史和社会学环境特别感兴趣。这些数据 "喂养 "了设计,并共同形成了一个架构。由于我们发展的背景很少是同质的,我们的写作往往是混合的。ZAC Erdre-Porterie位于南特的极限附近,靠近奇特的自然景观。这里有重要的林区:保护该地的品质是该行动的挑战之一。BN4街区位于北面的林间步行道和南面的新学院庭院之间,那里保留了许多树木。
On each project, we work specifically on the context. We are particularly interested in the close, distant, historical and sociological environment of the project. These data "feed" the design and come together to form an architecture. As the contexts in which we evolve are rarely homogeneous, our writing tends to be hybrid. The ZAC Erdre-Porterie is located near the limit of Nantes, close to singular natural landscapes. Important wooded areas are present: conserving the site's qualities is one of the challenges of this operation. Block BN4 is located between a wooded pedestrian path to the north and the courtyard of the new college to the south, which has preserved many trees.




城市的桩子。重拾城市生活,优先考虑行人和聚会场所;找回仪表和可欣赏的高度;提供视野开阔、方向良好的住房;通过其比例和材料使建筑与周围环境同步;为外墙和更广泛的项目排序,以创造多孔性、透明性和节奏。
Urban stakes: Reclaiming urban life, giving priority to pedestrians and meeting places; To find back the gauges and appreciable altimeters; To offer housing that is generous in terms of its views and good orientations; Synchronize buildings with their immediate environment through their proportions and materials; Sequencing the facade and more broadly the project to create porosities, transparencies, rhythm.

植入。这个地块,一个真正的城市缝合的地方,被想象成更可持续的、更理想的、对景观和环境更开放的。许多视觉透明的存在在场地内产生了一个多孔性。这一特点有利于新用途的出现。城市密度和环境问题也是该项目中的独特元素。该项目被划分为3个不同的元素。这种安排允许在整个岛内创造孔隙,并对建筑进行排序。该地块的中心部分通过创造一个树木茂盛的草地,重新描述了该地块的森林环境。它构成了一个居民从露台上可以看到的装饰。在不创造大量用途的情况下,它首先是住宅外部氛围的一个组成部分。从街道的突破口留下了对这个空间的视角,允许与邻里环境的视觉连续性。
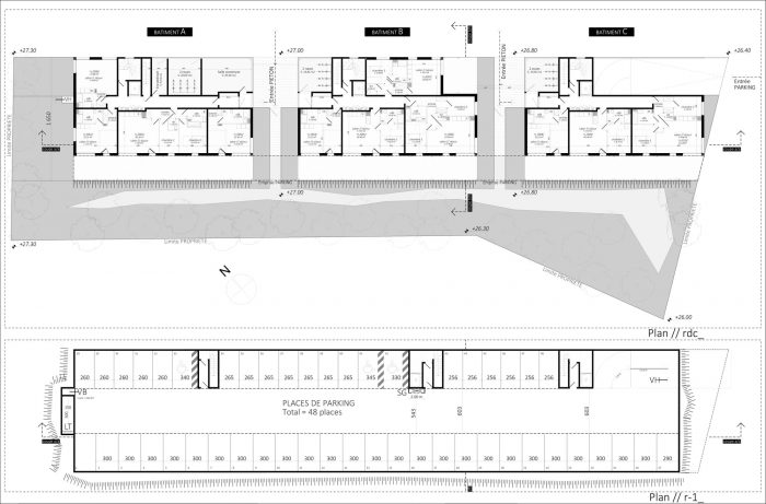
Implantation. This plot, a true place of urban sewing is imagined to be more sustainable, more desirable, more open to the landscape and its environment. The presence of numerous visual transparencies generates a porosity within the site itself. This feature facilitates the appearance of new uses. The issues of urban density and environment are also distinctive elements present in the project. The project is devided into 3 distinct elements. This arrangement allows the creation of porosities throughout the island and the sequencing of the buildings. The heart of the plot retranscribes the wooded environment of the site, through the creation of a wooded meadow. It composes a decor that will be seen by the inhabitants from the terraces. Without creating a large number of uses, it is above all a constituent of the exterior atmosphere of the dwellings. The breakthroughs from the street leave perspectives towards this space, allowing visual continuity with the neighbourhood environment.

植入。这个地块,一个真正的城市缝合的地方,被想象成更可持续的、更理想的、对景观和环境更开放的。大量的视觉透视的存在在场地内产生了一个多孔性。这一特点有利于新用途的出现。城市密度和环境问题也是该项目中的独特元素。该项目被划分为3个不同的元素。这种安排允许在整个岛内创造孔隙,并对建筑进行排序。该地块的中心部分通过创造一个树木茂盛的草地,重新描述了该地块的森林环境。它构成了一个居民从露台上可以看到的装饰。在不创造大量用途的情况下,它首先是住宅外部氛围的一个组成部分。从街道的突破口留下了对这个空间的视角,允许与邻里环境的视觉连续性。
Implantation. This plot, a true place of urban sewing is imagined to be more sustainable, more desirable, more open to the landscape and its environment. The presence of numerous visual transparencies generates a porosity within the site itself. This feature facilitates the appearance of new uses. The issues of urban density and environment are also distinctive elements present in the project. The project is devided into 3 distinct elements. This arrangement allows the creation of porosities throughout the island and the sequencing of the buildings. The heart of the plot retranscribes the wooded environment of the site, through the creation of a wooded meadow. It composes a decor that will be seen by the inhabitants from the terraces. Without creating a large number of uses, it is above all a constituent of the exterior atmosphere of the dwellings. The breakthroughs from the street leave perspectives towards this space, allowing visual continuity with the neighbourhood environment.


学院的栅栏用攀缘植物覆盖,以避免形成一个太重要的对面。地块的横向分隔是由木质围栏制成的,从而尊重了该地区的精神和城市规划师的建议。植被氛围。地块上选择的种植园符合典型的灌木丛植被,适应当地环境。边远地区由多年生植物和灌木组成,需要很少的维护,并考虑到植被的季节性。由蕨类植物、刺桐和风铃草组成的植物调色板,反映了灌木丛的氛围。此外,拟议的植物种植鼓励叶子的多样性,并确保一楼的高度舒适性。靠近该岛南部界限的树木被保留下来。除了现有的树层,还种植了25棵新的树木,使用当地的树种,如角豆树或乡村枫树。
The fence of the college is covered with climbers, in order not to create a too important opposite. The lateral separations of the parcel are made of wooden fencing, thus respecting the spirit of the district and the recommendations of the urban planners. A vegetal atmosphere. The plantations chosen on the site correspond to typical undergrowth vegetation, adapted to the local environment. The remote areas are composed of perennials and shrubs requiring little maintenance and taking into account the seasonality of the vegetation. The plant palette, composed of ferns, acanthus and bellflowers, reflects the atmosphere of the undergrowth. In addition, the proposed plantings encourage the diversity of foliage and ensure a high level of comfort for the first floor. The trees near the southern limit of the island are preserved. In addition to the existing tree stratum, 25 new trees are planted, using local species such as hornbeam or country maple.

建筑偏向。这些都是活泼的建筑,我们相信在外部空间的这种慷慨,将使居民能够充分利用他们的露台,从而参与到该区的活力中。因此,每个室外空间都提供了最小2米的深度,所有向南/向西的空间都达到了3米。栏杆使用玻璃,有利于近距离环境的反射,另一方面,它使居民处于一定的距离,避免了安装隐蔽装置来隔离目光。
Architectural bias. These are lively buildings and we believe that this generosity in the outside spaces will allow the inhabitants to take full advantage of their terraces and thus participate in the animation of the district. Thus, each outdoor space offers a minimum depth of 2 m, and up to 3 m for all the spaces to the south / west. The use of glass for the railings favors the reflections of the close environment, and on the other hand it puts the inhabitants at a distance and avoids the installation of occulting devices to isolate the glances.

我们为这个岛屿设计的建筑提供了一个清醒的建筑,通过颜色的选择和严格的开口布局来强调。然而,整体被偏移和建筑主体中的分裂所减轻。
The buildings we have designed for this island offer a sober architecture, accentuated by the choice of colors and the strict layout of the openings. However, the whole is lightened by the offsets, the splits that were found in the bodies of the buildings.













Architects: a/LTA
Area : 2660 m²
Year : 2020
Photographs :S. Chalmeau
Landscape : D’ici là
Consultants : BETAP, ISOCRATE, EXE
Design Team : a/LTA
Client : Lamotte
Developer : Nantes Metropole Amenagement
Urban Planners : Base + RiO
City : Nantes
Country : France