从排屋式的褐楼到被绿色包围的塔楼,戈瓦纳斯以前的工业区有着丰富多样的住房历史模式。新近振兴的绿道增加了一个特定的背景,我们从中提出问题: 什么是共同生活的新模式?
From row house brownstones to towers surrounded by green, the formerly industrial area of Gowanus is richly diverse in historic models of housing. A newly revitalized greenway adds to a specific context from which we question: What is a new model of living together?



我们的设计将城市多单元住宅从传统协议中解放出来。我们参与了使城市更加宜居的工作:与户外的对话和与他人的对话。
Our design frees urban multi-unit dwellings from traditional protocols. We engage with what makes the city more livable: conversations with the outdoors and conversations with others.


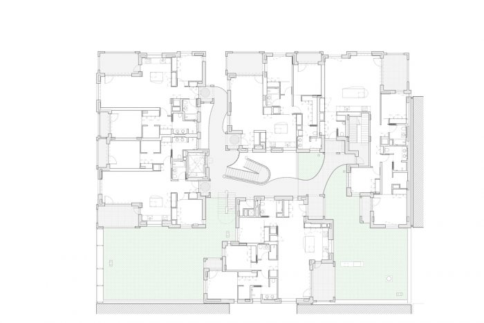
我们相信,开放的空间和绿色使彼此之间的生活更具有可持续性。三个院子创造了多孔性,将光线和绿色带到场地深处。一些小型结构向街道和整个建筑开放。纹理砖石围绕着每个体量和庭院,影子在不同的方向上移动,以记录太阳和季节的运动。
We believe open space and green make living in proximity to one another more sustainable. Three courtyards create porosity to bring light and green deep within the site. A number of smaller structures open to the street and throughout the building. Textured masonry winds around each volume and courtyard, and shadows move across differing orientations to register the movement of the sun and the seasons.


社区意味着共同生活和放松的共享空间,但也意味着非正式的互动。邻居们可以看到对面的来来往往,一个共享的入口庭院鼓励人们聊天。透明的材料让光线和四季变化渗透到建筑的活动中。
A community means shared spaces for living and relaxing together, but also informal interaction. Neighbors see one another’s comings and goings across the way, and a shared entry courtyard encourages chat. Transparent materials allow light and changing seasons to permeate the building’s activity.

社区生活也是关于隐私和亲密关系的对比空间。每个公寓的入口都是直接从外部进入的。一个前廊开始了向私人空间的过渡,让人联想到邻里之间的前廊,这是进入和离开,以及公共和个人之间的门槛。
Community living is also about contrasting spaces for privacy and intimacy. Each apartment entry is directly from the exterior. A front porch begins the transition to private space, reminiscent of neighborhood front stoops, a threshold between in and out, and communal and individual.

生活区是一个室内和室外的梯度,由它们与充满庭院的景观的关系来定义。大型露台将每个生活空间延伸到室外。亲密的阳台为主卧室创造了一个远离街道的缓冲区。庭院使每个公寓的三面都有窗户。窗户大小的混合决定了自然光的变化和庭院及附近的景观的框架氛围。
Living areas are a gradient of indoors and out, defined by their relationship to the landscape that fills the courtyards. Large terraces extend each living space outdoors. Intimate balconies create a buffer from the street for master bedrooms. Courtyards allow windows on three sides of every apartment. A mix of window sizes defines atmospheres of changing natural light and framed views of courtyards and the neighborhood beyond.










Architects: SO-IL
Area : 5016 m²
Year : 2022
Photographs :Iwan Baan
Manufacturers : Schöck, Carl Stahl, Guardian, MetroPolder, Reynaers
Structural Engineers : Silman
MEP : ABS
Geotechnical Consulting : GZA
Lighting Consultants : Lighting Workshop
Landscape Consultants : Gowanus Canal Conservancy, Brooklyn Grange
Principal In Charge : Florian Idenburg
Principal : Jing Liu
Project Architect : Ted Baab
Architect In Charge : Karilyn Johanesen
Designers : Deok Kyu Chung, Alek Tomich, Danny Wei
Expediter : Vittaco
Specifications : Aaron Pine
Building Envelope : Laufs Engineering Design
General Contractor : KSK Construction Group
City : Brooklyn
Country : United States