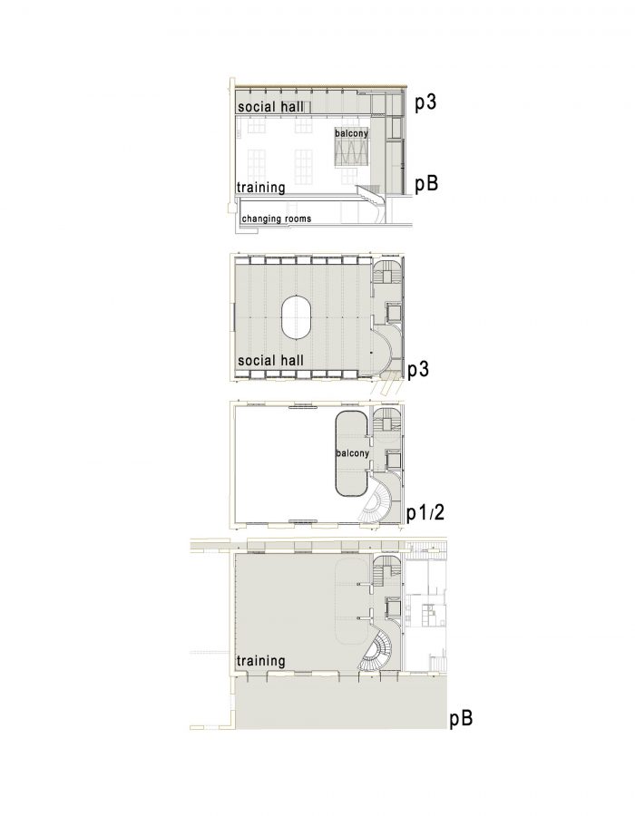
巴塞罗那Fabra & Coats老工业综合体仓库建筑的改造项目被纳入到这个19世纪和20世纪的纺织综合体的改造过程中,将其纳入 "BCN创造工厂 "网络。该项目将为Sant Andreu区带来超过28,000平方米的设施,并且,作为工业遗产改造的第一次,该项目还包括社会住房。该项目包括46个两居室的住房单元:41个单元为年轻人提供,5个单元作为艺术家的临时住所。这座建筑建于1905年,注定要成为仓库。它长100米,深15米,高11米,由一个中间楼层分割。结构、外立面和屋顶是由砖、阿拉伯瓦和内部钢结构组成的单元,每3.4米重复24次(模块)。在屋顶层面,有24个层压钢桁架。
The transformation project of the warehouse building of the old industrial complex of Fabra & Coats in Barcelona is included in the process of reconversion of this textile complex of the XIX and XX centuries to incorporate it to the "BCN creation factories" network. The project will bring to the Sant Andreu district more than 28,000 m2 of facilities and, as a first time in an industrial heritage transformation, social housing is included. The project includes 46 housing units of two bedrooms: 41 units for young people and 5 units as a temporal residence for artists in relation with the complex. The building was built in 1905 and destined for storage. It is 100 meters long, 15 meters deep, and 11 meters high and it is divided by one mid floor. The structure, façade and roof are the unit built in a brick, Arabic tile and interior steel structure, repeated 24 times (modules) every 3,4m. At the roof level there are 24 laminated steel trusses.





这种工业化的构造逻辑,建筑可以概括为一个单一横向截面的重复,一旦你进入室内,这种逻辑就会发生转变,因为整个建筑长度的视觉比模块的重复更强烈。对建筑的干预激活了原建筑的所有元素,创造了新的方案,并重新利用其物理、空间和历史的特质,使新的建筑更有效率,并加强了原建筑的特征。
This industrial constructive logic, where the building can be summarized as a repetition of a single transversal section, is transformed once you are in the interior, because the vision of the whole length of the building is stronger than the repetition of the module. The intervention in the building activates all the elements of the original building creating the new program, and reuses its physical, spatial and historical qualities to make the new construction more efficient and to reinforce the character of the original building.



原建筑有100米长,首先决定将其最大尺寸的价值,也就是长度。我们从中心进入,创造了一个内部广场,内部楼梯的长廊开始于对角线的双重上升。原始建筑从地面到屋顶结构在物理上和视觉上都是相通的。这个前庭也将建筑与Parellada街和Fabra & Coats综合广场连接起来。这个新的公共空间是对原有建筑的新结构贡献。
The original building is 100m long, where the first decision was to bring the value of its maximum dimension, which is the length. We access through the center creating an interior square where the promenade of the interior stairs begins in diagonal double ascending. The original building is communicated physically and visually from the ground level until the roof structure. This vestibule also connects the building to Parellada Street and the Fabra & Coats complex square. This new communal space is the new structural contribution to the original building.

新的建筑是通过组合的方式,它是一个干式的建筑,只用了很少的材料,就像原来的工业建筑一样。木材以各种形式被使用:实心的、团聚的、交叉层压的...。材料的连接,犹如纺织品一样。缝合和拆开,新的建筑通过其特性和组合,可以组装和拆卸,所以它是 "可逆的"。该建筑在未来,作为遗产元素,可以回到1905年的原貌,建筑中使用的材料也可以回收利用。
The new construction is by assemblage, it is a dry construction with just few materials, as in the original industrial building. Wood is used in all its forms: solid, agglomerated, cross laminated... Materials are joined as if it was a textile. To sew and un-sew, the new construction by its character and assemblage, can be assembled and disassembled, so it is "reversible". The building, in the future, as a heritage element, can return to its original form of 1905, and the material used in its construction can be recycled.

对建筑内部的两层进行结构再利用,在没有任何加固的情况下使用它们(承重能力为1100kg/m2),在两层楼支撑起两层新的住房。我们将两层变为四层,为此我们使用木结构,因为它比钢结构轻5倍。木框架结构是由旧的钢结构转化而来,用于存放线头的架子。
Structural reuse of the two inner floors of the building, using them without any reinforcement (load capacity of 1,100kg/m2) to support on both floors the two new levels of housing. We convert two floors into four, to reach this we use a wooden structure, because it is 5 times lighter than a steel structure. The wooden frame structure is a translation of the old steel structures used as shelves for the storage of the threads.

建筑的外墙和屋顶作为住宅单元的热缓冲。新的住宅单元与建筑的外立面和原有的屋顶分开放置,并采用新的木质外立面。中间的空间是为了使空气循环,因此,住房单元在一年中的大部分时间不需要空调。
Façade and roof of the building as a thermic buffer for the housing units. The new housing units are placed separated from the façade and the original roof of the building, with a new wooden façade. The in-between space is created to circulate the air; therefore, the housing units do not require the air conditioning the most part of the year.

原有建筑的45厘米砖墙和瓷砖屋顶为新的室内建筑提供了隔热和遮阳的特性,同时保持了其作为公共空间内部立面的存在。在这个中间空间是通往房屋的内街,确定了线包通过吊桥和传送带的旧路径。
The 45cm brick wall and the ceramic tile roof of the original building provide its thermal and shading properties to the new interior building, while maintaining its presence as an interior façade of the communal spaces. In this in-between space are the inner streets to access to the houses, identifying the old path of the thread packages through the crane bridge and the conveyor belts.































建筑师:Roldán + Berengué
占地面积:5391 m²
年份:2019年
摄影:Jordi Surroca
厂家:Clever, Cortizo, ESCOFET, Firestone Building Products, Ikea, Isover, MARAZZI, Mermet, Onduline, Saunier Duval, Scrigno, Soler & Palau, Swiss Krono AG, Thermochip, Würth, A-OK Tubular Motors, Argenta Cerámicas, Azero Group, BTV, Belluch, +27
首席建筑师:José Miguel Roldán , Mercè Berengué, Roldán + Berengué, arqts.
合作者:Vicenç Sanz, Zana Bosnic, David Espuña, Miquel Canyellas
城市 : 巴塞罗那
国家:西班牙
Architects: Roldán + Berengué
Area: 5391 m²
Year: 2019
Photographs: Jordi Surroca
Manufacturers: Clever, Cortizo, ESCOFET, Firestone Building Products, Ikea, Isover, MARAZZI, Mermet, Onduline, Saunier Duval, Scrigno, Soler & Palau, Swiss Krono AG, Thermochip, Würth, A-OK Tubular Motors, Argenta Cerámicas, Azero Group, BTV, Belluch, +27
Lead Architects: José Miguel Roldán , Mercè Berengué, Roldán + Berengué, arqts.
Collaborators:Vicenç Sanz, Zana Bosnic, David Espuña, Miquel Canyellas
City:Barcelona
Country:Spain