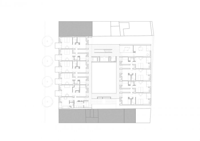
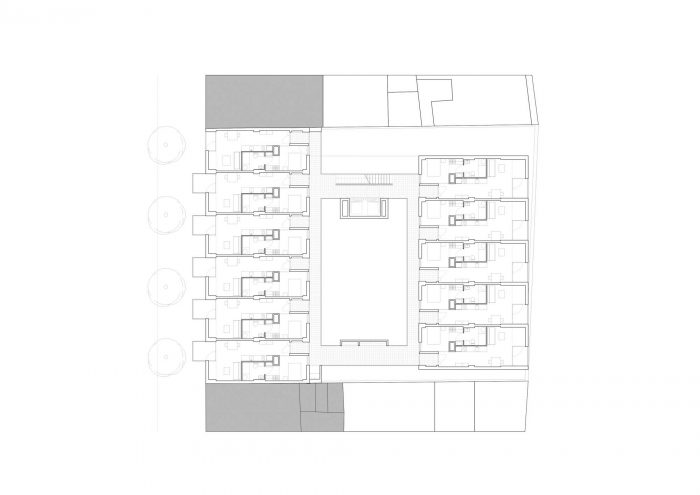
该项目位于Eixample区的一个奇特的街区,以前被铁路分割开来,目前开放了新的公共空间。两个独立的体量定义了一个大型的绿色中央庭院和流通区域。面向街道的建筑巩固了街区的正面,第二个建筑被设想为一个孤立的建筑,甚至将自己与地块的限制分开,以回应现有的不规则城市空隙。
The project is located in a singular block of the Eixample district, formerly fragmented by the railway and currently opened to new public spaces. Two separate volumes define a large green central courtyard and circulation areas. The building facing the street consolidates the front of the block and the second one is conceived as an isolated building, even separating itself from the limits of the plot to respond to the existing irregular urban voids.









地面和一楼的临时住房中心是通过一个开放的公共通道进入的。住宅的入口是通过一个独立的封闭式大厅和通信核心,它向侧面开放,有双倍高度的空间。在地面和屋顶层有公共和室外空间(多功能室、洗衣房、果园、露台、门廊),将生活方式扩展到公寓之外,从而弥补了公寓面积的减少。
The temporary housing center in the ground and first floor is accessed through an open public passage. The entrance to the dwellings is made through an independent closed lobby and the communications core which opens towards the side with double height spaces. On the ground and roof levels there are common and outdoor spaces (multipurpose room, laundry, orchards, terraces, porches) that expand the way of living beyond the apartments, thus compensating their reduced size.


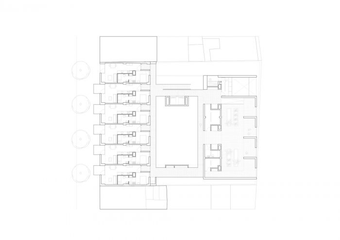
老年人的单卧室公寓是交叉通风的,通过一个开放的走道和入口门进入,这是一个中间空间,允许占用公共空间并调节公寓的隐私。从中央厨房开始,空间感知通过向客厅和卧室的大推拉门的斜视图得到扩展。阳台将客厅延伸到外面。
The single bedroom apartments for the elderly are cross ventilated, with access through an open walkway and entrance gate, an intermediate space that allows the appropriation of the common space and regulates the apartment’s privacy. From the central kitchen the spatial perception is extended by oblique views towards the living room and bedroom with a large sliding door. The terraces extend the living rooms to the outside.













Architects: Arquitectura Produccions, Pau Vidal, Vivas Arquitectos
Area: 64799 ft²
Year: 2020
Photographs: José Hevia
Manufacturers: Actiu, Cortizo, Daikin, Forma 5, Legrand, Mobles 114, Simón, Swiss Krono AG, Disano www.disano.it, FCV, Gradhermetic, Norma, Normalux, Prefabricats Pujol, Roblan, Toscano
Lead Architects: Miquel Roa, Pau Vidal, Cristian Vivas, César Vivas.
Clients:Institut Municipal de l’Habitatge i Rehabilitació de Barcelona, IMHAB
Engineering:Caba Sostenibilitat
Landscape:Ohrizons
Consultants:Manuel Arguijo, Salvador Arisa, Joan Just Caro
Collaborators:Quim Brufau, Jordi Raventós, Bernat Pedro, Ava Costa, Sabrina Calzolari. Sbda, Playtime, Daniel Granados
City:Barcelona
Country:Spain