邦帕斯托尔社区的改造计划预计将拆除庄园内建于1929年的784栋Casas Baratas(廉价房屋),并以独立的街区取代,以重新安置所有的住户。单层房屋的规划结构和邻居之间的亲密关系产生了一种社区生活的形式,使该区具有城中村的氛围,街道上有很多生活气息。
The Remodelling Plan for the neighborhood of Bon Pastor anticipates the demolition of the 784 Casas Baratas (cheap houses) on the estate that was built in 1929, and their replacement by freestanding blocks to rehouse all of their occupants. The planning structure of single-story houses and the closeness of the neighbors produced a form of community life that gave the district the atmosphere of a village within the city, with lots of life in the street.



建筑类型的改变是与居住者达成一致的,它提供了一些高层生活的优势,如Besòs河的主要景观,但却损害了地面上的社区生活,在那里,单层住宅打开并出现在街上。为了恢复和保留这种户外生活方式的一部分,在公共空间和住宅之间设置了一系列的中间区域。在底层,入口是通过公共庭院进入门厅的。
The change in building typology, which was agreed on with the occupants, offers some advantages of high-rise living, such as prime views of the river Besòs, to the detriment of community life at ground level, where the single-story dwellings open up and emerge into the street. In order to recover and preserve part of this outdoor way of life, a series of intermediate areas are incorporated between the public space and the dwellings. At ground floor level, entrance is via communal courtyards that lead into the foyers-

楼梯的格子面使建筑的垂直交流外部化。在一楼,宽敞的露台就像户外房间一样,可以俯瞰与河岸相邻的新公园。停车场被布置在单层,具有自然通风和照明,提供了一个可以及时适应其他用途的空间。
The lattice facing of the stairway externalizes the building’s vertical communications. On the first floor, generous terraces like outdoor rooms overlook the new park that borders the riverfront. The car park is laid out on a single level with natural ventilation and lighting, offering a space that can, in time, adapt to other uses.


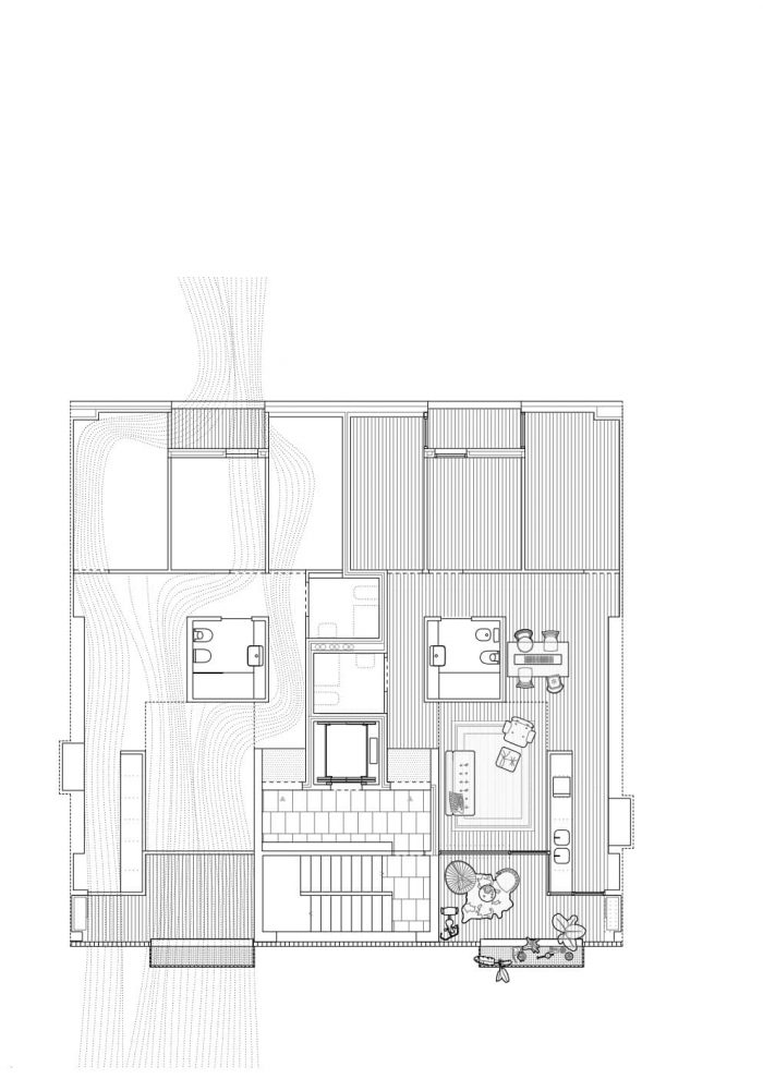
交叉通风的住宅有一个独立的卫生间,将休息室安排在围绕这个核心的两个空间,双向循环使公寓看起来更大。这种布局有利于交叉通风,并向空气和景观开放,两个立面之间有很长的视线。这些循环不仅在浴室周围形成,而且还通过露台穿过卧室,露台的路线一直贯穿整个公寓,最大限度地减少了独立的空间,并且不间断地沿着公寓的轮廓走。悬臂式金属阳台系统结合了滚动百叶窗,并为植被提供支持。在建筑和河流之间有一个公园,过滤了沿Besòs河走廊循环的海空气。使用裸露的砖块,这是一种由规划决定的材料,是一个引入格子的机会,使建筑的外墙具有多孔的纹理。
The cross-ventilated dwelling has a free-standing bathroom, arranging the lounge in two spaces around this nucleus with two-way circulations that make the apartment seem bigger. This layout favors cross ventilation and opens up the floor plan to both air and views, with long lines of sight between the two façades. These loops of circulation are created not just around the bathroom, but also through the bedrooms by means of a terrace that continues its route through the apartment, minimizing self-contained spaces and following the outline of the apartment without interruption. The cantilevered metal balcony system incorporates rolling shutters and provides support for vegetation. A park runs between the building and the river, filtering the sea air that circulates along the Besòs river corridor. The use of exposed brickwork, a material determined by planning, is an opportunity to introduce lattices that give the building’s façade a porous texture.


在底层,俯瞰公园的露台与停车场的通风井穿插在一起,产生了一种厚度,在公共空间和家庭之间形成了一个隐私过滤器。街道上的院子的朝向
At ground floor level, the terraces overlooking the park are interspersed with the car park’s ventilation shafts, generating a thickness that forms a filter of privacy between public space and home. The facing of the courtyards on the street










Architects: Peris+Toral.arquitectes
Area : 87026 ft²
Year : 2022
Photographs :José Hevia
Lead Architects : Marta Peris, José Manuel Toral, Jaime Pastor
P+T Team : Ana Espinosa, Guillem Pascual, Maria Megias, Izaskun González, Cristina Porta, Miguel Bernat
Engineering And Structures : 3J Tècnics Associats
Direction Of Execution : Joan March i Raurell
Program : Social Housing
City : Barcelona
Country : Spain