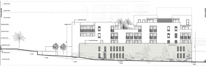
挑战是在一个强烈的斜坡地形上创造一个全球性的社会多样性项目。该项目以质感混凝土为基底,移入坡地。这创造了一个大型的中央天井,提供了一个舒适的水平空间。
The challenge is to create a global project of social diversity in a strongly sloping terrain. The project moved into the slope with its base of textured concrete. This creates a large central patio that offers a comforting horizontal space.



所有的住处都是通透的,它们被整合在框架体量中的外部走道所服务。室外走道被视为有益的生活空间,遮蔽了地窖,并允许人们见面。
All the accommodation is through, they are serviced by outside walkways integrated in the volume of the frame. The Outside walkways are treated as beneficially living spaces sheltering cellars and allowing people to meet

上层的悬空花园是分体式的,让光线进入天井内。襟翼 "蝴蝶 "在打开时用来制造太阳风。
Hanging gardens on the upper floors are split volumes to let light inside the patio. Flaps "butterflies" are used to create suns breezes when they open.










建筑师:Atelier PIROLLET architectes
面积:4319 m²
年份:2015年
照片:Serge Demailly
开发商:SACEMA
项目经理:Sylvain Pirollet
工程:Projex, Ab Sud, Projex, Ab Sud
城市 : Antibes
国家:法国
Architects: Atelier PIROLLET architectes
Area: 4319 m²
Year: 2015
photographs: Serge Demailly
Developer:SACEMA
Projects Manager:Sylvain Pirollet
Engineering:Projex, Ab Sud, Projex, Ab Sud
City:Antibes
Country:France