该项目位于离圣马丁运河不远的三个巴黎城市特征的交汇处。罗伯特-布拉什街(Rue Robert Blache),由小型白色渲染的法国建筑组成,具有谨慎的模式性质;泰拉格街(Rue du Terrage),主要由大型HBM类型的建筑群占据,具有整齐的砖块外墙;拉乌尔-福莱罗广场(Place Raoul Follereau)周围的操作,是一个气派的住宅群,建于80年代初,以重新解释古典语言为标志,可以说是后现代的。
The site is located at the intersection of three characteristic Parisian urban situations not far from the Canal Saint-Martin: Rue Robert Blache, punctuated by small white rendered faubourien buildings with discreet mode nature, Rue du Terrage, largely occupied by a large HBM-type complex with neat brick facades and the operation around Place Raoul Follereau, an imposing housing complex, built in the early 1980s and marked by a reinterpretation of classical language, which can be described as postmodern.



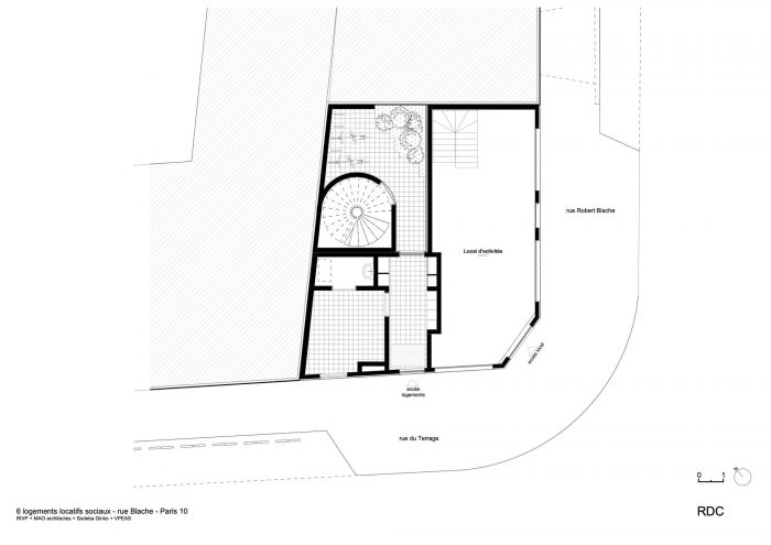
一个有背景的项目。该建筑位于Rue Robert Blache和rue du Terrage的拐角处。
该机构希望重新解释Robert Blache街的法布瑞纳建筑准则:庭院和街道之间的紧凑体量,由规则的垂直开口组成的立面,谨慎的模式性质,简单表达建筑的选择。
A Contextual Project. The building is located at the corner of rue Robert Blache and rue du Terrage.
The agency wished to reinterpret the codes of faubourienne architecture present in the rue Robert Blache: a compact volumetry between the courtyard and the street, a façade ordered by regular vertical openings, a discreet mode nature, simple expression of the building's construction choices.



在Robert Blache街的底层,该机构通过提供最大限度的零售空间,创造了一种强烈的动画感。通过一个明亮的、可俯瞰Rue du Terrage的走道大厅进入公寓。在高层,所有的住宅都是双层或三层的,并有大窗户为居民提供最大的光线。
On the ground floor on rue Robert Blache, the agency has created a strong sense of animation by offering a maximum of retail space. Access to the flats is via a bright, walk-through hall overlooking Rue du Terrage. On the upper floors, all the dwellings are double or triple-oriented and have large windows offering maximum light to the inhabitants.



在街道一侧,建筑有一个哑光的白色带肋金属皮。细木家具是由自然色的木材制成的,栏杆是由玻璃制成的,为公寓提供了光亮和隐私。在庭院的一侧,外墙采用了自然色的木质包层。
On the street side, the building has a matt white ribbed metal skin. The joinery is made of wood in natural colors and the railings are made of glass, offering luminosity and privacy to the flats. On the courtyard side, the facade is clad in the natural-colored wood cladding.

一个生态的木材项目。该建筑发展了一种基于预制木材的结构原则,具有坚实的外墙和地板(来自巴斯克地区)。这一原则使得开发一个非常低碳的场地和在10天内完成5层结构的组装成为可能。放置在外墙和隔板上的交叉层压木板支持交叉层压木板地板。在住宅内可以看到结构,一些结构元素清晰可见。整个建筑的绝缘是由木纤维提供的。地板由植物纤维(油毡)或瓷砖(公共走廊和潮湿的房间)组成。为了便于商业场所的大跨度和与地面的关系,底层的结构是由混凝土制成的。
An ecological wood project. The building develops a structural principle based on prefabricated wood, with solid facades and floors (from the Basque Country). This principle has allowed the development of a very low-carbon site and the assembly of the structure on 5 levels in 10 days. Cross-laminated timber panels placed on the facades and partitions support cross-laminated timber panel floors. The structure can be seen inside the dwellings with some structural elements visible. The insulation of the whole building is provided by wood fiber. The floor comprises vegetal fibers (linoleum) or tiles (common corridors and wet rooms). In order to facilitate the large spans in the commercial premise and the relationship with the ground, the structure of the ground floor is made of concrete.


一个低负荷的项目。该项目开发了6套住宅,包括底层的两套三层楼(R+3-4-5)。这种配置使得仅通过楼梯和外部楼板就能为5层建筑服务,从而限制了可能的电梯成本。所有的技术设备都由住宅(通风和独立的锅炉)在一个具有非常高热阻的围护结构中管理。雨水在屋顶收集(R+5的锌),并为自行车房上方的花盆和底层的绿色空间提供水源。水箱中的回收系统为公共区域的水龙头(维护、浇灌)和所有的卫生设施提供水源。
A low-load project. The program develops 6 dwellings including two triplexes on the ground floor (R+3-4-5). This configuration has made it possible to serve the 5-story building only by means of a staircase and external landings, thus limiting the costs of a possible lift. All of the technical equipment is managed by a dwelling (ventilation and individual boiler) in an envelope with very high thermal resistance. Rainwater is collected on the roof (R+5 in zinc) and feeds the planter above the bicycle room and the green space on the ground floor. A recovery system in the tank supplies the taps in the common areas (maintenance, watering) and all the sanitary facilities.

























Architects: mobile architectural office
Area : 318 m²
Year : 2022
Photographs :Cyrille Lallement
General Engineering : Ginko ingénierie
Founding Architect : Fabien Brissaud
Architect : Aurélien Ferry
Project Owner : RIVP
Economist : VPEAS
City : Paris
Country : France