我们的经验
Tectoniques机构在生态邻里的住房建设方面有丰富的经验,采用了坚定而雄心勃勃的环保方法,使用了基于干式建筑的特定施工协议,主要使用预制的木制部件。Rive de Gier项目将这种基本方法提升到新的高度。
整个项目由独立的分组住宿单元、中间住房和小型集体住房区组成,完全采用干式建筑方法,采用二维宏观组件和三维模块来建造卫生和技术设施。Ossabois开发的这种施工方法被称为 "5D工艺"。
Our experience
The Tectoniques agency has extensive experience in building housing in eco-neighbourhoods, with a committed and ambitious environmental approach, using a specific construction protocol based on dry construction mainly using prefabricated wood components. The Rive de Gier project takes this basic approach to new heights.
The entire programme, composed of individual grouped accommodation units, intermediate housing and small collective housing blocks, is entirely built using dry construction methods employing 2D macro-components along with 3D modules for the sanitary and technical facilities. This construction method developed by Ossabois is known as the "5D process".



在城市和景观方面都是一个挑战
该项目位于现有城市网络的中心地带,周围有完整的景观。
第一个挑战是与现有的六座建筑和邻近的学校,以及周围的住宅和绿地建立一个开放的、积极的联系,这是社区的特点。
A challenge in both urban and landscaping terms
The project site is located at the heart of an existing urban network complete with the surrounding landscaping.
The first challenge was to establish an open, positive connection with the six existing buildings and the neighbouring school, as well as the surrounding residential housing and the green spaces that characterise the neighbourhood.

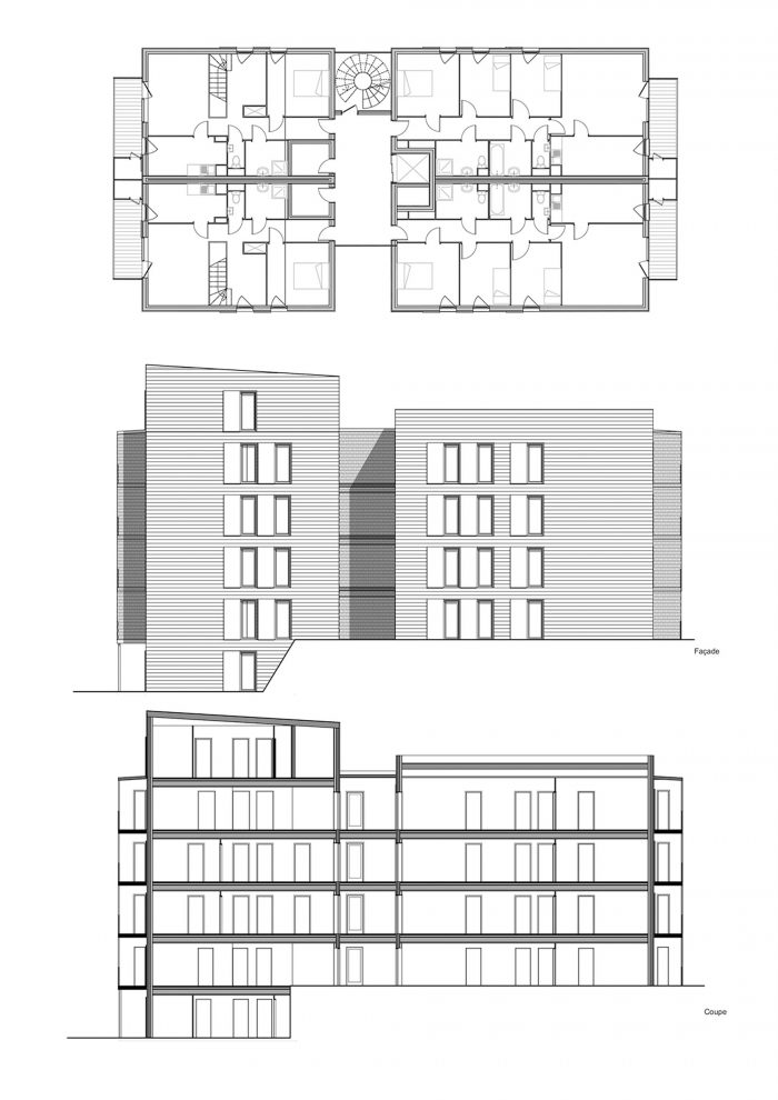
该项目建在山坡的侧面,场地暴露良好,视野清晰,没有特别的不便之处。它为建造一个真正的模范项目提供了理想的条件。该建筑采用了不同的规模,以避免形成一个巨大的体量,而是产生了被分解和分割的小块和体积。
The project is built on the flank of the hillside, on a site that is well exposed and has clear views with no particular inconveniences. It offered the ideal conditions in which to build a truly exemplary project. The architecture works on a variety of scales to avoid creating an imposing mass, instead producing small blocks and volumes that are broken down and split up.

非常轻的木质结构是适应在这块陡峭的地块上建造的困难的理想选择。
阳台、外部走廊和花园层都是为了强调项目的家庭感觉。它们构成了街道、花园和私人住房等公共空间之间的不同阶段。
The very light wood construction is ideal for adapting to the difficulties of building on this steeply sloping plot of land.
The balconies, exterior hallways and garden levels all work to assert the domestic feel of the project. They form the different stages between the public space of the street and the gardens and the private housing.

使用5D工艺的干法施工
奥萨布瓦开发的这种建筑方法,主要是使用木材,但不是系统地使用,因为有些结构是由木材制成的。
-金属:阳台和走道
-混凝土:集体公寓区的电梯井
-混合金属-混凝土:用于分隔住房单元的地板的部件
-所有其他结构的木质框架:外墙、屋顶、承重墙和特定住房单元的内部地板。
Dry construction using the 5D Process
This construction method developed by Ossabois, mainly, but not systematically, uses wood as some structures are made of:
-Metal: Balconies and walkways
-Concrete: The lift shaft for the collective apartment block
-Mixed metal-concrete: components for the flooring separating housing units
-Wooden frameworks for all other structures: facades, roofing, load-bearing walls and internal flooring within a given housing unit.

该项目由两个主要的预制构件系列组成。二维宏观组件用于 "平面组件":外墙、地板和构成建筑外壳的所有结构,三维模块用于浴室。
The project is made from two main families of prefabricated components: 2D macro-components for the "flat components": the facades, the flooring, and all the structures that make up the envelope of the building, and 3D modules for the bathrooms.

前者是完整的,包括外墙的覆层、框架、窗户和百叶窗。所有的内部组件都是预制的,直到防潮层。然后在现场安装衬板以完成结构。
三维模块到达现场后 "随时可以使用"。唯一需要在现场完成的工作是连接公共设施并将衬板安装到三维模块上。
The former are complete and include the cladding for the facades, the frames, windows and shutters. All the interior components are prefabricated up to the vapour barrier. Lining boards are then installed on site to finish off the structures.
The 3D modules arrive on site "ready for use". The only work which needs to be done on site is to connect the utilities and fit the lining boards to the 3D blocks.

除了节省时间外,这个过程还限制了因现场工艺不佳而产生缺陷的风险,也大大减少了现场作业的干扰。
As well as saving time, this process limits the risk of defects resulting from poor workmanship on site and also significantly reduces the disruption from operations on site.

木材
在可用于建筑施工的各种材料中,木材是迄今为止用途最广、最容易加工和改造的材料,当然也是最环保的材料(一种固定碳的可再生资源,消耗很少的内含能源,而且容易重复使用)。
Wood
Amongst the wide range of materials that can be used in building construction, wood is by far the most versatile, the easiest to work and transform and, of course, the most environmentally sound (a renewable resource which fixes carbon, consumes little embodied energy and can be easily reused).

该项目需要370立方米的木材,形式为实木(墙体和外墙的框架、托梁工程和檩条),OSB板用于封闭墙板和地板,以及少量胶合板组件,以确保第五层建筑的稳定性。
应该注意的是,该项目没有在外墙上使用任何木材。只有由加长连接的松木制成的框架和云杉百叶窗,两者都覆盖着工业釉,构成了在外立面上对木材的控制和有限使用。
The project required 370 m3 of wood in the form of solid wood (framework for the walls and facades, joist work and purlins), OSB panels to close off the wall panels and flooring, and a small number of glulam components to ensure the stability of the building on the fifth floor.
It should be noted that the project does not use any wood on the facade. Only the framework made of lengthening jointed pine wood and the spruce shutters, both covered in an industrial glaze, constitute a controlled and limited use of wood on the external facade.

可持续供应和预制
木材和衍生产品都是在欧洲境内采购的,而且大部分来自法国。30多年来,OSSABOIS开发了二维和三维预制方法。它在这一领域的专业知识意味着它可以优化施工方法以适应建筑物的计划用途。二维原则特别适合于创建一个灵活、开放的建筑。100%的数字设计被用来指导工业制造和装配工具。在现场组装时不需要调整。高度精确的物流允许及时交付,这限制了库存量和处理过程。3D浴室和技术室模块在到达工作现场时已经完全完成并得到保护。这可以将施工的总体时间框架缩短几周,并确保高质量的稳定水平,同时也限制了所需的库存量。
Sustainable supplies and prefabrication
The wood and derivative products are all sourced within Europe, and mostly from France. For over 30 years OSSABOIS has developed 2D and 3D prefabrication methods. Its expertise in this area means it can optimise the construction method to fit the planned use of the building. The 2D principle is particularly well suited to creating a flexible, open architecture. The 100% digital design is used to guide the industrial manufacturing and assembly tool. No adjustments are required during on-site assembly. Highly accurate logistics allow for just-in-time delivery which limits the volume of stock and the handling processes. The 3D bathroom and technical room modules arrive fully finished and protected on the work site. This can reduce the overall timeframe for construction by several weeks and ensures a high, consistent level of quality which also limits the amount of stock required.










Architects: Tectoniques Architects
Area: 4160 m²
Year: 2016
Manufacturers: Aqualogis, Cédral Eternit, Etex Colombia
Environmental Engineering: ARCOBA
Main Contractor: OSSABOIS
Fluids Engineering:Tectoniques Ingénieurs
Project Management::VOXOA
Building Control:Veritas
Health And Safety Coordination:Alpes Contrôles
Client:Immobilière Rhône-Alpes (groupe 3F)
City:Rive-de-Gier
Country:France