这个64套住宅的项目,分为两栋楼,在皮埃尔-洛蒂住宅的中心地带实施,完成了城市重建。总体规划将该项目置于不同建筑类型和密度的十字路口。因此,这个过程的目的是在环境中实现一个体积的过渡,为新的皮埃尔-洛蒂街的未来身份做出贡献。
This 64 dwellings project, divided into two buildings, is implemented in the heart of the residence Pierre Loti, completing an urban renewal. The master plan places the project at a crossroads of varied building types and densities. As a consequence, the process aims for a volumetric transition, possible within the context, contributing to the future identity of the new Pierre Loti Street.



考虑到为每栋建筑提供的两个设置区的多种特征(大小、停车区、方向、与附近建筑的关系、周围地区的布局......)以及关于密度的雄心勃勃的目标,为每栋建筑提供了不同的答案,以充分利用它们各自的潜力。
Considering the multiple features (size, parking area, orientation, relation to the nearby buildings, surrounding areas layouts...) of the two set up areas offered for each building and the ambitious goal regarding density, a differentiated answer is given for each building in order to make the most of their respective potentials:

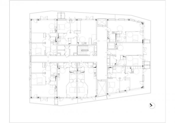
- 一方面,R楼,通过其屋顶的形状,楼层的移动(R+4在戴高乐大道上,R+5在中心,R+3在皮埃尔-洛蒂街上)和体量的逐渐过渡,保证了与艾特雷市中心的新联系。
- 就其本身而言,S楼面对加拉帕戈斯大楼最宏伟的形式,提供了一个更紧凑的整体体量作为回应。
- On one hand, the R building, through the shape of its roof, floors’ movements (R+4 on the Charles de Gaulle Avenue, R+5 in the center, and R+3 on Pierre Loti street) and volumes’ gradual transition, assures a new link toward Aytré city center.
- On its part, the S building facing the most imposing form of the Galapagos building offers in response a more compacted monolithic volume.

这两座建筑向路人提供了有顺序的外墙:水平方向有长长的露台,垂直方向有入口和建筑内部的垂直流动,设计成 "裂缝"。该项目强调了占用和可居住性的想法,希望给每个住宅提供一个近乎私人的通道。对与皮埃尔-洛蒂街相连的侧面空间的处理,以及对建筑物的后续处理,都与后者的轮廓相一致。
The two constructions offer to the passerby sequenced facades: horizontally with long terraces and vertically with entrances and vertical flows inside the buildings, designed as «rifts». The project highlights ideas of appropriation and habitability, with a wish of giving to each dwelling a nearly private access. The treatment of the side spaces in connection to the Pierre Loti Street and following on from the buildings fits in with the latter outline.

通往住宅的通道:住房的占有和私有化。
关于R楼,这条路将个人住房的特点重新诠释为公寓楼:穿过栅栏,推开障碍物,沿着小巷,利用景观,通过直接向外开放的门进入住宅。
Accesses to the dwellings: housing’s appropriation and privatization.
Regarding the R building, the path reinterprets features of an individual housing into the apartment block: passing through a fence, pushing a barrier, following an alley, taking advantage of the landscape and entering the dwelling through a door directly open to the outside.



室外走廊允许空中漫步,提供大量的景观并支持邻里关系。此外,它们使住宅具有双视角,受益于双倍或三倍的方向,并保护隐私。它们导致每层只有6个住宅。
Outdoor corridors allow an aerial walk, offer numerous views and support neighborly relations. Besides, they enable the dwellings to be dual-aspect, to benefit from double or triple orientation, and preserve privacy. They lead to only 6 dwellings per floor.

这些 "浮桥 "在公共和私人空间之间建立了一个渐进的距离。此外,通往入口的位移通道保持了住宅与交通的亲密关系。室外走廊通过私人天桥进入住宅。
These «pontoons» establish a gradual distance between public and private spaces. In addition, displaced accesses to the entrances preserve the dwellings’ intimacy from the traffic. The outdoor corridors give access to the dwellings thanks to private footbridges.

关于S楼,建筑的密度和分布的效率(每层8个住宅)意味着对每个空间,特别是公共区域的自然光输入的精确工作。为居民发明的路径始于一个南北向的双视角大厅,并配有一个西北方向的片段。在建筑中的这种切割允许在沐浴在光线中的共享空间中创造出清晰的北、南、西三面视野。
Concerning the S building, the density of the construction and the efficiency of the distribution (8 dwellings per floor) implies a precise work regarding natural light input in each space, and especially in the communal areas. The path invented for the residents starts in a dual-aspect hall, north-south oriented, complete with a north-western fragment. This cutting up in the building allows the creation of clear views toward north, south, and west, in shared spaces bathed in light.









Architects: Alterlab Architectes, Guinée et Potin Architects
Area: 3820 m²
Year: 2017
Photographs: Sergio Grazia
Manufacturers: Kawneer, Plexiglas, Silverwood Stone
Lead Architect: Hervé Potin & Anne-Flore Guinée
City:Aytré
Country:France