卢塞恩应用科学大学艺术和设计系的新大楼建在位于卢塞恩郊外的Emmenbrücke的前MonoSuisse工厂(现在称为Viscosistadt)所在地。
The new building for the Arts and Design Department of the University of Applied Sciences of Lucerne is built on the site of the former MonoSuisse factory the now called Viscosistadt in Emmenbrücke, located outside of Lucerne.




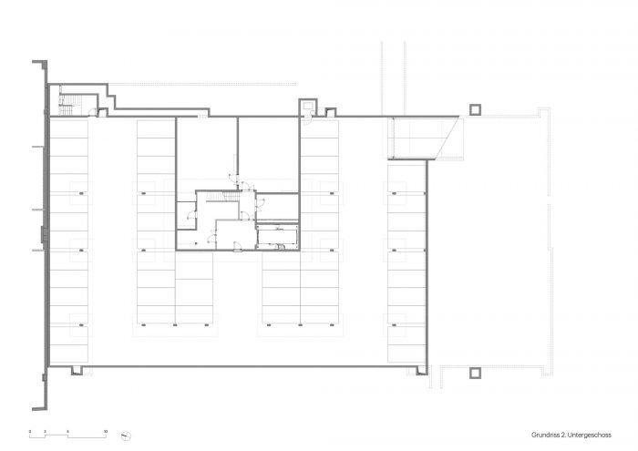
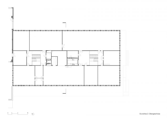
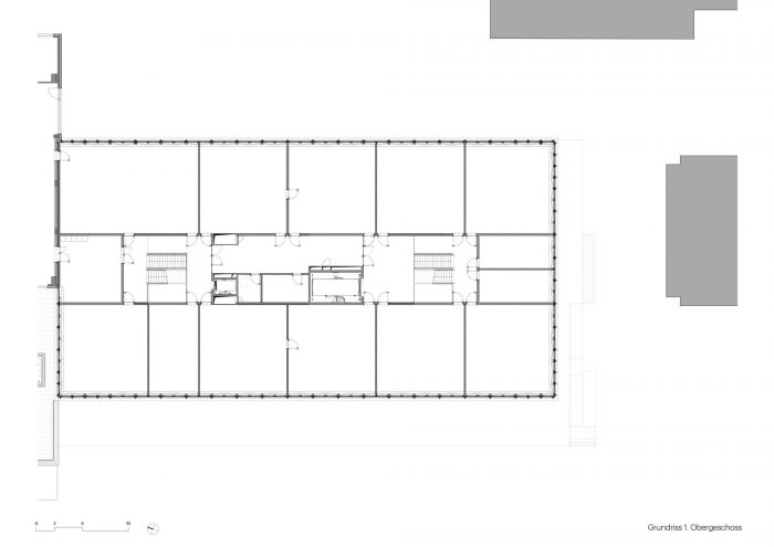
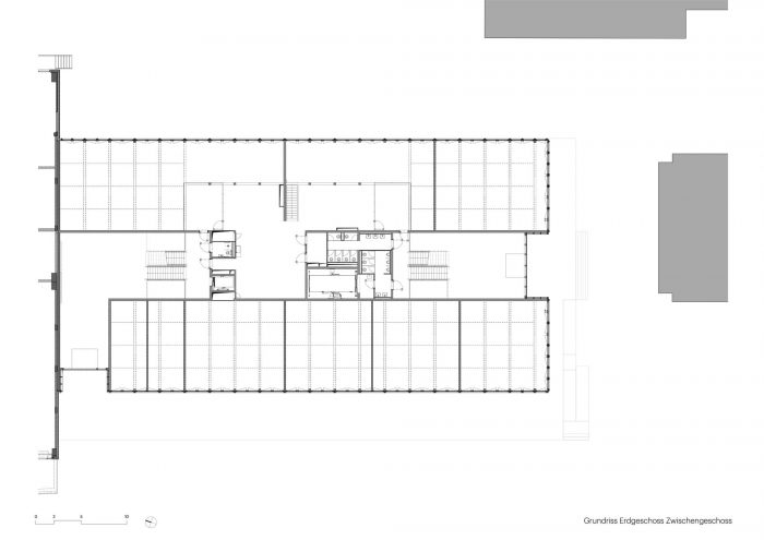
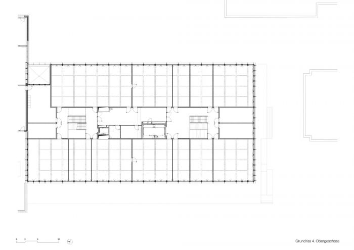
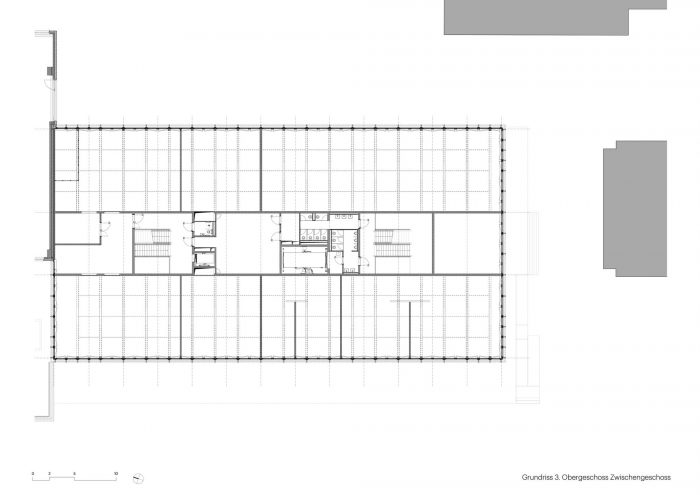
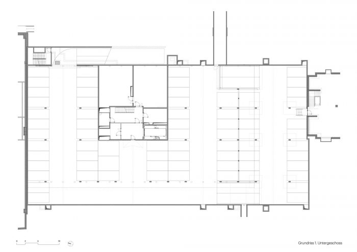
该建筑包括各种教学设施和多个工作室,从设备齐全的木工、钢结构和印刷工作室到设计和制造珠宝的工作室,以及用于计算机辅助制造的高科技设施、公共空间和一个可公开访问的房间,该房间是瑞士最大的天然和合成颜料收藏馆之一。卢塞恩应用科学大学艺术和设计系大楼的提案,说明了我们与大学各教研室代表密切合作的方法,以确保他们各自的空间要求得到满足和超越,实现成功、鼓舞人心和创新的教学环境。
The building consists of various teaching facilities and multiple workshops ranging from fully equipped woodwork, steel work and printing ateliers to studios for design and manufacturing of jewellery as well as hi-tech facilities for computer aided manufacturing, common spaces and a publicly accessible room that houses one of the Switzerland’s largest collection of natural and synthetic pigments. The proposal for the Arts and Design Department Building for the University of Applied Sciences Lucerne, illustrates our approach to working in close collaboration with representatives of the University’s various chairs, in order to ensure that their individual spatial requirements are met and exceeded, toward successful, inspiring and innovative teaching environments.


我们提出的战略有两个方面。除了关注建筑内部的每个单独的方案要求外,还关注其对更广泛的环境的贡献。建筑物的立面,通过对现有工业建筑的现代诠释,补充了其与独特的工业环境的融合,而某些地面区域则是公开的,将建筑物的功能暴露在其周围环境中。
Our proposed strategy is twofold. Besides the focus on each individual programmatic requirement for the building within it, attention is given to its wider contribution to its broader context. The facade of the building, derived by a modern interpretation of the existing industrial buildings, complements its integration to its unique, industrial setting, while certain ground level areas are made publicly accessible, exposing the function of the building to its surroundings.









































Architects: Harry Gugger Studio
Area : 13270 m²
Year : 2019
Photographs :Florian Amoser, Daniela Burkart
Manufacturers : BWB, Baltensweiler, Eternit, Nemetschek, WALO Bertschinger, Zumtobel
Lead Architect : Caroline Schmidt
Project Management : TGS Bauökonomen
Engineering : EMCH + BERGER
Electrical Engineer : Jules Häfliger AG
EMP Engineer : RSP Bauphysik AG
Design Team : Harry Gugger, Franziska Cherdron, Thomas Domenger, Furio Montoli, Christian-Lars Germadnik, Salome Rätz, Ian Wiedmer
Clients : Viscosistadt AG
Tenants : Lucerne University of Applied Sciences & Arts
Project Managment : TGS Bauökonomen
Building Technology : Markus Stolz GmbH & Co KG
Sanitary Engineer : Arregger Partner AG
Facade Planner : Atelier P3
Façade Planner : Atelier P3
City : Emmenbrücke
Country : Switzerland