一个新的中心点。阿马尼亚克区今天是一块巨大的铁路荒地,也是一个活动区域,在这个区域的中心,波尔多市的新中心正在发展。俯瞰阿马尼亚克广场,Tri Postal街区,正如其名称所示,包括城市的前邮件分拣大楼,其活动在2016年停止。
A new centrality. The Armagnac sector is today a huge railway wasteland and a sector of activity at the heart of which a new centrality for the city of Bordeaux is developing. Overlooking the Place d’Armagnac, the Tri Postal block, as its name suggests, includes the city’s former mail sorting building, whose activity stopped in 2016.




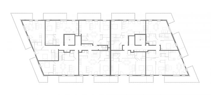
现在它被分为三个部分,将由CoBe公司进行部分翻新。就在这个象征性的建筑旁边,CoBe参与了由ECDM机构协调的街区第一阶段的设计:一个混合用途的建筑群,由住房单元和办公室组成,站在一个共同的两层楼的底层。在这个综合体中,CoBe监督了位于地块最东边的两座塔楼的设计,以及它们各自在共享基础上的部分。它们是项目的L1和L2地段。
Now divided into three bodies, it will be refurbished in part by CoBe. Right next to this symbolic building, CoBe took part of the design of the first phase of the block coordinated by ECDM agency: a mixed-use building complex composed of housing units and offices standing on a shared two-story ground floor. Within this complex, CoBe oversaw the design of the two towers located at the extreme east of the plot and their respective parts of the shared base. They are lots L1 and L2 of the project.

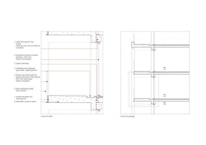
两座大楼。所有住宅楼的基座都尊重相同的框架,由底层两层的柱梁结构和前四层外墙的长条形木栅组成。
Two buildings. The base of all the residential buildings respects the same framework, composed of a post-beam structure on two levels of the ground floor and long loggias on the façade of the first four floors.

在保持相同厚度的混凝土板的同时,由于一组交错的阳台,两栋10层的住宅楼L1和L2在视觉上从邻居中脱颖而出,打乱了他们的线性和水平外观。实体和空隙的效果使立面充满活力,打破了基地明显的水平性和其后梁网格的强烈表达,并将阳台分为有顶和无顶的空间。
While keeping the same massive thicknesses of concrete slabs, the two ten-story housing buildings L1 & L2 stand out visually from their neighbors by disturbing their linear and horizontal appearance thanks to a set of staggered balconies. The created effect of solids and voids energizes the façade, breaking with the pronounced horizontality of the base and the strong expression of its post-beam grid, and divides the balconies between covered and uncovered spaces.


在立面方面,其色调在底部的 "金发石 "沙质预制混凝土和考虑到波尔多传统外墙色调的木栅栏之间波动,上层的阳台采用浅灰色混凝土,与铝制细木工板和灰色涂层相结合。
On the façade side, the shades fluctuate between a sandy prefabricated concrete of «blond stone» color at the base and loggias putting in mind the hues of the Bordeaux’s traditional facades, and a light grey concrete for the upper levels’ balconies, combined with aluminum joinery and a grey coating.

阳台的栏杆是由穿孔铝制成的,遵循重新发明的传统波尔多模式,有时会被一组混凝土护栏打断,这些护栏不断延伸到板块上。阳台的底部用带金色漆面的混凝土图案巧妙地加以点缀。
The balconies’ railings are made of perforated aluminum following a reinvented traditional Bordeaux pattern and are sometimes interrupted by a set of concrete parapets that are continuously extending the slabs. The undersides of the balconies are subtly embellished with patterned concrete with gold lacquer.

住宅、木屋、阳台。这两座建筑由两个独立的大厅提供服务,由33个社会租赁住房单元和44个自由拥有的住房单元组成,从一室到五室不等,平均排列在各个楼层。最上面的两层是复式楼,有双层高的客厅。双层地面上有商业场所和两层停车场,以及为每个住宅提供的地窖。
Dwellings, loggias, balconies. The two buildings, served by two separate halls, are made of 33 social renting housing units and 44 free-to-own housing units ranging from one-room to five-room, equally arranged on all levels. The top two floors host duplexes containing double-height living rooms. The double ground floor hosts commercial premises and car parks on two levels, as well as cellars provided for each of the dwellings.

由于该项目完全设计在地块的边缘,没有公共空间,所有的住宅都有平均10平方米的大型外部空间,无论是阳台还是木屋。住宅楼的宽度与邻近的办公楼相同(20.5米),因为它们的体量被切割成大块,在每个立面上创造出两米宽的户外空间。
As the project is entirely designed on the edge of the plot and has no public spaces, all the dwellings have large exterior spaces of an average of 10m2, whether balconies or loggias. The residential buildings are the same width as the neighboring office buildings (20.5 metres), as their volumes have been cut into the mass to create two-meter-wide outdoor spaces on each façade.

所有的住宅都能欣赏到波尔多的风景,并且不会出现与其他住宅相隔的情况。
All the dwellings enjoy views of Bordeaux’s landscape and do not suffer any overlooked situation with other dwellings.












Architects: CoBe Architecture & Paysage
Area : 11200 m²
Year : 2022
Photographs :Luc Boegly
City : Bordeaux
Country : France