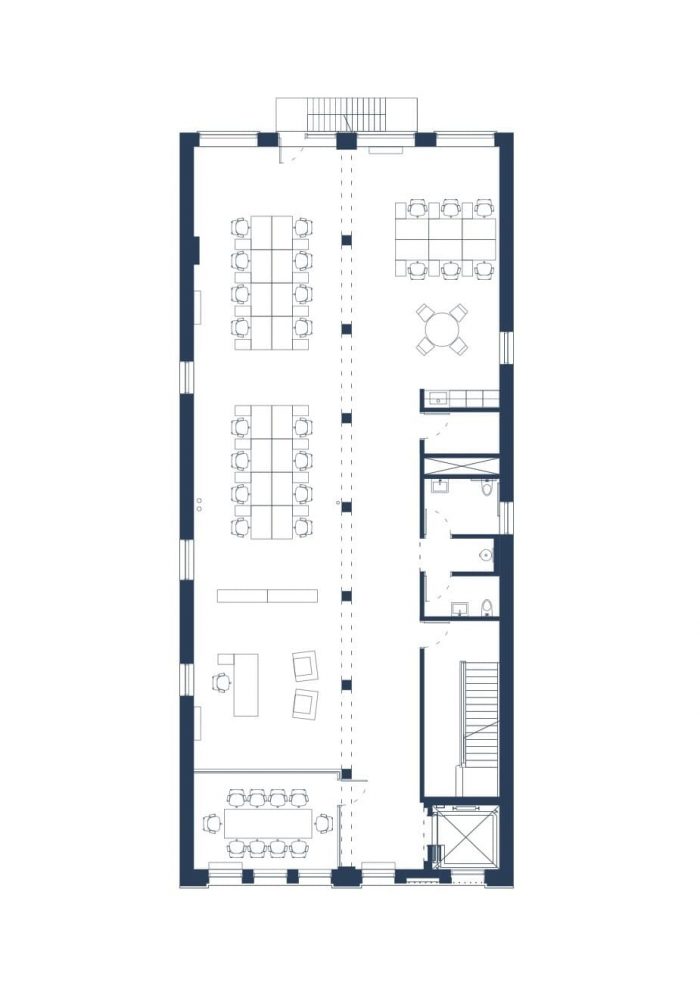
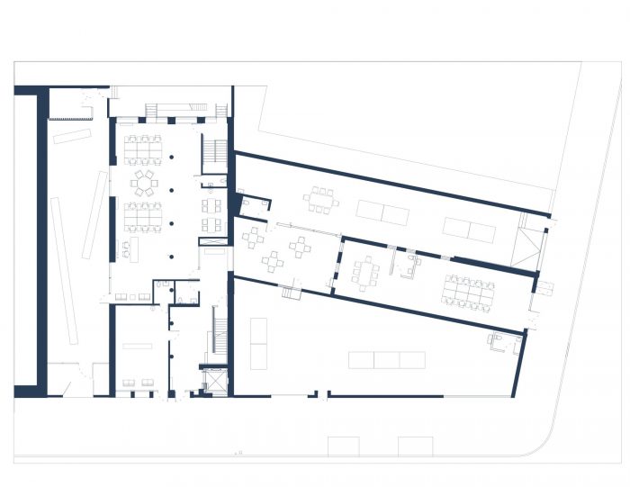
该项目包括翻新和重新设计华盛顿街77号,这是一个六层楼,38,000平方英尺,建于20世纪20年代的前砖石工厂,以及邻近的其他四座历史建筑群。这个雄心勃勃的适应性再利用项目位于布鲁克林海军船坞附近的华盛顿大道和公园大道的拐角处,借鉴了附近丰富的历史和20世纪早期纽约仓库的设计类型。
The project consists of the renovation and redesign of 77 Washington, a six-story, 38,000 square-foot, former masonry factory built in the 1920s, as well as a cluster of four other historic buildings adjacent to the property. Located on the corner of Washington Avenue and Park Avenue near the Brooklyn Navy Yard, this ambitious adaptive reuse project draws from the neighborhood’s rich history and design typologies abundant in early 20th-century New York warehouses.



改造后的项目既尊重了该地块的历史,又创造了一个可变化的、多用途的工作空间,可以灵活地容纳一系列的租户。一个庞大的艺术家工作室和一个摄影工作室占据了相邻的单层建筑。"共同负责人Max Worrell说:"现有的建筑具有如此丰富的历史和层次感,我们希望我们的设计能够突出这些发现的条件,同时也要更新以适应新的用途和新的项目。新旧之间的深思熟虑的并置--最小的当代细节设计与现有材料的光泽形成对比--强调了整个建筑群的历史。
The rehabilitation honors the site’s past while generating a mutable, multi-use workspace that can flexibly accommodate an array of tenants. A sprawling artist studio and a photography studio occupy the adjacent one-story structures. “The existing buildings were so rich with history and layered with a texture that we wanted our design to highlight these found conditions while also updating to accommodate new uses and new programs,” says co-principal Max Worrell. Thoughtful juxtapositions between old and new—where minimal contemporary detailing contrasts with the patina of the existing materials—highlight the complex’s history throughout.



位于场地中心的六层高的工厂大楼是整个建筑群的支柱。在右边的南面,有三座一层的建筑,由一个私人的、青翠的中央庭院连接,庭院向天空开放,是通过拆除原来覆盖空间的屋顶雕刻出来的。位于工厂左侧的一个车库被拆除,该空间被改造成一个由Michael van Valkenburgh事务所设计的郁郁葱葱的花园和一个自行车存放区,供所有租户使用。
Located at the site’s center, the six-story factory building anchors the overall complex. This is bordered on the right side, to the south, by three one-story structures connected by a private, verdant central courtyard open to the sky, carved out by removing a roof that had originally covered the space. A garage located to the factory’s left was removed and the space transformed into a lush garden, designed by Michael van Valkenburgh Associates, and a bike storage area, accessible to all tenants.


通过拆除填充的砖石墙,Worrell Yeung恢复了单层结构的原始店面开口,这些店面容纳了艺术家和摄影工作室,在公园大道的街道上创造了一个强大的视觉存在,并使室内充满了自然光。对于角落里的艺术家工作室,他们创造了一个大型的玻璃砖夹层,以引入自然、漫射的光线,在晚上像灯笼一样发光,激活了这个角落。每栋建筑的外墙都被涂成深蓝色,以统一这些建筑,使它们看起来像一个系列。
By removing infill masonry walls, Worrell Yeung restored the original storefront openings of the single-story structure that houses artist and photography studios, creating a strong visual presence at street level on Park Avenue and filling the interiors with natural light. For the corner artist studio, they created a large glass block clerestory to bring in natural, diffuse light that also glows like a lantern in the evening and activates the corner. The exterior of each building was painted dark blue to unify the buildings so they read as a collection.


沃雷尔-杨希望暴露和庆祝该地的历史,这为设计提供了最重要的依据。在花园里,原来的黄色木门,从街上可以看到,被保留了下来,外墙的砖头没有被触动,显示出以前的结构的幽灵印记。参照布鲁克林海军船坞,花园里的长椅是三根实心的橡木原木,在过去十年的各种风暴之后,由一个通常可能用于翻新船只的造船商从纽约、马萨诸塞州和新罕布什尔州收集。
Worrell Yeung’s desire to expose and celebrate the site’s history overridingly informed the design. In the garden, the original yellow wood gates, visible from the street, were preserved and exterior brick walls were left untouched to reveal a ghost imprint of the previous structure. With reference to the Brooklyn Navy Yard, the benches in the garden are three solid oak logs, collected after various storms over the past decade from New York, Massachusetts and New Hampshire by a shipbuilder that might normally use them for refurbishing boats.


这种策略延伸到中央的六层厂房的内部,材料的选择,如钻石板地板,未完成的钢栏杆和门,以及混凝土地板,呼应了布鲁克林古老工厂固有的工业属性(粗糙,耐用,不精致)。沃雷尔-杨与位于海军院的木工Bien Hecho合作,从木质地板托梁上抢救和重组木材,作为定制的会议室桌子和大厅长凳。带有高质感的砖墙和旧油漆层被清洗、密封,并与干净、统一的混凝土地板和白墙相得益彰。
This strategy extends to the interiors of the central, six-story factory building, where material selections like diamond plate floors, unfinished steel railings and doors, and concrete floors echo the industrial properties (rough, durable, unrefined) inherent in age-old Brooklyn factories. Worrell Yeung worked with Navy Yard- based woodworker, Bien Hecho, to salvage and reconstitute the wood from the timber floor joists as a custom conference room table and lobby bench. Highly textured brick walls with layers of old paint were cleaned, sealed, and complemented with clean, uniform concrete floors and white walls.


在大厅里,一扇大窗户从相邻的一层楼房所能到达的私人庭院中引来光线。正如它在整个建筑群中所做的那样,网格结构反复出现在大厅、菱形钢板地板、玻璃砖元素和独特的胶合板大厅墙上。
In the lobby, a large window draws light from the private courtyard accessible by the adjacent one-story buildings. As it does throughout the entire complex, gridwork appears repeatedly in the lobby, in the diamond-plate steel floor, glass block elements, and a distinctive plywood lobby wall.


最值得注意的是,为了创造性地处理电梯井口的钢筋保护要求,Worrell Yeung将整个项目中看到的相同的格子图案应用于覆盖在电梯井窗户上的钢格子上,当从街上观察电梯结构时,以及从驾驶室内观察电梯时,在建筑的外部创造了一种优雅的阅读效果。正如共同负责人Jejon Yeung所说:”这些干预措施是对古老的工厂建筑和海军船坞仓库的美学的点头,这些建筑的窗棂、围栏和船坞在历史上都有网格。
Most notably, in order to creatively approach the bar protection requirement for elevator shaft openings, Worrell Yeung applied the same lattice motif seen throughout the project to the steel grids which cover the shaft windows, creating an elegant reading of the elevator on the building's exterior, when observing the structure from the street, as well as from inside the cab. As co-principal Jejon Yeung says, “These interventions are a nod to the aesthetics of storied factory buildings and Navy Yard warehouses, which historically featured grids in their sash windows, fencing, and ship docks.”




































Architects: Worrell Yeung Architecture
Area: 31500 ft²
Year: 2020
Photographs:Naho Kubota
Manufacturers: Alcon Lighting®
Elevator: Jenkins & Huntington
Structural: Silman Structural Engineers, Silman
Expeditor: RPO
Contractor: Corcon
MEP: Engineering Solutions
Landscape: MVVA
Lighting: Engineering Solutions
Security: Lerner Solutions
FP: Engineering Solutions
FA: Engineering Solutions
City: Brooklyn
Country: United States