Casa Antillón是一家位于马德里的建筑设计工作室,该工作室推出了其首个住宅改造项目: 一座没有门的房子。
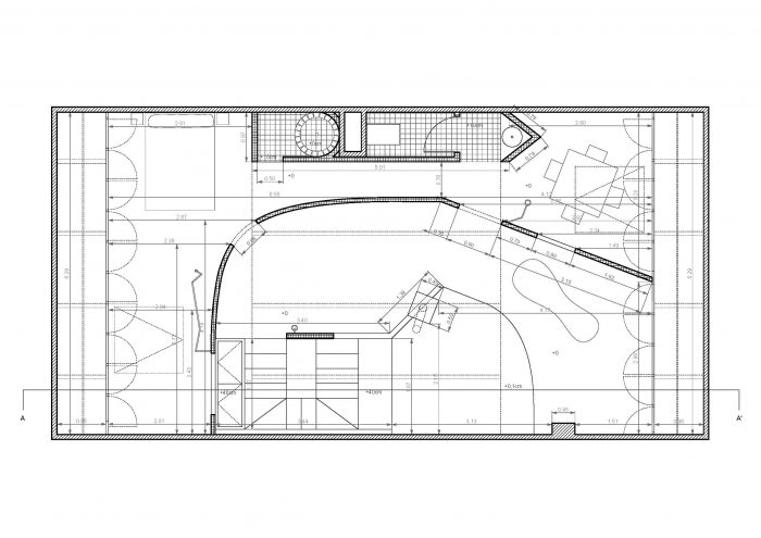
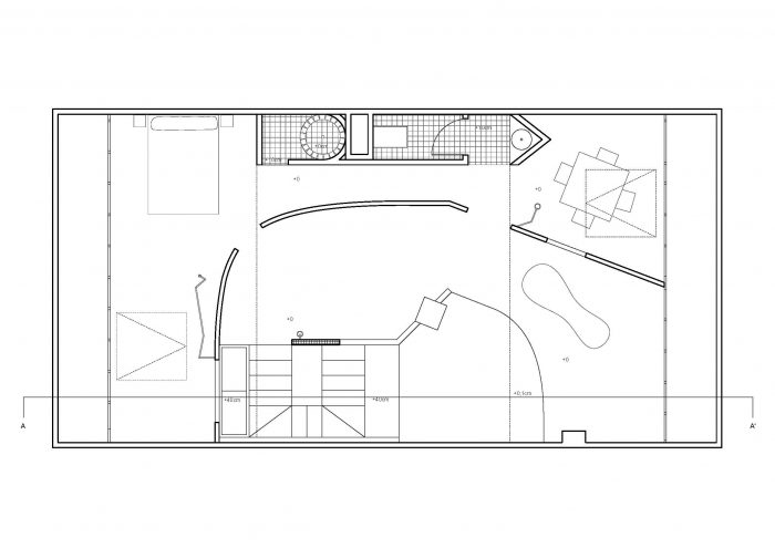
这座房子的阁楼堆满了玩具、家具和灰尘。这是一个完全开放的空间,约 70 平方米,几乎没有人使用。因此,客户委托我们将这个阁楼改造成他们孩子和客人的房子。这个小房子将有一个客厅、一间卧室、一个壁炉、大量储藏室和一间浴室。
Casa Antillón, an Architecture and Design studio based in Madrid, presents its first domestic renovation: A house without doors.
The attic of this house was filled with toys, furniture, and dust. It was a completely open space, approximately 70 square meters, that was barely used. Therefore, the clients commissioned us to convert this attic into a house for their children and guests. A small house that would have a living room, a bedroom, a fireplace, plenty of storage, and a bathroom.


通过对这个地方的分析,我们很快就明白,这个房子必须打破其他楼层的常规等级制度。这个项目不应该照搬大盒子和小盒子的旧模式,即每个功能都被墙壁完全隔离,只能通过门打开。这种类型迫使每个房间都有特定的功能,而没有任何互动的机会。
Analyzing this place, we soon understood that this house had to break with the usual hierarchies found in the rest of its floors. The project should not replicate the old formula of big boxes and small boxes, where each function is completely isolated by walls, which only open through doors. A typology that forces each room to have a specific function without any opportunity to interact.



我们必须打破房屋的墙壁:切割它们、变形它们、破坏它们。并恢复将火堆置于中心点的古老理念,围绕火堆将不同的空间衔接起来。这些空间的功能会随着时间的推移而改变,因为我们还没有为它们命名,但它们确实能确保一定程度的私密性。为此,我们设计了一堵断裂的弧形墙,将空间分为公共空间和私人空间。
这堵墙的位置很有战略意义,因为它把天窗留在了光线强烈的一侧,使所有光线都被控制在墙的一侧。通过打开缝隙的方式,我们在没有窗户的室内营造出一种可以看到室外的感觉。此外,墙壁的两侧各有两条通道,既可以通向两个较小的房间,也可以绕过墙壁。
We had to break the walls of the house: cut them, deform them, destroy them. And recover the ancient idea of placing a fire at the central point, around which the different spaces are articulated. Spaces that can change their function over time, as we have not named them, but that do ensure a certain level of privacy. To achieve this, we created a broken curved wall that divides the spaces into public and private.
The positioning of the wall is strategic as it leaves the skylights on one side, where the light enters intensely, allowing all this light to be contained on one side of the wall. And by opening gaps in such a way that we create, in an interior without windows, the sensation of being able to look outside. Additionally, two passages open on each side of the wall, giving access to the two smaller rooms and also allowing it to be bypassed.


我们在浴室中也采用了类似的方法,将浴室分成淋浴间、马桶和洗脸池。三个独立的空间连成一排,占用较少的地面空间,并允许与公寓进行不同的对话。我们想象一个人起床后,赤脚走在屋内的地毯上,直接进入淋浴间,甚至不需要开门或关门。
在浴室和墙壁这两个项目中最重要的元素之间,形成了一条空间张力十足的走廊。这是一条从一个房间通往另一个房间的秘密通道,也是通往浴室的通道。创造了一系列通常不存在于家庭领域的关系,鼓励人们在屋内漫步。这种行走并不是预先确定的,因为每天都是由使用者自己来决定如何在这个空间中穿行。
We apply a similar approach in the bathroom, which we break down into a shower, toilet, and sink. Three independent spaces situated in a row, occupying less floor space and allowing for a different dialogue with the apartment. We imagine a person waking up, walking barefoot on the carpet of the house, and entering directly into the shower without even needing to open or close doors.
Between the bathroom and the wall, the two most important elements within the project, a corridor is created where the space is tensioned. A sort of secret passage that leads from one room to another and provides access to the bathroom. Creating a series of relationships that do not usually exist in the domestic sphere and encourage walking through the house. A walk that is not predetermined since it is the user themselves, each day, who decides how to navigate this space.















Architecture and interiorism: Casa Antillón
Year: 2024
Area:70m2
Management: Irene Álvarez
Photography: Imagen Subliminal
City: Navalcarnero, Madrid
Country:Spain