AB屋是为Broek op Langedijk的一个成长型家庭设计的。在20世纪70年代初的土地合并之前,Broek、Zuid和Noord-Scharwoude的堤坝村庄被划分为数百个小岛,可以乘船进入。随着时间的推移,这些岛屿的一部分被宣布为自然保护区,另一部分则成为住宅区。
AB House has been designed for a growing family in Broek op Langedijk. Until the land consolidation in the early 1970s, the dyke villages of Broek, Zuid, and Noord-Scharwoude were divided into hundreds of small islands accessible by boat. Over time, a part of the islands has been declared a nature reserve and another part has become a residential area.




这个住宅区由独立的土地组成,上面有一个被水包围的单户住宅。分散的体量和主要的倾斜屋顶是这些房屋建筑的特点。坡屋顶和窗户开口的形状和大小的差异以及砖砌结构的不同使这些住宅彼此不同。面对诸如改造现有住房的挑战,AB屋是一个适度但独特的例子,说明如何使乡村生活更具有可持续性,并适应不断变化的当代生活需求。
This residential area consists of individual pieces of land with a single-family house on it that is surrounded by water. Fragmented volumes and dominant pitched roofs characterize the architecture of these houses. Variances in the shape and size of the pitched roofs and window openings and differences in the brickwork set the dwellings apart from each other. With challenges such as the transformation of the existing housing stock, AB House is a modest, yet distinct example of how living in the countryside can be made more sustainable and adapted to changing demands for contemporary living.


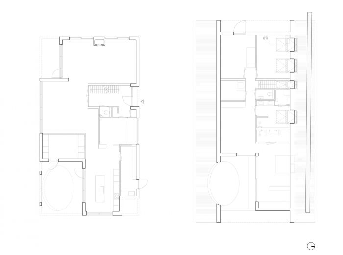
翻新和改造房屋设计的一个关键出发点是保持现有底层的布局,并通过在城市法规允许的最大体积内建造来扩大一楼的房屋。为了实现这一目标,我们设计了一个新的屋顶和一楼,而房子在底层保留了零散的体量感。屋顶和一楼的扩展部分覆盖了现有的砖结构,并站在一个引人注目的黑色钢结构上。
One key starting point for the design of the renovation and transformation of the house was to keep the layout of the existing ground floor and to enlarge the house on the first floor by building up to the maximum volume as permitted within the urban regulations. To achieve this, a new roof and first floor have been designed, while the house retains the feeling of fragmented volumes on the ground floor. The roof and first-floor extension cover the existing brick construction and stand on a striking black steel structure.


一楼的钢网包裹和一楼的白色喷漆砖块使每一层都有自己的特点和统一感,而不考虑体量的变化。底层体量中深邃的视线和宽敞的开口将厨房、起居室和办公空间与外部连接起来,而一楼具有更封闭的立面、特定的开口和木质的内部空间,使卧室和浴室形成一个封闭而温暖的氛围。
The steel mesh wrap of the first floor and white painted brickwork on the ground floor give each layer its own character and sense of unity, regardless of the variations in the volumes. Deep sight lines and generous openings in the ground floor volumes connect the kitchen, living room, and office space with the outside, while the first floor with a more closed facade, specific openings, and wooden interior results in a confined and warm atmosphere with bedrooms and the bathroom.


倾斜的屋顶,用波纹铝包覆,为房子提供了其特有的轮廓,并将整体联系起来。雨水槽,传统上是阿卡迪亚地区斜屋顶建筑的一个明显特征,通过钢梁的方式被做成了一个明显的,但又异乎寻常的建筑特征。此外,房子在黑色的钢结构中还配备了抽象的开口和棱形,如一个圆、一个三角形和一个方形。
The pitched roof, clad with corrugated aluminum, provides the house with its characteristic silhouette and ties the whole together. The rainwater gutter, traditionally a distinct feature of pitched roof architecture in arcadian areas, was made into a pronounced, yet whimsical architectural feature by way of a steel beam. Additionally, the house has been outfitted with abstract openings and prismatic forms in the black steel structure, such as a circle, a triangle, and a square.


精确的铝制饰面细节和克制的材料和色调使不同的元素在平面、立面和剖面上结合起来。这将20世纪80年代的单维房屋转变为一个更有层次和多样化的建筑作品,试图充分吸收周围绿色和水资源丰富的环境的品质。其结果是一个传统和现代完美融合的房子。
Precise detailing of the aluminum finishings and a restraint material and color palette make the different elements come together in the plan, facade, and section. This transforms the one-dimensional house from the 1980s into a more layered and diverse piece of architecture that tries to fully absorb the qualities of the surrounding green and water-rich environment. The result is a house in which tradition and modernity blend perfectly.







Architects: Space Encounters
Year : 2023
Photographs :Lorenzo Zandri
Structural Engineering : De Ingenieursgroep
Design Team : Gijs Baks, Joost Baks, Jordy Vos, Carlos Callejo, Iñigo Berriozabal, Stijn de Weerd
General Contractor : Kien aannemers
Installations : Nelissen Ingenieursbureau
City : Broek op Langedijk
Country : The Netherlands