位于Schaerbeek与Noordwijk接壤的一个角落的 "Fabriek "被改造成儿童艺术基础组织的大本营。这个旧工业综合体的位置是Noordwijk的企业办公环境和Schaerbeek的异质城市结构之间摩擦的特征。改造 "Fabriek "的基本目标是让ABC在这个企业和社会文化环境之间紧张的城市领域中工作。
The 'Fabriek', located on a corner in Schaerbeek bordering Noordwijk is renovated into the home base for the organisation Art Basics for Children. The location of the old industrial complex is characteristic of the friction between the corporate office environment of Noordwijk and the heterogeneous urban fabric of Schaerbeek. The underlying goal of the renovation of the 'Fabriek' is to allow space for ABC to work in this urban field of tension between the corporate and socio-cultural environment surrounding the site.



该建筑通过恢复现有的画廊作为入口与这种动态关系进行对话,并为建筑内部的无障碍组织结构提供了动力。在第二阶段,一个新建的带有公共厨房和舞蹈室的建筑将加强Gaucheretplein的这个互动区。地块上的其他开放空间被优化使用,作为建筑内部运作和外部公共空间,如Gaucheretplein、Jollystraat和Senne河的床上用品之间的连接空间。一个巧妙设计的围栏有助于为这些关系提供定义。
The building enters into dialogue with this dynamic by restoring the existing gallery as an entrance and provides the impulse for an accessible organisation structure inside the building. In a second phase, a newly constructed building with public kitchen and dance studio will reinforce this interactive zone on Gaucheretplein. The other open space on the plot is put to optimum use as connecting space between the internal operation of the building and the external public spaces such as Gaucheretplein, Jollystraat and the bedding of the Senne. A subtly designed fence helps gives definition to these relationships.

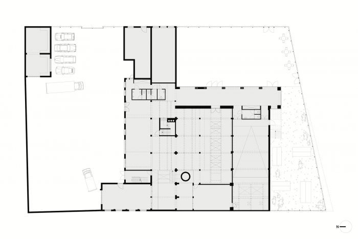
预算很低,而 "Fabriek "的状态,是有问题的。这就是为什么这个项目坚决地选择对建筑和ABC的运作采取一种纯粹的工具性态度。外墙和结构被简化为其本质,同时解决了建筑最紧迫的结构问题。这种低调的方法被建筑内战略位置的特殊建筑干预所抵消。这些干预措施不仅提高了 "Fabriek "作为ABC平台的可读性,而且还利用了其分层的工业历史的潜力。建筑内创建了一个戏剧性的中庭,将各个车间、电影制片厂、图书馆、托儿所-咖啡馆和露天剧场连接起来。(见图)
The budget is low and the state of the 'Fabriek', problematic. Which is why this project resolutely chooses to adopt a purely instrumental attitude with respect to the building and the operation of ABC. The facades and structure are reduced to their essence while simultaneously solving the building’s most pressing structural problems. This low-key approach is counterbalanced by exceptional architectural interventions at strategic places within the building. These interventions not only improve the legibility of the ‘Fabriek’ as a platform for ABC but also exploit the potential of its layered, industrial past. A theatrical atrium is created inside the building which links the various workshops, the film studio, the library, crèche-café and the amphitheatre. (see figure)

随着时间的推移,一个有机的集合体显现出来,但它的结构和灵活性足以支持建筑的不同方案的利用。由于其通用性,与间歇性的特殊干预交替进行,该建筑可以很容易地长期容纳新的、潜在的功能。该建筑的材料是故意粗糙的,而且由于建筑经济的原因,也是未完成的。在这里,ABC公司独特的、与触感良好的多重木制工作室所产生的张力得到了充分的发挥。
In time, an organic ensemble manifests itself which is nevertheless structured and flexible enough to support the varying programmatic exploitation of the building. As a consequence of the generic character, alternating with intermittent exceptional interventions, the building can easily house new, potential functions over the long term. The materiality of the building is deliberately rough and – resulting from the construction economy – also unfinished. The tension created with the tactile multiplex wooden studios that is so distinctive for ABC is given full rein here.

建筑物及其功能的利用通过工作室和活动站的建设被赋予了生命。这些空间、建筑装置旨在发表设计声明,同时立即散发出和提高体验质量。在每个工作室中,ABC试图创造一个精神和物理空间,一方面,它几乎不言而喻地使参观者感到轻松,另一方面,它又能刺激人们的好奇心。
The building and its functional exploitation are brought to life with the construction of studios and activity stations. These spatial, architectural installations aim to make a design statement while immediately exuding and improving experiential quality. In each studio, ABC has tried to create a mental and physical space which, on the one hand, almost self-evidently puts the visitor at ease while stimulating curiosity on the other.

建筑和它的布局不仅是ABC活动的后勤支持,而且本身也成为一种教育工具。通过使用不同的结构、形式、纹理、材料等,它旨在传达一些关于生活是如何被我们的空间环境的性质所定义的。
The building and its layout is not only a logistical support for ABC’S activities but also becomes an educational tool in itself. By working with different structures, forms, textures, materials, etc., it is intended to convey something of how life is defined by the nature of our spatial context.






Architects: HUB
Area : 1725 m²
Year : 2007
Photographs :Ilse Liekens, Sarah Blee
Country:Belgium