AB&D的新办公室是在两个相邻的商业房间之间的整合中出现的,这两个房间被合并为一个空间。该项目的设计是为了表达该事务所的个性及其品牌,同时还为团队无数的工作时间提供一个舒适的工作空间。
AB&D’s new office emerges from the integration between two neighboring commercial rooms that were combined in a single space. The project was designed to express the personality of the practice and its brand, while still providing a comfortable working space for the team’s countless hours of work.





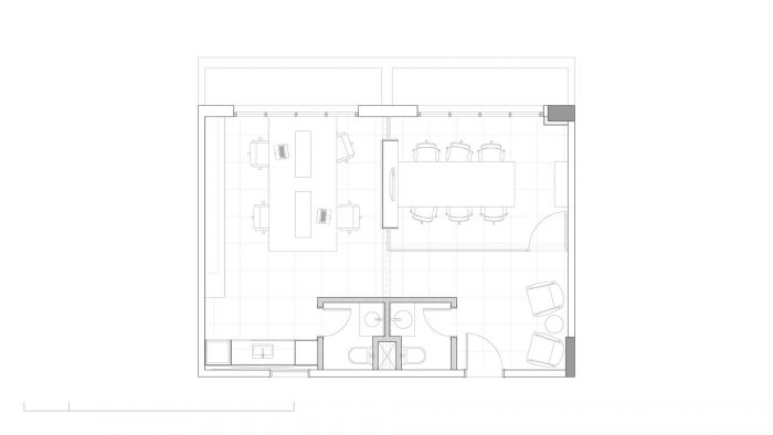
办公室有工作区、会议室、接待处和厨房,都是围绕着以绿色为标志的浴室体量组织的--这是项目的亮点。与这种强烈的构图元素形成对比的是,所采用的材料调色板短而简单,有白色元素、Freijó木材的木制品和水泥基瓷地板。另一个亮点是厨房后墙的艺术瓷砖,由当地艺术家Rômulo Lass设计。
The office has a workspace, meeting room, reception and kitchen, all organized around the volume of bathrooms marked by the green color - the highlight of the project. In contrast to this strong compositional element, the material palette adopted is short and simple, with white elements, woodwork in Freijó timber and cementitious porcelain flooring. Another highlight is the artistic tiles by the local artist Rômulo Lass in the back wall of the kitchen.

空间的布局基本上被组织成两个区域。一边是大厅和会议室,欢迎人们来到办公室,另一边是工作间和茶水间,以一种完全整合的方式完成项目。由于客户对隐私的需要,该项目唯一的隔间是会议室,这样一个点很突出,因为在这个房间和浴室的体积之间最终形成了一个小走廊,其标志是天花板的线性和间接照明。
The layout of the space is basically organized into two zones. On one side, the hall and meeting room welcome people when they arrive at the office, and, on the other, the workroom and pantry complete the program in a fully integrated way. The only compartment of the project is the meeting room due to the need for privacy of customers, such a point stands out because between this room and the volume of bathrooms ends up forming a small corridor marked by the linearity of the ceiling and its indirect lighting.







Architects: Solo Arquitetos
Area : 50 m²
Year : 2019
Photographs :Eduardo Macarios
Coordination : João Gabriel Küster Cordeiro
Woodwork : Moldare Móveis
Light Glass Partitions : Esquadria Santos
Construction : Neuri Batista
Production Elements : Ôda Design Club, Heloísa Galvão, Alex Rocca
Blinds : Inovart Persianas
Lighting : E.LED Light Studio, DsgnSelo
Furniture : Inove Design, Bruno Faucz
Artistic Tiling : Rômulo Lass
City : Bigorrilho
Country : Brazil