位于Adamów的托儿所是一个为50名儿童设立的当地公共设施。这里有两个小组房间和一个额外的游戏室,用于感官整合和体育活动。游戏室有一个独立的入口和厕所,所以它也可以被当地社区用来组织小型活动或市政委员会会议。在未来,它可以被改造成另一个供托儿所或幼儿园儿童使用的小组房间。
The nursery in Adamów is a local, public facility created for 50 children. There are two group rooms and an extra playroom for sensory integration and sports activities. The playroom has a separate entrance and toilets so it can also be used by the local community to organize small events or municipal council meetings. In the future, it can be transformed into another group room for children in the nursery or kindergarten.






建筑物的位置受到位于附近的一个墓地的高度影响。苗圃区与街道和墓地之间有一堵砖墙相隔。在街道和墙之间,有一个 "魔法果园"。孩子们可以沿着隐藏在草地上的蜿蜒小路走到那里,在小路的尽头,有一个门打开。
The location of the building was highly affected by a cemetery situated nearby. The nursery area is separated from the street and cemetery by a brick wall. Between the street and the wall, there is an „enchanted orchard”. Children can get there walking down the winding path hidden in the grass and meadow, at the end of which a wicket opens.

建筑物是马蹄形的,中央部分有一个大露台。它面向南方,但建筑给人一种阴影,所以孩子们可以安全地玩耍。操场是露台的一个延伸。所有的区域都种植了树木、灌木和各种浆果灌木,它们将在这里生长并丰富这个地方。
The building is horseshoe-shaped with a big terrace in the central part. It faces the south but the building gives a shadow so children can play safely. The playground is an extension of the terrace. All the area is planted with trees, shrubs, and various kinds of berry bushes which will grow and enrich this place.



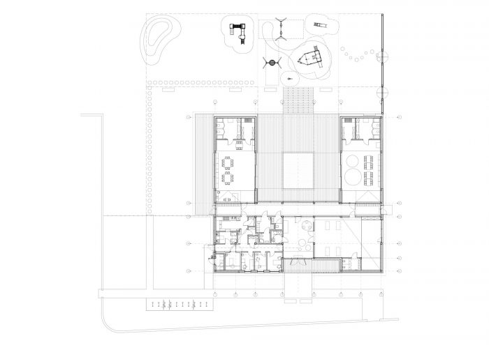
建筑物的入口位于北部。主厅通向游戏室、行政设施部分和衣帽间。从衣帽间出来,孩子们进入两个小组房间,每个房间都有一个宽敞的厕所和一个小储藏室。孩子们可以从所有的房间进入一个中央阳台。在两个小组房间里,有可以打开的大窗户,形成一个6米宽的通道。当天气好的时候,外部可以成为内部的无缝延伸,所有的空间都成为一个巨大的操场。
The entrance to the building is located on the north. The main hall leads to the playroom, administrative-utility part, and the cloakroom. From the cloakroom, children enter two group rooms, each with a spacious toilet and a small storeroom. Children have access to a central terrace from all the rooms. In two group rooms, there are big windows that can be open to creating a 6 meters wide passage. When the weather is nice the exterior can become a seamless extension of the interior and all the space becomes a huge playground.



在外墙上,有天然的材料,如砖、木材和金属板。出于安全考虑,露台是由复合板制成的。为了创造一个适合儿童的空间,建筑的规模被缩小了。屋顶向露台倾斜,所以它周围的墙壁看起来更低。
On the facades, there are natural materials such as brick, wood, and metal sheet. The terrace is made of composite boards because of safety reasons. To create a child-friendly space the building is downscaled. The roof slopes towards the terrace so the walls around it seem to be lower.



幼儿园受到当地居民的友好欢迎,他们将其描述为 "未来主义",熊的脚印成为其标志,因为熊在Adamów的怀抱中。
The nursery was friendly welcomed by the local inhabitants who described it as "futuristic” and the bear footprint became its logo as the bear is in Adamów’s arms.



































Architects: xystudio
Area: 561 m²
Year: 2020
Manufacturers: Trespa, Balsan, Tarkett, Wienerberger, Geyer & Hosaja, Lars Laj, Locomoco
Lead Architects: Filip Domaszczyński, Dorota Sibińska, Marta Nowosielska
City:Adamów
Country:Poland