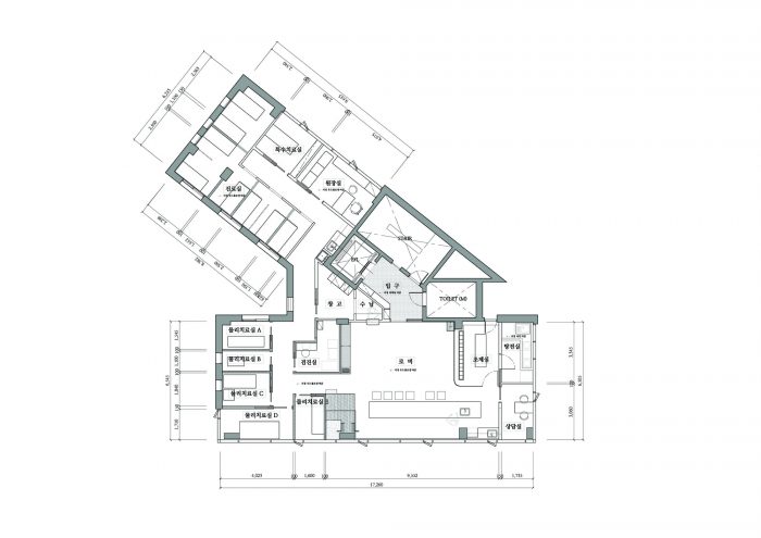
同理心
我作为一个空间设计师已经工作了几十年,我意识到与人的关系以及在与人的关系中所做的一切都很重要。而我认为连接一切关系的媒介是 "同理心"。当我第一次与客户见面时,我进行了一次长谈。在决定一起工作后,我们继续谈了很多次,客户分享了很多故事。当时,他的工作性质和病人是他故事的主要话题。我觉得他希望自己的一些东西能被另一个人强调,也希望自己能对另一个人的一些东西产生共鸣。
Empathy
I have been working as a space designer for decades, and I realized that relationships with people and everything that is done in the relationships with people are important. And I think that the medium that connects everything that is done in relationships is 'empathy'. I had a long talk when I first met with client. We continued to talk many times after deciding to work together, and client shared many stories. At that time, the nature of his job and patients were the main topics of his stories. I felt that he wanted something of his to be emphasized with another person and also himself empathize something of another person.




我们的会面越多,我就越觉得,随着时间的推移,比起强迫、劝说或理解的东西,能在心里感受到的东西,自然会留下更持久的印象。我开始设计,希望这个空间能成为一个让来到东方医学诊所的病人感到平静的地方,能够谈论关于他们的一切。
The more meetings we had, I came to think that as time passes, more than something being forced, persuaded or understood, things that can be felt in the heart and soaks in naturally leaves a longer lasting impression. I started designing hoping for the space to become a place where the patients who come to the oriental medicine clinic feel peaceful and be able to talk about everything about them.


沉浸其中
为了创造这种感觉,在空间里有三个点是可视化的。
首先是空间的简化结构。除了功能结构,我们想把用于装饰的结构拿掉。我们希望 "爱知韩医诊所 "的结构所传递的信息是简洁的,不需要任何华丽的语言。
Soaking in
To create that feeling, there are three points visualized in the space.
The first is the simplified structure of the space. Except for functional structure, we wanted to take out the structures for decoration. We wanted the message given by the structure of the ‘Aeichi Korean Medical Clinic’ to be concise and simple, that did not need any florid language.

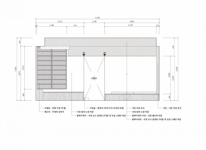
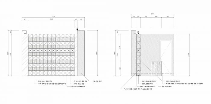
第二是交流的设备。我们用objet来打开空间,让光线浸入,这样通过自然地欢迎外部元素,外部的光线可以渗透到空间中,而不会干扰到生活方式,也可以自然地认识到空间中一天的变化。此外,在不损害功能的前提下,墙体被部分打开,门被最小化。我希望通过开放的部分,可以形成一种超越空间的情感交流或共鸣的纽带(即使不是视觉交流)。而且我认为,广泛地看空间给了一个额外的元素,带来了视觉交流的形象。
And the second is the devices for communication. We used objet to open the space and to let light soak in so that by welcoming the outside elements naturally the outside light can permeate into the space without disturbing the lifestyle and also to naturally recognize the changes of the day in the space. In addition, the walls are partially opened and doors are minimized to the extent that they do not harm the function. I hoped that through the open section, an emotional communication or bond of sympathy (even if it is not visual communication) beyond space could form. And I think that looking at the space widely gave an extra element that brought out an image of visual communication.

最后,我们使用了一种熟悉而温暖的材料,并没有让人感到不适。新的和有趣的材料不断涌现,但我认为熟悉和友好的材料与 "爱知韩国医疗诊所 "的信息相符。
Finally, we used a familiar and warm material that isn’t discomforting to anyone. New and interesting materials continue to emerge, but I thought familiar and friendly material corresponded with the message of ‘Aeichi Korean Medical Clinic’.

尽管这是一个短小而有冲击力的图像零星存在的时代,但即使是现在,不时出现在脑海中的东西或我们记住的东西都是我们熟悉的东西,我们甚至在不知不觉中浸泡在其中。而我希望'爱知韩医馆',因为它让我意识到我作为一个空间设计师的工作已经自然而然地浸透了我,它将成为一个熟悉而持久的空间,自然而然地浸透了许多人。
Even though this is an era when short and impactful images exist sporadically, the things that come across the mind from time to time even now or the things that we remember are the familiar things that we soaked in without even our knowing. And I hope that ‘Aeichi Korean Medical Clinic’, as it made me realize that my job as a space designer has soaked in naturally to me, will become a familiar but long-lasting space that soaks in naturally to many people.




























Architects: By Seog Be Seog
Area : 179 m²
Year : 2018
Photographs :Yongjoon Choi
Manufacturers : Crestial, asang, havebeensoul, jackson chameleon, winkel
Construction Firm : Into I&C
Branding : Taegyu Lim Viscom
City : Yongin
Country : South Korea