AEME是一座位于危地马拉城的建筑。它的一楼有一个开放的平面图,专门用于商业用途和餐馆,二楼结合商业和办公室,三楼专门用于办公室。一楼通过一个双高的入口与街道相连,目的是强调向友好的城市用途开放,目的是让一楼被解释为公共空间的延伸。
AEME is a building located in Guatemala City. It has an open floor plan on the first floor dedicated to commercial use and restaurants, a second floor that combines commerce and offices, and three floors exclusively dedicated to offices. The first floor is connected to the street through a double-height entrance with the purpose of emphasizing the opening towards a friendly urban use, with an aim to allow the first floor to be interpreted as an extension of the public space.




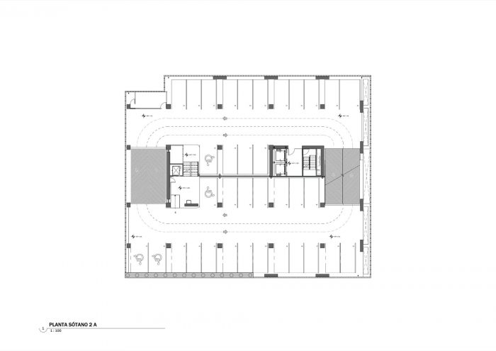
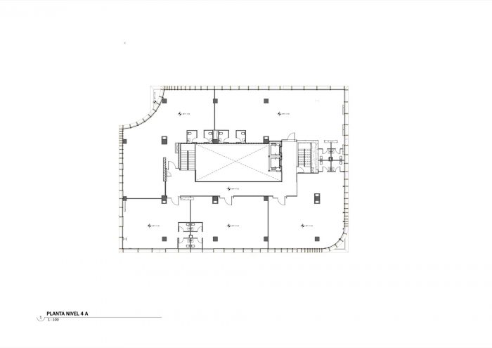
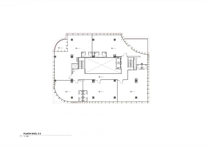
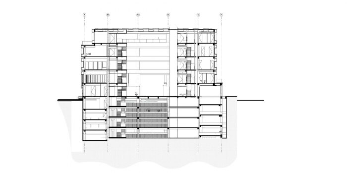
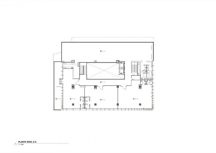
在第五层,有一个供租户使用的露台和四个停车库。其功能围绕着一个中央中庭,为整个建筑提供自然照明。在中庭有两部全景电梯,还有一个由金属和白色大理石组合而成的雕塑支架模块。
On the fifth floor, there is a terrace for tenant use and four parking garages. The functionality revolves around a central atrium that provides natural lighting to the entire building. There are two panoramic elevators in the atrium and a module of sculptural stands built in a combination of metals and white marble.



几位当代视觉艺术家被邀请创作与大楼建筑有直接关系的合作作品。这些艺术家是Luis González Palma, Andrea Monroy Palacios, Angel Poyón, Alejandro Paz, Gabriel Rodríguez, and Darío Escobar。
Several contemporary visual artists were invited to create collaborations with a direct relationship with the architecture of the building. The artists are Luis González Palma, Andrea Monroy Palacios, Angel Poyón, Alejandro Paz, Gabriel Rodríguez, and Darío Escobar.



该建筑试图反映时间流逝的基本概念。其几何形状的严格性与通过元素(木耳)应用的持续运动相混合,这些元素在建筑的不同层面上循环,创造了一个循环的梯度。虽然时间是严谨的,我们正在寻求以一种简单的方式打破外墙的形状,但总是求助于圆形和精确的几何形状。
The building seeks to reflect the basic concepts of the passage of time. The strictness of its geometry mixed with the constant movement applied through elements (mullions) that circulate the different levels of the building create a cyclical gradient. Although time is rigorous and strict, we're seeking to break the shape of the facades in a simple way, yet always resorting to circular and exact geometries.



该建筑试图反映时间流逝的基本概念。其几何形状的严格性与通过元素(木耳)应用的持续运动相混合,这些元素在建筑的不同层面上循环,创造了一个循环的梯度。虽然时间是严谨的,我们正在寻求以一种简单的方式打破外墙的形状,但总是求助于圆形和精确的几何形状。
The color of the building is an almost black shade of gray, aiming for a neutral and persistent color that in turn highlights the soft elements that give life to its facades, wood, and light. The building seeks to emphasize transparency and the use of natural light as a life-giving element.




























Architects: Paz Arquitectura
Area : 10702 m²
Year : 2021
Photographs :Cristobal Palma / Estudio Palma
Manufacturers : Parklex Prodema, Aluver, Coverlam, Hunter Douglas, Neocrete, Tecto
Architectural Design : Paz Arquitectura
A Lead Architects : Alejandro Paz
Structural Design : Sismoconsult – Dr. Hector Monzón Despang
Development And Project Management : URBOP
Electrical Design : Instelectra
Design And Coordination Of Special Installations : CYGNUM
Hydraulic Design : Hidromaq/Plotecnia
Lighting Design : LUCE - MA Lighting Design Arq. Eli Porres
Landscape Design : ENVERDECE – Giulliana Gobbato
City : Ciudad de Guatemala
Country : Guatemala