一个以前的纺织厂被改造成了小房子。我们保留了过去几次装修的痕迹,并为建筑添加了新的一层。
A former textile factory is transformed into tiny house. we keep the traces of the several renovations in the past and we ad a new layer to the building.





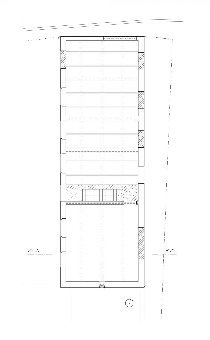
现有的带有可见钢结构的特色混凝土地板被翻新,成为生活空间的饰面地板。
The characteristic existing concrete floor with visible steel structure is renovated and is the finishing floor of the living space.

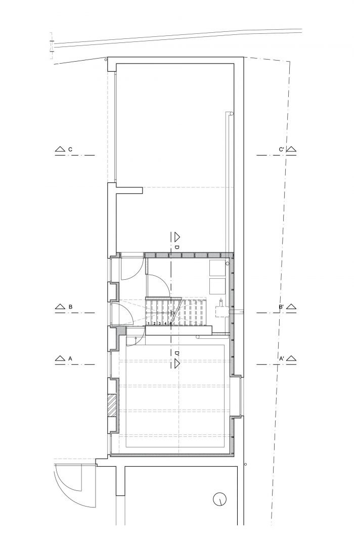
我们保留了现有的木制屋顶结构,其中钢制檩条清晰可见。它们支撑着一个新的工业化的屋顶。我们还隔离了所有的墙壁和地板。现有的窗洞得到了新的窗户。
We kept the existing wooden roof structure with steel purlins visible. They are supporting a new industrial sarking roof. We isolated also all the walls and floors. The existing windowopenings get new windows.

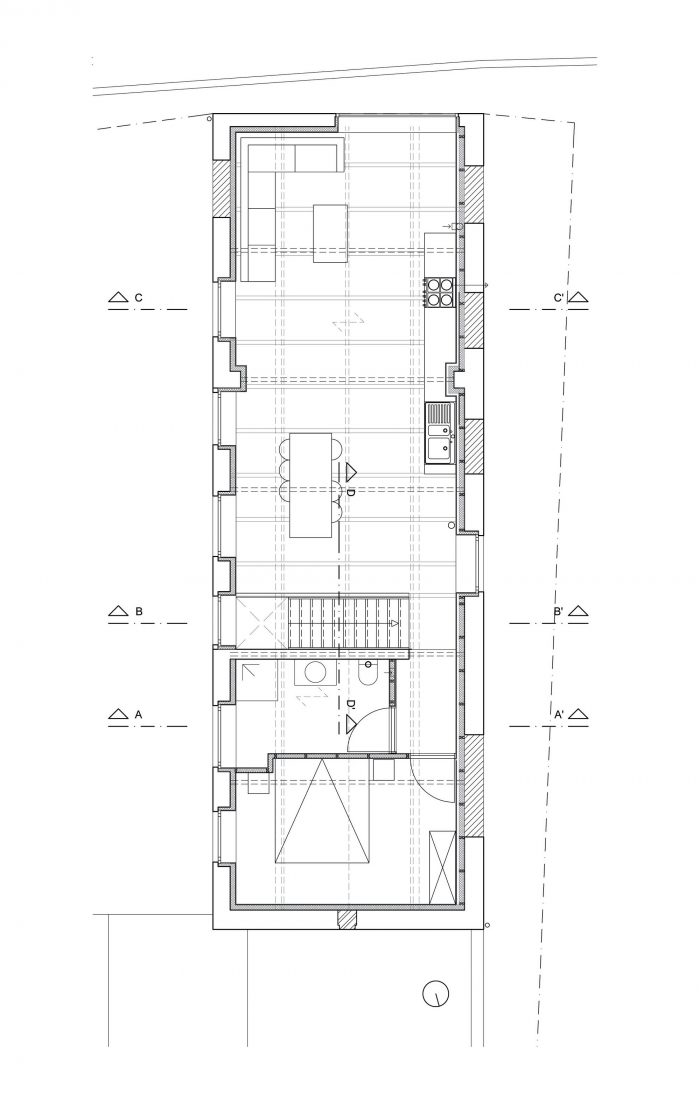
建筑物头部的一个大窗户打开了生活空间,可以看到街道的美景。它带来了与街道的关系,同时又不影响隐私。
A big window on the head of the building opens the living space with a nice view on the street. It brings a relation to the street without compromising the privacy.






























Architects: Atelier Tom Vanhee
Area: 123 m²
Year: 2019
Photographs: Tim Van de Velde
Manufacturers: AutoDesk, Deutsche FOAMGLAS®, Isover, Schluter, Wienerberger, ACV, Cinca floor tiles, Henrad radiator, Oregon, Plywood, Renson invisible ventilation, Unilin Sandwichpanels, VMZINC, Van Beveren aluminium
Engineering:Lime
Collaborators:Heleen Eskens
City:Affligem
Country:Belgium