AG校园的改造是布鲁塞尔市中心的一个雄心勃勃的可持续项目。它引入了光线、空气和空间。在整个改造过程中,我们尽可能地选择可持续的材料,并尽最大努力保留和再利用现有建筑的材料。新扩建部分的屋顶完全作为绿色屋顶实施,并在花园中增加了额外的绿色空间,在布鲁塞尔市中心总共增加了超过1500平方米的绿色空间。
The renovation of the AG Campus is an ambitious and sustainable project in the center of Brussels. It introduces light, air, and space. Throughout the renovation, materials were chosen as sustainably as possible, and maximum effort was made to preserve and reuse materials from the existing building. The roof of the new extension was implemented entirely as a green roof and additional green spaces were added in the garden, adding in total more than 1500m2 of green spaces in the heart of Brussels.



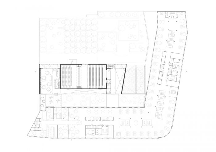
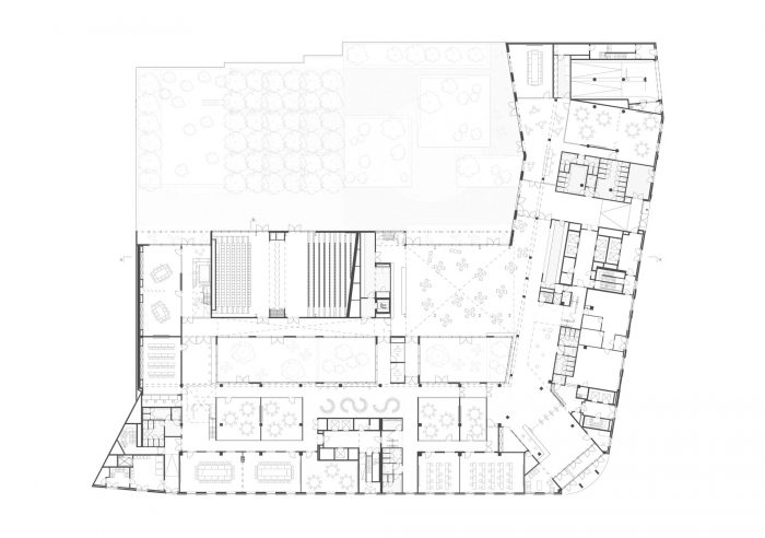
AG校园项目是对位于布鲁塞尔市中心的一座现有建筑的地面层进行改造。该校园是一个会议和学习场所,包括教室、会议室、一个大的休息区、两个大的礼堂等等。为了实现一个有支持的和可持续的项目,从一开始就提出了一个整体的、横向的和综合的方法。
The project AG Campus is a renovation of the ground level of an existing building in the very center of Brussels. The campus is a meeting and learning place and includes classrooms, meeting rooms, a big lounge area, two big auditoria, and much more. To realize a supported and sustainable project, an integral, transversal, and integrated approach was put forward from the beginning.


该项目的主要目标是为使用该建筑的人们引入光线、空间、与自然的联系和舒适性。改造前,底层是一系列独立的、黑暗的房间。任何形式的互动都不存在。新的校园希望开放和交流,以一种开放的心态刺激 "共同生活 "和 "共同工作"。为此,底层被完全重新设计。
The main goal of the project was to introduce light, space, a connection to nature, and comfort for the people who use the building. Before the renovation, the ground floor was a series of separate, dark rooms. Any form of interaction was absent. The new Campus wants to be open and communicative, to stimulate "living together" and "working together", in an open mindful way. To this end, the ground floor was redesigned completely.


在灵活性、日照、与现有的内部和外部区域的关系、太阳增益和空间性方面,对建筑的现有扩展部分进行了重新思考。在现有建筑和扩建部分之间实施了两个宽敞的天井。这种干预不仅提供了大量的日光,而且还创造了景观,并在内部和外部、自然和季节之间组织了一种亲密的、变化的关系。花园也进行了翻新,增加了几个大的绿色空间,以提高生物多样性。除此之外,扩建部分的新屋顶也是绿色的,从而使市中心总共增加了1500平方米的绿色空间。
The existing extension of the building was rethought in terms of flexibility, daylight, the relationship with the existing inner and outer areas, solar gains, and spatiality. Two spacious patios were implemented between the existing building and the extension. This intervention not only provides plenty of daylight but also creates views and organizes an intimate, changing relationship between inside and outside, nature and the seasons. The garden was renovated as well, adding several big green spaces to boost biodiversity. In addition to this, the new roof of the extension is green, resulting in a total of an additional 1500m2 of green spaces in the city center.


该项目还试图在环境方面设定最高水平,采用太阳能电池板作为可再生能源,缓冲或重新使用雨水,并彻底重复使用建筑材料。关于再利用和建筑材料的建议,我们得到了Rotor的帮助。Rotor是一个合作设计机构,研究物质环境的组织。我们认为突出这种项目是至关重要的,这样可以对未来的项目起到激励作用。
The project also tries to set the highest levels in terms of the environment, with solar panels for renewable energy, buffering or re-using rainwater, and thorough re-use of building materials. For advice on reuse and construction materials, we got assistance from Rotor. Rotor is a cooperative design practice that investigates the organization of the material environment. We think it is crucial to highlight this kind of project so that it can act as an incentive for future projects.































Architects: evr-Architecten
Area: 5225 m²
Year: 2022
Photographs:Stijn Bollaert
Manufacturers: Roval Aluminium
Stability Engineer: VK Engineering
Building Company: SOCATRA NV
Project Architect: Manu Heytens
Design Team: Sien Declercq
Landscaping: Denis Dujardin
Techniques: studiebureau IRS
Re Used Materials: Rotor
City: Brussels
Country: Belgium