AGORA是一系列翻新工程的基石,为阿尔福特国家兽医学校(École Nationale Vétérinaire d'Alfort - EnvA)校园提供最先进的教学和研究工具。这个位于Maisonnais地区的标志性培训设施,占地近10公顷,被列入历史遗迹补充登记册,并刚刚庆祝了其250周年。新设施为学校的著名历史翻开了新的篇章。
AGORA is the cornerstone of a series of renovations to provide the National Veterinary School of Alfort (École Nationale Vétérinaire d'Alfort - EnvA) campus with state-of-the-art teaching and research tools. This iconic training facility in the Maisonnais region, covering nearly 10 hectares, is listed in the supplementary register of historical monuments and has just celebrated its 250th anniversary. The new facility opens a new chapter in the school's prestigious history.



AGORA项目建在可追溯到20世纪20年代末的Brion大楼的原址上,占据了场地的中心位置(面积为4500平方米),这不仅是因为其项目,也是因为其位置。作为第一家以门诊形式治疗家畜的医院,Brion建筑的遗产方面被仔细分析,它是1928年艺术装饰建筑的一个杰出例子。现有的入口立面的许多细节都被保留下来,并完美地融入了该建筑以及校园的建筑序列。
Built on the site of the Brion building dating from the late 1920s, the AGORA project (with a surface area of 4,500 m²) occupies a central location on the site, not only because of its program but also because of its location. As the first hospital to treat domestic animals on an outpatient basis, the heritage aspects of the Brion building, a remarkable example of Art-Deco architecture dating from 1928, have been carefully analyzed. Many details of the existing entrance façade have been preserved and fit perfectly into the architectural sequence of the building as well as the campus.


事实上,主入口的三个锻铁大门是一条景观轴线的终点,其第一部分将成为该场地的新入口,更靠近公共交通。由EnvA设想,作为一个将学生、行政人员和教师聚集在一起的统一的建筑,Agora项目被证明是一个传达当前环境价值的机会,如减少碳足迹、重复使用和使用生物来源的材料。
Indeed, the main entrance with its three monumental wrought iron gates is the end of a landscaped axis, the first part of which will form the new entrance to the site, closer to public transport. Imagined by EnvA as a unitary and unifying building that brings together students, administrative staff, and teachers, the Agora project proved to be an opportunity to convey current environmental values, such as reducing the carbon footprint and reusing and the use of bio-sourced materials.


这个 "标志性 "项目为校园树立了一个榜样,因为它是第一个采用生物源结构的建筑。事实上,除了中央的核心部分,该项目将木质结构放在首位,即使是最普通的空间也会有感官上的触动。
This “iconic” project sets an example for the campus, as it is the first building with a bio sourced structure. Indeed, except for the central core, the project gives pride of place to wood construction, penetrating even the most domestic of spaces with sensory touches.


对生态环境的关注也延伸到对布里昂建筑的砖块的再利用,该建筑已被部分拆除,以及对该建筑的北部立面和整个碎石地基的保护。随之而来的新旧砖块之间的对话有助于使Agora建筑与邻近的建筑保持真实和平静的和谐,它从这些建筑中获得了灵感和敬意。
The ecological concerns also extend to the reuse of the bricks of the Brion building, which has been partly dismantled, as well as to the conservation of the northern façades of the building and of the whole of its rubble stone foundations. The ensuing dialogue between old and new bricks helps to engage the Agora building in an authentic and calming harmony with the neighboring buildings from which it draws its inspiration and deference.

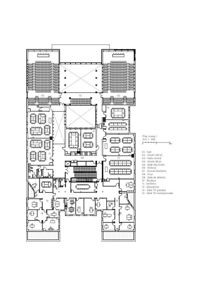
被未来的用户想象成一个 "标志性 "的地方,AGORA将提供三层的住宿:六个教学室,可以通过悬挂的移动墙进行模块化,两个带木质看台的圆形剧场,每个可以容纳250人,合作工作空间,和一个80个座位的圆形剧场,用于培训人体模型(Vet'Sims)的多功能室,学校的所有行政服务,以及地下室的后勤和存储区。
Imagined as an “iconic” place by its future users, the AGORA will provide accommodation on three levels: six teaching rooms that can be modularised by means of suspended mobile walls, two amphitheaters with wooden stands seating 250 people each, collaborative workspaces, and an 80-seat amphitheater for the continuing education of professionals, a multi-purpose room for training on mannequins (Vet'Sims), all of the school's administrative services, as well as a logistical and storage area in the basement.



建筑团队努力升华Agora的(再)生成潜力,提出了在校园范围内相对罕见的表达和欢聚的场所。重点放在凹处和角落的存在,连续性,以及非正式使用空间的视觉出口,产生用户之间的互动。
The architectural team has endeavored to sublimate the (re)generative potential of the Agora by proposing places of expression and conviviality, which are relatively rare on the scale of the campus. Emphasis was placed on the presence of recesses and nooks, continuity, and visual outlets to informal usage spaces generating interactions between users.














Architects: ArtBuild
Area : 4550 m²
Year : 2022
Photographs :©Tristan Dechamps, ©ArtBuild
Manufacturers : RHEINZINK, Wienerberger, MC FRANCE, Piveteau bois
Lead Architects : Kevin Guidoux
General Contractor : Créatis (Spie Batignolles)
HVAC : CET Ingénierie
Acoustics Engineer : ITAC Acoustique
Design : Alexandra Carpiuc
City : Maisons-Alfort
Country : France