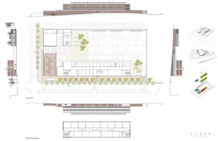
新的研究所位于Aimerigues区住宅区边缘的一块地皮上,位于未来城市发展的门槛上,也是受Icaria街道限制的重要公园区域。该项目由地块内建筑体量的位置决定:一个紧凑的体量与巴勃罗-伊格莱西亚斯大街对齐,一个较小的体量包含健身房,并通过公共空间和门廊定义访问。所提出的类型模型是一个紧凑的性质,有一个明亮和慷慨的中央走廊,两侧有教室。一个经济、紧凑、灵活、高效的体量。
The new Institute is located on a plot at the edge of the housing area of the Aimerigues sector, on the threshold of future city growth and an area of parks of important dimensions limited by the street Icaria. The implementation is defined by the location of the building's volumes within the plot: a compact volume aligned on the street Pablo Iglesias and a smaller volume that contains the gymnasium and that defines the access through a public space and the porch. The typological model proposed is of a compact nature with a bright and generous central corridor, with classrooms on both sides. An economical, compact, flexible and efficient volume.





经济性,因为它的结构简单,并且根据项目的需要建造了平方米。紧凑,因为它占用的面积较少,并通过一致的休闲活动措施释放出室外空间,没有剩余空间,便于控制外部空间,并允许轻松扩展。灵活,教育空间的项目具有重要的可变性,中心的运营需要极大的灵活性,以适应不同时期的不同用途。独立性,体育馆、图书馆、家长教师会和室外厕所的独立通道得到保证,无需进入中心。
Economical, for its constructive simplicity and the square meters built in relation to the requested needs of the program. Compact, as it occupies less territory and frees up outdoor space with consistent measures for leisure activities, without residual spaces, facilitating the control of exterior space and allowing easy expansion. Flexible, the programs of the educative spaces have an important mutability and the operation of the centre requires great flexibility to accommodate different uses over time. Independent access is guaranteed for the gym, the library, the parent-teacher association, and the outside toilets, without having to enter the centre.

高效,其紧凑的结构有助于最大限度地减少能源损失。最佳循环和干式结构是被动系统,有助于减少建筑的碳足迹。减少生态足迹:使用无污染、耐用、易回收的材料;在项目和施工过程中使用可再生能源、控制系统、废物管理和使用BIM技术。教室被安排在与巴勃罗-伊格莱西亚斯街道对齐的体量中,在不产生剩余空间的情况下,正式确定了中心的一个限制。体育馆面向Icaria街道,伴随着入口,有一个带有树木的空间,将作为自行车停车场。
Efficient, its compactness helps to minimize energy losses. Optimum circulation and dry construction are passive systems that help reduce the building's carbon footprint. Reduction of the ecological footprint: use of non-polluting, durable and easily recyclable materials; use of renewable energy, control systems, waste management and use of BIM technology in the project and construction processes. The classrooms are arranged in the volume aligned to the street Pablo Iglesias, formalizing one of the limits of the centre without generating residual spaces. The gym is arranged facing the street Icaria, accompanying the access, with a space with trees that will serve for bicycle parking.

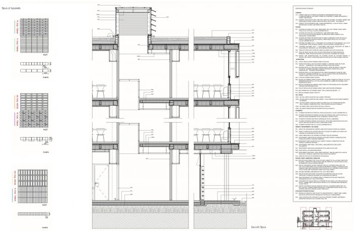
在两个体量之间形成了一个朝南的门廊,通过这个门廊可以进入学院和体育馆。在材料方面,外立面使用陶瓷与各种类型的索具来产生不同的质感,参考了城市的工业建筑传统。其余的闭合物由玻璃、蜂窝聚碳酸酯制成,并在底层的一些区域用松木覆盖。防晒是基于可调节的陶瓷板条来实现的,它避免了直接辐射,但允许漫射光进入。它的高度可以调整,以避免阳光直射,但允许外部景观的可见性。
Between the two volumes a south-facing porch is generated, through which the institute and the gym are accessed. As for the materials, the use of ceramics on the facade with various types of rigging is used to generate different textures, making reference to the city's industrial architecture tradition. The rest of the closures are made of glass, cellular polycarbonate and covered with pine in some areas of the ground floor. Sun protection is realized based on adjustable ceramic slats that avoid direct radiation but allow diffused light to enter. Its height is adjusted to avoid direct sun but allowing the visibility of exterior views.





建筑师:Barceló Balanzó Arquitectes, Xavier Gracia
面积:4421 m²
年份:2018年
摄影师:SimónGarcía
主设计师:Antoni Barceló, Bàrbara Balanzó, Xavier Gracia
方向:Barceló Balanzó Arquitectes, Xavier Gracia
合作建筑师:Ivan Ivanov, Jairo Fernández, Aitor Martínez, Miquel Masons
技术架构师:G9 arquitectura i gestió SLP, Xavier Humet
结构:Bernuz Fernandez Arquitectes SLP
安装:PGI Engineering
建设:UTE COPCISA、VIAS
发起人:GENERALITAT DE CATALUNYA
城市 : Terrassa
国家:西班牙
Architects: Barceló Balanzó Arquitectes, Xavier Gracia
Area: 4421 m²
Year: 2018
Photographs:SimónGarcía
Lead Architect: Antoni Barceló, Bàrbara Balanzó, Xavier Gracia
Direction:Barceló Balanzó Arquitectes, Xavier Gracia
Collaborating Architects:Ivan Ivanov, Jairo Fernández, Aitor Martínez, Miquel Masons
Technical Architect:G9 arquitectura i gestió SLP, Xavier Humet
Structure:Bernuz Fernandez Arquitectes SLP
Installations:PGI Engineering
Construction:UTE COPCISA, VIAS
Promoter:GENERALITAT DE CATALUNYA
City:Terrassa
Country:Spain