AJO,在孟加拉语中常被用来形容一些旧的、被遗弃的或与时代无关的东西。这个词是由餐厅的创始人和创意者Khaled Mahmud使用的,因为他的想法是将一个剩余的空间改造成一个独特的咖啡馆,靠近一个艺术画廊。这是一个非常受欢迎的聚会空间,包括艺术家、思想家和设计师。它作为一个平台,任何人都可以在这里与艺术家和知识分子见面和交谈。
AJO, in Bangla is often used to describe something old, left out or irrelevant to its time. The word was used by the restaurant’s Founder and ideator Khaled Mahmud, as the idea was to convert a left over space and turn it into a unique cafe near an art gallery. It was a very popular hangout space among people including artist, thinkers and designers. It acted as a platform where any one could meet and talk with artists and intellects.





但由于该项目在2015年初因物业租约到期而关闭,很难找到类似的环境。后面连接着一个美丽的公园,他们终于在达卡北端Uttara的一条小住宅街旁找到了一块234平方米的空地。除了做咖啡馆和餐厅,Ajo's Owner还想打造一个东方的地方,让人们能感受到联系,并在潜意识中立刻找到对这个空间的依恋。WABI SABI",即日本的 "欣赏不完美的艺术 "一词,经过不断的讨论,产生了新Ajo的精髓。
But as the project was shut down in early 2015 due to property lease expiration, it was difficult to find a similar setting. With a beautiful park connected at its back, they finally found an empty plot of 234sq.m beside a small residential street at Uttara, the northern end of Dhaka. Apart from being a Cafe and restaurant, Ajo’s Owner wanted to create an Eastern place, where people could feel connected and instantly find an attachment to the space subconsciously. ‘WABI SABI’, the Japanese term for art of appreciating imperfection was constantly discussed to generate the essence of the new Ajo.

我们面临的挑战是要找出以前餐厅的记忆,以及如何在一个完全不同的环境中重新创造它。最终的结构被设计成了一个亭子,类似于这个地区的传统特色,在你的头顶上有一个屋顶,投下阴影,同时风景和风流过。有了必要的设施,唯一控制的体积是厨房。
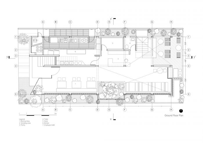
The challenge was to find out what constituted the memory of the previous restaurant and how it could be recreated in a completely different context. The final Structure has been designed as a pavilion, which resembles traditional character of this region; to have a roof over your head casting shadow while the landscape and wind flows through. With necessary amenities, the only controlled volume was the kitchen.


餐饮区被放置在它的顶部和两侧的地面上。这整个布置被一个预制的金属拱顶所覆盖,使空气和光线自由流动。在拱顶上开辟了一个空隙,以便在用餐区内放置一棵大树。设计了一个打孔的金属屏风,既能采光和通风,又能打破大雨的影响。从公园的一端,一个带有固定玻璃板的框架被放置在三英尺深的地方,与拱顶的轮廓保持间隙。
The dining areas have been placed on top of it and on both sides at ground level. This whole arrangement has been covered with a prefabricated metal vault which allowed free movement of air and light. A void was cut open in the vault to place a large tree inside the dining area. A perforated metal screen has been devised that allows light and air but breaks the heavy rain. From the park‘s end, a frame with fixed glass panel has been placed three feet deep keeping gap with the vaults profile.

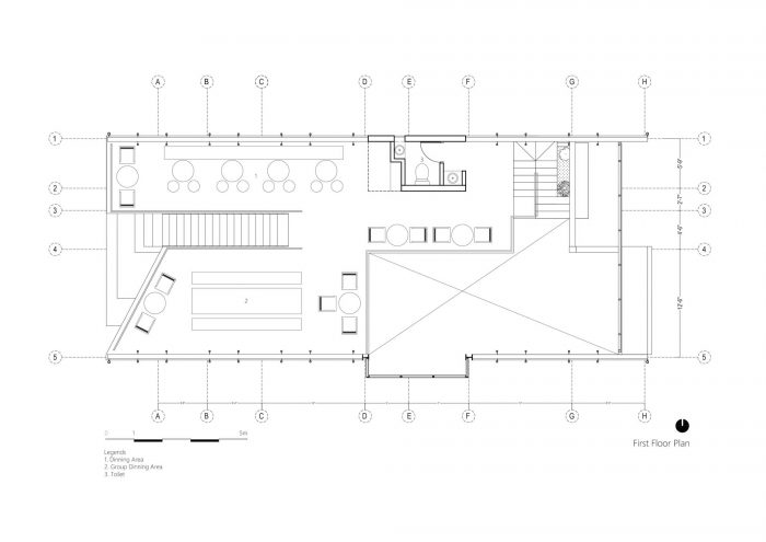
这样既能保证空气泄漏,方便通风,又能保护阁楼不被雨淋。室内的细节做得很宽松,用适度的家具,让人们在新的空间里感到放松。顶层的开放主要是为了鼓励社区成人/儿童每周聚集在一起,讨论当代话题和文化伦理。餐厅作为一个创造性的聚会空间,人们在这里用餐、放松和谈论他们的想法。受这些活动的启发,这个新的场所被命名为 "Ajo Idea space"。
This allows air leakage and easy ventilation but protects the loft from driving rain. The details in the interior were done in a very loose manner with modest furniture, to make people feel relaxed around the new space. The top floor has been kept open largely to encourage weekly gathering of community adults/ children for discussion on contemporary topics and cultural ethics. The restaurant works as a creative gathering space where people come to dine, relax and talk about their Ideas. Inspired by the events, this new premise has been named as ‘Ajo Idea space‘.























建筑师:Dehsar Works
占地面积 : 300 m²
年份:2017年
摄影:Noufel Sharif Sojol
制造商:AutoDesk, Saint-Gobain, ALM Steel, Nasir Glass, ONLEAD, PMG, Rhino, Shah Cement, Star Partex, Trimble Navigation
主建筑师:Rashed Hassan Chowdhury
项目建筑师:Sayedil Ashrafin, Emon Mahbub
结构设计师:Shamsul Alam, Asaduzzaman, Mamunur Rashid
电气工程师:Afzal Ahmed
机械工程师:Kamruzzama
客户:Khaled Mahmud
建筑师:Dehsar Works
施工单位:ALM Steel Building Technology Limited, Mir Akter Real Estate
景观设计师 In house
城市 : 达卡
国家:孟加拉国
Architects: Dehsar Works
Area: 300 m²
Year: 2017
Photographs: Noufel Sharif Sojol
Manufacturers: AutoDesk, Saint-Gobain, ALM Steel, Nasir Glass, ONLEAD, PMG, Rhino, Shah Cement, Star Partex, Trimble Navigation
Principle Architect:Rashed Hassan Chowdhury
Project Architects:Sayedil Ashrafin, Emon Mahbub
Structural Designers:Shamsul Alam, Asaduzzaman, Mamunur Rashid
Electrical Engineer:Afzal Ahmed
Mechanical Engineer:Kamruzzama
Client:Khaled Mahmud
Architects:Dehsar Works
Construction:ALM Steel Building Technology Limited, Mir Akter Real Estate
Landscape Architect:In house
City:Dhaka
Country:Bangladesh