Ajuala是解释客户对他所做的事情的热情的结果;这个项目,它的材料和概念,是在与大厨Saverio Stassi的第一次会面和谈话中定义和产生的,它的每一道菜的热情和故事,是感染我们转移到这个项目的建筑中的东西。因此,从一开始我们就明白,我们的项目必须讲述一个故事,它的每一种材料都有一个强烈的意图或背后的故事,并以此传递一种不同的感觉或经验,实现一个项目的建筑,在这个当地的美食市场是相当标准化的。
Ajuala is the result of interpreting a customer's passion for what he does; this project, its materiality, and concept, is defined and arises from the first meetings and conversations with Chef Saverio Stassi, the passion and stories that each of its dishes have, was something that infected us to transfer in the Architecture of this project. So, from the beginning we understood that our project had to tell a story, that each of its materials has a strong intention or stories behind it and with this transmit a different feeling or experience, achieve a project that came out of an architecture that is quite standardized in this local market of gastronomy.



也许我们最喜欢这个项目,是一些难以被公众捕捉到的东西,它是必须完成的创造性的改造过程,了解到它以前是一个住宅,变化必须是最小的,但激烈的,以设法重新使用这个建筑,并在它身上产生一个新的用途,这不是设计的。
Probably what we like most about this project, is something difficult to capture by the general public and it is the creative process of adaptation that had to be done, understanding that previously it was a residential house and the changes had to be minimal but drastic to manage to reuse this building and generate in it a new use for which it was not designed.



我们的概念从一开始就确定了,我们的建筑项目要与大厨的烹饪概念相配合,我们的材料主要是当地的产品,当地的劳动力,并以创造性的、不同的方式使用它们;这个概念是最重要的一点,要通过创造性的设计和当地材料来突出。
The concept was defined from the beginning, our architectural project was to be a synergy with the Culinary concept of the Chef, our materials mostly had to be local products, local labor and use them in a creative, different way; this concept was the most important point to highlight, highlight through creative design, local materials.



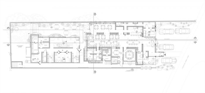
入口处有一个高度很大的门廊,这使它具有层次感和力量,并确定了餐厅入口处3.00米高的主门。内衬是陈旧的钢托拉,寻找大自然对像钢这样的材料施加的最终效果。一旦进入餐厅,就会产生一个接待空间,其背景是一个采用日本古老技术的烹饪空间,包括在热炭火上烹饪。
The entrance is framed by a portico of generous height, which gives it hierarchy, strength and defines the main door 3.00 meters high at the entrance of the restaurant. Lined in aged steel tola, looking for the final effect that nature exerts on material as resistant as steel. Once inside the restaurant, a reception space is generated, which has in the background a cooking space with an ancient Japanese technique that consists of cooking on hot charcoal embers.


接待处一过,我们就有一个可容纳5人的酒吧区。在酒吧的前面,我们产生了一个补充区域。一张可容纳10人的高桌,作为酒吧和用餐区的中间点的混合体发挥作用。
Once the reception is passed, we have a bar area with a capacity for 5 people. In front of the bar, we generate a complementary area. A high table with a capacity for 10 people, which works as a hybrid between the midpoint of the bar and diner area.

卡瓦酒区被保留在通往酒吧的前面。设计意图是产生酒瓶的容器,其灵感来自多米尼加共和国长期使用的羽毛块。用当地的劳动力制造它们,因为它是一种吸收环境温度的材料,有助于保持葡萄酒的理想点。就餐区产生了一个36个人的空间。随着直板家具和椅子的整合。
The cava area is left with its front access to the bar. The design intention was to generate containers of wine bottles inspired by the long-used feathered blocks in the Dominican Republic. Manufacture them with local labor and as it is a material that absorbs the temperature of the environment and helps keep the wines to their ideal point. The diner area generates a space for 36 personal. With the integration of straight furniture and chairs.












Architects: Grupo HCR, Portafoglio Grupo Arquitectónico
Area: 497 m²
Year: 2019
Photographs: Onnis Luque, Harold Lambertus
Manufacturers: AutoDesk, Neolith, Artisan, Calligaris Santo Domingo, Holz, La casa del acero, Luminatti, Marmotech, Pavimenta, Robert McNeel & Associates, Roche Bobois Santo Domingo
Lead Architect: Guillermo Rodriguez, Higinio Llames, Gabriel Gomez, Dis. Sandra Rivas
Design Team:Leticia Hernandez, Lissamel Ramon
Clients:Saverio Stassi
Engineering:Vianca Matos, Tirso Hernandez, Stalin Acosta
Landscape:Jose Then
City:Santo Domingo
Country:Dominican Republic