Al Faya旅馆位于Alvaah山脚下,坐落在阿联酋的史前深红色沙漠景观中,靠近阿联酋的第一个石油泵。Al Faya Lodge是Sharjah Collection的一个新成员--一组独特的精品酒店和生态度假酒店,有目的地位于Sharjah酋长国的关键位置。
Set at the foot of Mount Alvaah, the Al Faya Lodge is nestled into the UAE’s prehistoric crimson desert landscape with close proximity to the UAE’s first petroleum pump. The Al Faya Lodge is a new addition to the Sharjah Collection - a group of distinctive boutique hotels and eco-retreats purposefully located in key locations throughout the Sharjah Emirate.



Al Faya旅馆的建筑和设计由建筑师Jonathan Ashmore和他在迪拜和伦敦的事务所ANARCHITECT负责,这对其提供的体验至关重要。两座60年代的单层石砌建筑,以前被用作诊所和杂货店,现在被重新设计成一个现代的精品旅馆和餐厅。
The architecture and design of the Al Faya Lodge, by architect Jonathan Ashmore and his Dubai and London-based practice ANARCHITECT are paramount to the experience it provides. Two single-story, stone-built buildings from the 1960s, previously occupied as a clinic and grocery store, have been re-imagined into a contemporary boutique lodge and restaurant.

建筑和内部干预措施特意与现有建筑的原始结构形成对比。CorTen钢强调了新的附加层,这些附加层的引入是为了重新利用和扩展空间以适应一系列新的方案。
The architecture and interior interventions purposely contrast the original fabric of the existing buildings. CorTen steel emphasizes the new additional layers that have been introduced to repurpose and extend the spaces to accommodate a new series of programmes.


在这样做的时候,ANARCHITECT不经意地将注意力吸引到了原有的建筑上,创造了明确的门槛和新旧之间的并置。
In doing so, ANARCHITECT has inadvertently drawn focus to the original buildings, creating clearly defined thresholds and the juxtaposition between that what is old and what is new.

乔纳森-阿什莫尔,实践负责人,评论说。"沙漠环境在夏季会出现极端炎热的天气,阳光照射时间长,因此,在设计建筑的形式和体量时,首先要考虑这些因素,其次要选择合适的、坚固的材料,这一点很重要。
Jonathan Ashmore, practice Principal, comments: “Desert conditions present extreme heat in summer with intense and prolonged sun exposure so it is important to consider these factors when first designing the form and mass of the building and secondly the selection of suitable and robust materials which go hand in hand.

沙漠地区也暴露在各种因素中,如暴雨、沙尘暴和夜间的低温。当地的石头或混凝土建筑提供了沉重的热质量,以应对极端的温度波动。
Desert sites are also exposed to elements such as driving rain, sand storms and low-temperatures at night. Locally sourced stone or concrete construction provide heavy thermal mass to deal with the extreme temperature fluctuations.

科腾钢等表面材料和坚固的硬木和铝等次要结构材料为设计增添了精致和精确性,特别是对于过帆屋顶、遮阳元素和高于沙地水平的露台。
Surface materials like Corten steel and secondary structure materials like robust hardwoods and aluminum add refinement and precision to the design particularly for over-sailing roofs, shading elements and terrace decks raised above the level of the sands.”

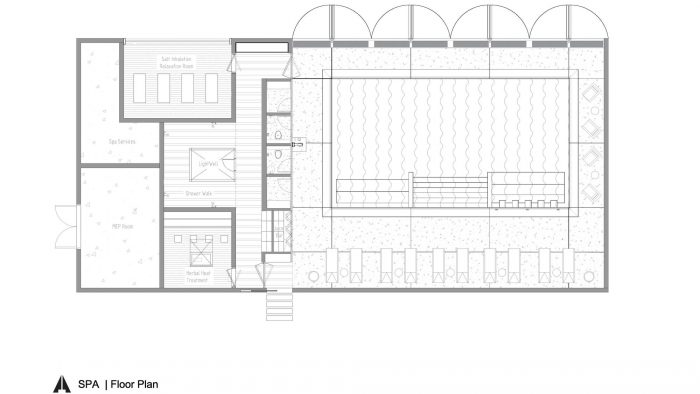
山庄由餐厅、接待室、图书馆和屋顶露台组成。在五间卧室的小屋中,每个房间都有一个用于观星的特色天窗,豪华的房间还有一个私人屋顶露台和双视角的体验。专门建造的温泉建筑内有一个露天盐水游泳池和三种盐浴体验:热、水和盐吸入。
The Lodge comprises of a dining, reception room, library & roof terrace. Within each room of the five-bedroom lodge is a feature skylight for star-gazing, the luxe room has the added experience of a private roof terrace and dual aspect. The purpose-built spa building houses an open-air saltwater pool and three salt spa experiences; heat, water and salt inhalation.

餐厅和游客接待处位于酒店的另一侧,包括一个餐厅、户外露台、火盆和一个公共屋顶露台。
The restaurant and visitors’ reception are located on the other side of the property and comprise a dining room, outdoor terrace, fire-pit and a public roof terrace.

Al Faya Lodge为ANARCHITECT提供了一个独一无二的令人兴奋的挑战,因为他们对场地反应项目的热情以及对细节和材料的亲和力。材料的选择是有背景的,不仅与严酷、干旱的沙漠气候有关,而且与铁器在该地区的历史存在有关。
Al Faya Lodge offered a one-of-a-kind and exciting challenge for ANARCHITECT with their passion for site-responsive projects and affinity to detail and materiality. The choice of material is contextual and relevant not only to the harsh, arid, desert climate but also to the historical presence of the iron in the region.

山庄、温泉和餐厅的建筑被一条道路分割开来,这为度假区的总体规划创造了一个不寻常的、动态的城市形象。这些建筑与历史上的石油泵一起,在稀缺的沙漠景观中形成了一种存在感,并将成为那些知道和发现这种新干预措施的人的目的地和停靠点。
The Lodge, Spa and Restaurant buildings are divided by a through-road which creates an unusual and dynamic urbanity to the master plan of the retreat. The buildings together with the historical petroleum pump command a presence to the road in the scarce desert landscape and will become both a destination and stop-off for those who know and for those who then discover this new intervention.

































Architects: ANARCHITECT
Area : 500 m²
Year : 2019
Photographs :Fernando Guerra
Manufacturers : AutoDesk, Parklex International S.L., Corten, Delta Light, Kohler, Roda, ANARCHITECT, Auodesk, Manital, Trimble
Lead Architects : ANARCHITECT
Landscape : DesertINK
Design Team : ANARCHITECT
Clients : SHUROOQ (Sharjah Investment and Development Authority)
Furniture Procurement : H&H
Spa Consultant : The Wellness
Contractor : Alba Tower, Obaid Al Abdi
Joinery Contractor : Thomas & McQuaid
City : Sharjah
Country : United Arab Emirates