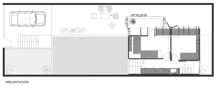
在布宜诺斯艾利斯市的一个低密度社区,我们接到了一个扩建独栋别墅的订单。该项目源于一个家庭的需求,他们住在上世纪初的房子里,不想失去其精神。
In a low-density neighborhood of the City of Buenos Aires, we received an order to expand a single-family home. The project was born out of the need for a family that lives in a house from the beginning of the last century, and that does not want to lose its spirit.




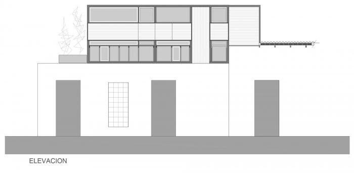
因此,我们利用旧的优势,将新的东西联系起来。一个作品的出现,开始回应新的性格需求和当前的材料逻辑。轻型结构的选择是为了不使现有的东西处于危险之中。而这一点,暴露出来,与配置空间特征的围墙的木质平面一起显示出来。
So we take advantage of the old and relate the new. A piece appears that begins to respond to the new needs of character and current material logic. The light structure is the one chosen so as not to put the existing thing at risk. And this, exposed, is shown together with the wooden planes of the enclosures that configure the character of the space.




在内部,多层次的木材解决了所有的设备,并给予温暖。南墙是一个六十厘米厚的木质结构,包含了存储空间,作为热风箱。在一端,这个作品的存储壁龛来连接双层高度,并与也是一个图书馆的楼梯对话。
Inside, the multi-laminated wood solves all the equipment and gives warmth. The south wall is a sixty-centimeter thick wooden massif that contains the storage space, acting as thermal bellows. At one end, the storage niches of this piece come to link the double-height and to dialogue with the staircase that is also a library.

与使用有关的细节的想法在项目阶段变得相关,并在经验中得到证明。节约标志着与不同系统的功能和机制有关的一定程度的思考。每个动作都是为了优化资源有限的主要使用。新的东西寄托在旧的东西上,赋予整体以时间的意义。
The idea of detail in relation to use becomes relevant in the project phase and is evidenced in experience. Austerity marks a degree of thought in relation to the function and mechanisms of the different systems. Each of the movements was designed to optimize the resource-limited mainly to use. The new rest on the old, endowing the whole with a temporal sense.



















Architects: Barrionuevo Villanueva Arquitectos
Area : 60 m²
Year : 2021
Photographs :Gonzalo Viramonte
Lead Architect : Nicolás Barrionuevo, Juan Villanueva
Clients : Yanina, Jano, Lola, Mia
Engineering : Andrés Moscatelli
City : Buenos Aires
Country : Argentina