艾伯特工程创造了一个总部办公室,以同情的态度建立在谢菲尔德的工业遗产之上。该项目包括对四个废弃的红砖仓库进行改造,并整合一个新的中央开放式填充物,为品牌和营销机构Jaywing创造约1600平方米的灵活工作空间。
Albert Works creates a headquarter office that sympathetically builds on Sheffield’s industrial heritage. The project involved the conversion of four disused red-brick warehouses with the integration of a new central open plan infill to create approximately 1,600sqm of flexible workspace for brand and marketing agency, Jaywing.




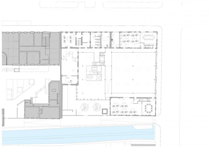
Jaywing的任务包括为一个大型设计工作室和会计、数据分析师和管理团队提供工作空间。Albert Works在一个单一的工作室环境中有效地连接了这些动态的工作小组,并为未来的灵活性和扩展留有余地。
Jaywing’s brief included workspace to accommodate a large design studio and spaces for teams of accountants, data analysts and management. Albert Works efficiently connects these dynamic working groups within a single studio environment with allowance for future flexibility and expansion.



现有建筑的原始特征已经使用传统行业和材料进行了敏感的恢复。新的外露钢结构框架的形式创造了三个托架,与现有建筑拉开距离,创造了一个综合的周边人行道和服务区。在外部,新的建筑元素通过使用青铜色的铝制覆层来表达。这以一种非塑料的方式明确区分了新与旧,而金属包层也为现场和更广泛的谢菲尔德市内的金属制造的工业遗产提供了一个点头。
The original character of the existing buildings has been sensitively restored using traditional trades and materials. The form of the new exposed steel infill frame creates three bays that are pulled away from the existing buildings to create an integrated perimeter walkway and service zone. Externally, the new build elements are expressed with the use of bronze-finished aluminium cladding. This clearly differentiates the new from the old in a non-pastiche manner, with the metal cladding also providing a nod to the industrial heritage of metal fabrication within the immediate site and wider city of Sheffield.



艾伯特工程的愿景不是拆除谢菲尔德的工业遗产,而是庆祝其历史,并敏感地将新的生命注入当地。这一点通过经常在该空间举办的活动积极实现,为谢菲尔德市中心这个曾经多余的部分带来经济活力。该建筑在2018年AJ建筑奖中被评为年度最佳工作场所,并赢得了国家RIBA和BCO奖。
Rather than demolish a piece of Sheffield’s industrial heritage, the vision for Albert Works was to celebrate its history and sensitively breathe new life into the local area. This is actively achieved through events that are often hosted in the space, bringing economic vibrancy into this once redundant part of Sheffield’s City Centre. The building was named Workplace of the Year at the 2018 AJ Architecture Awards and has won national RIBA and BCO Awards.


艾伯特工程位于该市再生的文化产业区,该区还包括位于Sellers Wheel、Alsop Fields和Gatecrasher的Cartwright Pickard获奖方案。所有这三个项目都是通过翻新和重新利用现有的废弃建筑来庆祝该地区的工业遗产。
Albert Works sits in the regenerated Cultural Industry Quarter of the city, which also includes award-winning Cartwright Pickard schemes at Sellers Wheel, Alsop Fields and Gatecrasher. All three schemes also celebrate the area’s industrial heritage by refurbishing and repurposing existing disused buildings.






Architects : Cartwright Pickard Architects
Area : 2025 m²
Year : 2018
Photographs :Tom Kahler
Lead Architects : Peter Cartwright, Ian Walsh
Planning Consultants : DLP
Sustainability Consultants : Ensphere
Structural Engineer : DP Squared
Landscape Architects : DEP Lanscape Architecture
Fire Consultant : Arup
City : Sheffield
Country : United Kingdom