急救站将阿尔伯拉雅的急救服务(警察、民事保护和救护车服务)集中在一栋大楼里。这个地方有些隐蔽,位于一个工业园区--Polígono de la Mar--靠近城市环路的物业墙之间。因此,该提案的目的是使该装置更加明显,同时创造一个小的公共空间,为其提供身份、善良、"地方"。在此基础上,我们配置了一个具有工业美学的功能性建筑。
The Emergency Station houses in a single building the Alboraya Emergency services (Police, Civil Protection and Ambulance service). The site is somewhat hidden, located between property walls of an industrial park – Polígono de la Mar - close to the city ring road. The proposal aims, therefore, to make the installation more visible while creating a small public space that provides it with identity, kindness, a “place”. On this basis, we configured a functional building with industrial aesthetics.



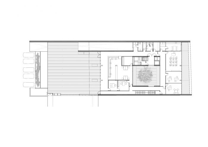
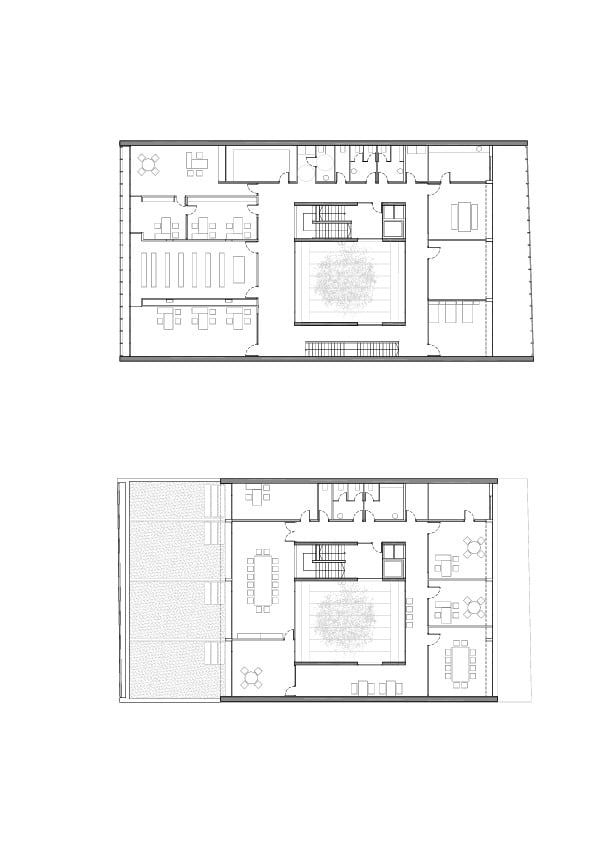
巨大的悬臂体积标志着从入口广场的主要通道。在底层,大型玻璃表面邀请用户进入接待区。该建筑围绕着一个10 x 7米的内部庭院结构,为不同的空间提供光线和通风。楼梯间和湿区位于两侧,从而解放了其余的楼层平面,并允许使用屏幕进行灵活分配。
The large cantilevered volume marks the main access from the entrance square. On the ground floor the large glazed surface invites the user in to the reception area. The building is structured around an interior courtyard of 10 x 7 m which provides light and ventilation to the different spaces. The stairwell and wet areas are located to the sides, thus liberating the rest of the floor plan and allowing a flexible distribution with the use of screens.


公共尺度是通过双立面来解决的。大面积的玻璃窗受到穿孔钢板的保护,可以从里面看到外面的景色,同时提供阳光保护和良好的外部隐私。这种立面在夜间将建筑变成一个巨大的灯笼。朝南的后立面也由两层组成,但在这种情况下,分离得足以在立面本身和保护层之间形成一个天井。
The public scale is solved via the double façade. The large glazed windows are protected by a perforated steel sheet that enables the views from the inside out, while providing sun protection and a good degree of privacy from the exterior. This kind of façade turns the building into a giant lantern at night. The back façade, facing south, consists also of two layers, but in this case separated enough to form a patio between the façade itself, and the protection skin.














Architects: OMBRA Arquitectos
Area : 2200 m²
Year : 2008
Construction Company : Secopsa Construcción S.A.
Architects In Charge : Pablo Peñín Llobell, Diego Carratalá Collado, Francisco Miravete Martín, Carmen Mellado Vera
Property : EGUSA.S.L.
Budget : 2.580.863,00 €
City : Alboraya
Country : Spain