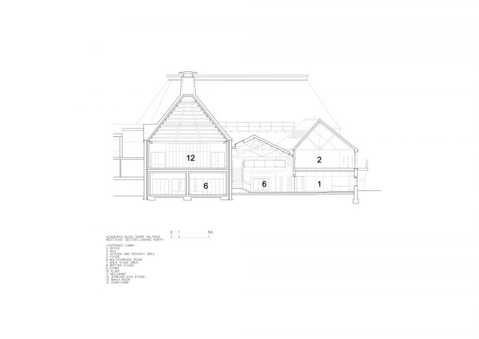
Aldeburgh Music位于Snape Maltings的新创意园区于5月9日向公众开放。该项目是位于萨福克沼泽地边缘的19世纪2级麦芽园建筑的分期开发项目的一部分,将一系列废弃的粮仓和窑洞作为排练和偶尔的公共表演空间,围绕着一个公共门厅进行。该项目的核心是一个新建的管弦乐排练室--布里顿工作室,其设计是为了补充附近的音乐厅(由Arup Associates设计,1970年完工)。排练室设有可伸缩的350个座位,可作为公共场所使用。 第二个空间,杰伍德窑工作室,是由一个废弃的窑炉改造而成的,也可以在需要的时候进行公开演出。 中央门厅和技术通道是由一个夹在旧结构之间的现有粮仓形成的,其古怪的木质屋顶经过改造,并安装了一个新的混凝土夹层。
Aldeburgh Music's new creative campus at Snape Maltings opened to the public on May 9th. The project, part of a phased development of grade 2 listed 19th century maltings buildings at the edge of the Suffolk marshes, brings a range of derelict granaries and kilns into use as rehearsal and occasional public performance spaces grouped around a communal foyer. The centrepiece of the project is a new build orchestral rehearsal room, the Britten Studio, designed to complement the nearby concert hall (by Arup Associates, completed in 1970). The rehearsal room incorporates retractable seating for 350, enabling it to be used as a public venue. A second space, the Jerwood Kiln Studio, was converted from a derelict kiln and can also accommodate public performances when required. The central foyer and technical get in was formed from an existing granary sandwiched between older structures, its eccentric timber roof adapted and a new concrete mezzanine installed.



该项目建立在Haworth Tompkins过去在现有建筑中的表演空间的基础上,如伦敦皇家宫廷剧院和青年维克剧院(2007年RIBA斯特林奖亚军)的重建工作。该项目要求提供灵活而有创意的工作空间,类似于伦敦国家剧院工作室,在那里,Haworth Tompkins为戏剧从业者提供排练、居住和研究场所。
The project builds on Haworth Tompkins' past work with performance space in existing buildings such as the redevelopment of London's Royal Court theatre and the Young Vic (runner up for the 2007 RIBA Stirling Prize). The brief, for flexible and creative workspace, was similar to the National Theatre Studio in London, where Haworth Tompkins provided rehearsal, residency and research accommodation for theatre practitioners.

音乐家们被Snape Maltings独特的地方感所吸引,这是严谨的工业建筑和沼泽地宽阔、近乎抽象的景观的结合。 新装修的建筑试图捕捉这种地方感,借鉴废弃建筑的遗存纹理,并参考沿海景观的咸涩品质。 例如,Britten Studio的裸露的分级混凝土墙体,是为了让人联想到Aldeburgh的碎石滩,而门厅里的淡栗色条形天花板,既是指现场发现的旧石板和石膏墙,也是指建筑周围起伏的芦苇床。 这两个装置主要是为了建立最佳的声学条件。
Musicians are drawn to Snape Maltings' unique sense of place, a combination of the austere industrial architecture and the wide, almost abstract landscape of the marshes. The newly renovated buildings seek to capture that sense of place, drawing on the surviving texture of the derelict buildings and making reference to the salty, astringent quality of the coastal landscape. The exposed, graded aggregate concrete walls of the Britten Studio, for example, are designed to recall the shingle beach at Aldeburgh, whilst the pale chestnut strip ceilings in the foyer refer both to the old lath and plaster walls found on site and to the undulating reed beds that surround the building. Both of these devices are primarily designed to establish optimal acoustic conditions.

整个方案所使用的材料都尽可能地回收利用,既保持了建筑的历史感,又减少了项目的能耗。 使用农用屋面板和人造石板(倒置铺设,以避免过度抛光),既经济又保持了简单、朴素的美感。日光在整个方案中得到最大限度的利用,以保持排练时与外界的联系,并降低能源成本。 双重照明系统(用于排练和表演)被纳入,以最大限度地减少能源使用。
Materials used throughout the scheme were salvaged and recycled wherever possible, both to maintain the sense of history within the building and to reduce the embodied energy of the project. Agricultural roofing sheet and manmade slates (laid upside down to avoid an over polished finish) are used for economy but also to maintain a simple, unadorned aesthetic. Daylight is maximised throughout the scheme to maintain contact with the outside world during rehearsal and to reduce energy costs. Dual lighting systems (for rehearsal and performance) are incorporated to minimise energy usage.

该项目面临的技术挑战相当大:声学规格要达到录音标准,需要复杂的双层皮肤隔离和非常厚重的屋顶结构,极度安静的通风系统和特殊的玻璃;两个主要空间的排练和表演使用需要可变的声学,通过大型可伸缩窗帘和横幅以及倾斜的墙壁和穿孔木质低音吸收板来实现;复杂的技术基础设施允许音乐、歌剧、视频和交叉工作的开发和执行;由于高潮的洪水风险,需要在底层使用防水混凝土底层结构和坚固的饰面。
下一阶段的工作,Dovecot工作室刚刚完成。工作室位于十九世纪鸽舍的废墟中,并将维多利亚时代结构的内部体积表现为一个Cor-ten钢制 "衬里",这是一个单壳焊接结构,建在废墟旁边,完成后再吊入。该建筑完全采用单体焊接,就像船体一样,以达到风雨无阻的效果,然后再安装上简单的胶合板内衬。
The technical challenges of the project were considerable: an acoustic specification to recording standards required sophisticated double skin isolation and very heavy roof construction, extremely quiet ventilation systems and specialised glazing; the rehearsal and performance use of the two principal spaces required a variable acoustic, achieved with large retractable drapes and banners along with angled walls and perforated timber bass absorbency panels; a sophisticated technical infrastructure allows music, opera, video and crossover work to be developed and performed; the risk of flooding due to high tides required the use of waterproof concrete substructure and robust finishes at ground floor level.
The next phase of the work, the Dovecot Studio has just been completed. The Studio inhabits the ruins of a nineteenth century dovecot and expresses the internal volume of the Victorian structure as a Cor-ten steel ‘lining’, a monocoque welded structure that was built next to the ruin and craned in when complete. The building is fully welded in a single piece, like the hull of a ship, to achieve weather tightness, and then fitted with a simple plywood inner lining.

一个大的北面采光屋顶窗户为艺术家提供了均匀的光线,而一个带写字台的小夹层平台则结合了一个全开的玻璃角窗,可以远眺沼泽地向海的景色。单一的空间将被艺术家们使用(它可以作为一个简单的寝室和一个紧凑的厨房),被音乐家们作为排练或表演的空间(有一个大的开放的门通向相邻的庭院),被工作人员用于会议或作为一个临时的展览空间。
A large north light roof window provides even light for artists, while a small mezzanine platform with a writing desk incorporates a fully opening glazed corner window that gives long views over the marshes towards the sea. The single volume will be used by artists in residence (it can operate as a simple bedsitting room with a compact kitchen), by musicians as rehearsal or performance space (there is a large opening door to an adjoining courtyard), by staff for meetings or as a temporary exhibition space.













建筑师:Haworth Tompkin
年份:2009年
摄影:Philip Vile
建筑师:Haworth Tompkins Limited
项目经理:Applied Solutions (Projects) Limited
结构工程师:Price and Myers LLP
环境工程师:Ernest Griffiths
工料测量师:Davis Langdon
剧院顾问:Charcoalblue Ltd
主承包商:Haymills
声学工程师:Arup Acoustics
统筹人:PFB Construction Management Services Limited
访问顾问:Babel Limited
城市:伦敦
国家:英国
Architects: Haworth Tompkins
Year: 2009
Photographs: Philip Vile
Architects:Haworth Tompkins Limited
Project Manager:Applied Solutions (Projects) Limited
Structural Engineer:Price and Myers LLP
Environmental Engineer:Ernest Griffiths
Quantity Surveyor:Davis Langdon
Theater Consultant:Charcoalblue Ltd
Main Contractor:Haymills
Acoustic Engineer:Arup Acoustics
Cdm Coordinator:PFB Construction Management Services Limited
Access Consultant:Babel Limited
City:London
Country:United Kingdom