该项目是在Colonia Condesa的Alfonso Reyes大道和Saltillo街的拐角处设计一座8个住宅的建筑。该项目将建筑与长边界分开,以设计一个17米高的转角,由此产生的体量通过其结构节奏与立面的开口和阳台相对应来表达。
The commission was to design a building for 8 dwellings on the corner of Alfonso Reyes Avenue and Saltillo Street, in Colonia Condesa. The project approach separates the building from the long boundary, in order to design the corner with a single gesture 17 meters high, where the resulting volume is expressed through its structural rhythm in counterpoint to the openings and balconies on the facade.


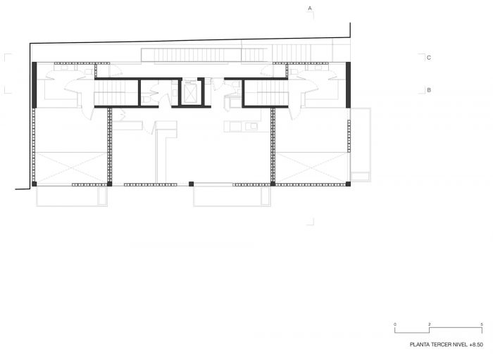
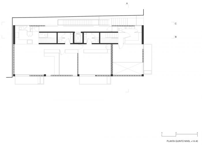
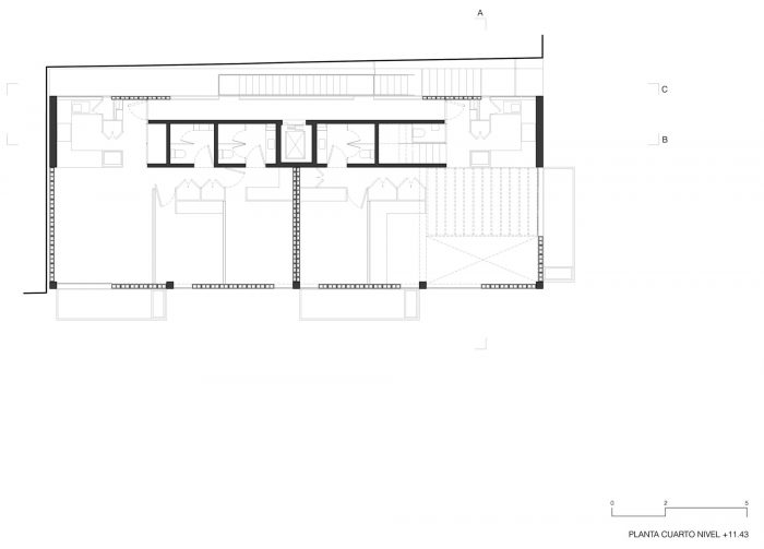
该结构由连接在空心混凝土砖墙上的混凝土刚性框架组成,这为结构提供了额外的刚性。在横向上,建筑被分为两个结构舱,第一个舱(朝向长边界)作为刚性服务核心、流通和厨房,第二个舱(朝向街道)作为轻质舱,由轻质板、木质阁楼和轻质墙组成。
The structure is comprised of concrete rigid frames attached to walls of hollow concrete block, which provide additional rigidity to the structure. In the transverse direction, the building is divided into two structural bays, the first (towards the long boundary) functions as a rigid services core, circulation, and kitchens, and the second (towards the street) functions as a light bay of lightened slabs, wooden lofts and light walls.


开口的构成被认为是缺乏刚性的墙,而不是外墙上的一个洞。在建筑内部,有八个住宅被设计成结合了一层和两层的类型。垂直循环被连接到与相邻体量的分离处,使这条小巷成为进入住宅的通道。
The composition of openings is posed as the lack of a rigid wall, instead of a hole in the facade. Inside the building, eight dwellings are designed combining typologies of one and two levels. Vertical circulations are attached to the volume at the separation with the adjoining one, making this alley the access to the homes.





































Architects: Ambrosi I Etchegaray
Year : 2012
Manufacturers : Grupo JOBEN
Collaborators : Gabriel Ortiz, Rubén Oliveros, Miguel Montor
Client : Grupo Desarrollador FG2. Arq. Fernando Guevara
City : Mexico City
Country : Mexico