温哥华的建筑师苏珊和大卫-斯科特推出了他们的实践,完成了位于温哥华岛北端的高山粉尘天堂的远程滑雪板小屋。该小屋的建造是出于一种愿望,即直接将设计和建造作为一种单一的行为,以滑雪时经历的自由来工作,并以冒险为中心,不受预先决定的约束。
Vancouver architects Susan and David Scott launch their practice with the completion of a remote snowboard cabin located in an alpine powder haven on the North end of Vancouver Island. The cabin was constructed out of a desire to directly design and build as a singular act, to work with the freedom one experiences when snowboarding, and in a manner which is centered in the adventure and not bound heavily in pre-determination.



该结构由道格拉斯冷杉柱子、粗锯冷杉木材和刨光的冷杉内部装饰组成。建筑方法的确定是为了避免机器挖掘,抵御每年的降雪,抵御主要的风,并以高于地面积雪高度的方式来建造建筑。这些材料都保持着原始的形式和外观。外墙是用风化成周围森林色调的雪松覆盖的。
The structure consists of douglas fir columns, rough sawn fir lumber, and planed fir interior finish. The construction approach was determined to avoid machine excavation, to withstand the annual snowfall, to resist the dominant winds and to build in a manner which elevates the building above the height of the accumulated snow on the ground. The materials are left in their raw form and finish. The exterior is clad in cedar which has weathered to the tone of the surrounding forest.



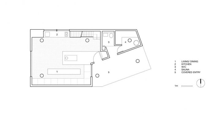
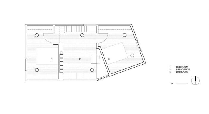
这个100平方米的小屋没有电,用一个木头火炉取暖。水从当地收集并运入。它位于一个社区经营的高山娱乐区,每年有1500厘米的积雪和传奇性的粉末。小屋位于海拔1300米的地方,一年中有五个月可以通过碎石路直接到达,在其他月份,设备和材料由雪橇运到现场。
The 100 sqm cabin is without electricity and is heated by a wood stove. Water is collected from a local source and carried in. It is located in a community operated alpine recreation area which has 1500cm of annual snow accumulation and legendary powder. The cabin is located at 1300m above sea level and is directly accessible by gravel road five months of the year, during the other months equipment and materials are carried by toboggan to the site.











Architects: Scott & Scott Architects
Area : 100 m²
Year : 2013
City:PORT HARDY
Country:Canada