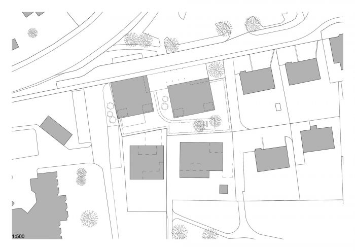
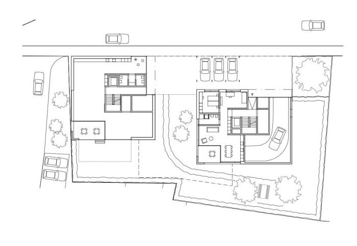
在靠近Sempach小镇的一个理想地点,一个新的老年公寓已经被创建。两座独立的建筑以相同的建筑语言竖立起来,开辟了一个空间,创造了一个明确的入口情况。五层楼的主楼位于靠近埃歇尔大街的地方。在它的底层是一个备受赞赏的社区空间,有一个花园座位区。沿着前院,但稍稍向后移动的是第二个较低的体量。
In an ideal location close to the small town of Sempach, a new senior residence home has been created. Two separate buildings were erected in the same architectural language, opening up a space that creates a clearly defined entrance situation. The five-story head building is located closer to Eicherstrasse. On its ground floor is a highly appreciated community space with a garden seating area. Along the front yard, but slightly moved rearward is the second, lower volume.




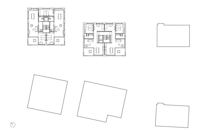
这两座建筑都体现了清水混凝土的喷砂外墙,其结构是由水平缝隙组成的。冲孔窗户的叠加排列使外墙的整体外观更加均匀。总共有15套退休公寓,分为2.5和3.5个房间的住宿。
Both buildings manifest fair-faced concrete with a sandblasted façade, which is structured by horizontal joints. The additive arrangements of the punched windows provide an even overall appearance of the façade. There are a total of 15 retirement apartments, divided into 2.5 and 3.5 room accommodations.

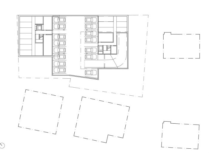
平面图、交通基础设施和物质化都考虑到了适合年龄的生活。两个体量都呈现出一个带有楼梯和宽敞电梯的核心结构。公寓的起居室和用餐区有三面照明,以及两面的凉亭,从上层可以看到湖景。
Floor plans, transportation infrastructure, and materialization were considered with respect to age-appropriate living. Both volumes present a core structure with staircases and spacious elevators. The apartments convince with a trilateral illumination of the living- and dining area, as well as two-sided loggias, with a view of the lake from the upper stories.


















Architects: B2G ARCHITEKTEN, dolmus Architekten
Area : 1245 m²
Year : 2019
Photographs :Aytac Pekdemir
Lead Architects Preproject To Building Permit : Cédric von Däniken, Gani Turunc
Lead Architect Construction Management : Kurt Gabriel
City : Sempach
Country : Switzerland