保持建筑师D.Javier Fontán Gamarra的原始建筑的一致性,不需要辞职。或者至少是以最低限度的放弃。体积的振幅,自然采光,在没有直接进入外墙的地方,宽阔和视觉相关的流通空间。
Maintain the coherence of the original building of the architect D. Javier Fontán Gamarra without resignations. Or at least with the minimum renunciations. Amplitude of the volume, natural lighting, where there is no direct access to the façade, wide and visually related circulation spaces.



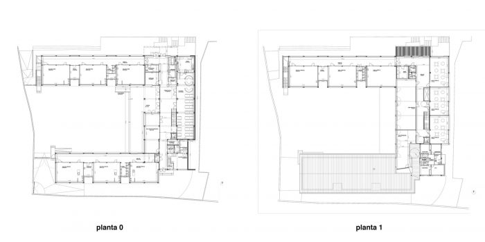
循环的清晰度和颜色的使用作为工具,为其小用户与社会和文化层面的第一次接触建立一个温暖的环境。干预措施扩大了三个单元的教室项目,并相应地调整了公共用途的方案。该项目用扩大的教学计划取代了叠加在建筑上的体育馆的体积。内部楼梯的核心被重新安置,电梯和疏散出口被纳入前墙,以符合现行法规。
The clarity of the circulations and the use of color as tools to build a warm environment for the first contact with the social and cultural dimension of its small users. The intervention expands the classroom program in three units and adapts the program of common uses accordingly. The project replaces the volume of the gym superimposed on the building by the expanded teaching program. The nucleus of internal stairs is relocated and an elevator and evacuation exits are incorporated in the front walls to comply with current regulations.

1988年的原始建筑在其项目中具有明确和合理的组织。扩建和适当性是基于建筑的总体方案、总体组织和保持一楼和二楼循环的清晰性。在外部,该干预措施减少了门廊的面积。为了缓解这种不方便,西面的走道的盖子被投射到飞行器上,这样就恢复了外部的表面。屋顶在心理运动室中加入了一个双门,使其直接与有顶门廊相连,并增加了灵活使用这套房子的可能性。
The original building of 1988 has a clear and justified organization in its project. The extension and the adequacy are based on the general scheme of the building, the general organization and the maintenance of the clarity of the circulations both on the ground floor and on the first floor. Externally, the intervention reduces the porch area. To alleviate this inconvinient, the cover of the west alignment is projected on the flight so that the exterior surface is recovered. The roof incorporates a double door in the psychomotor room to connect it directly to the covered porch and increase the possibilities of flexible use of the set.


这是一个对所有深度都有地基的建筑的干预,建议仅限于现有楼层的投影,避免扩展到现有排列之外的限制,并使投资合理化以避免新的深度地基。尽可能地重新利用现有的结构。体育馆的金属结构并没有被拆除,而是在其基础上进行必要的修改。目前的网络被改造成桁架,以便能够增加灯光并取代西侧立面的支撑,使其与新的分布相匹配。桁架西面的飞行部分补偿了拟建支柱之间的光线增加。
It is an intervention in a building with deep foundation in all its depth, the proposal is limited to the projection in the existing floor, avoiding extending the limits beyond the existing alignments and rationalizing the investment to avoid new deep foundations. As far as possible, the existing structure is reused. The metal structure of the gym is not dismantled, but it is built on with the necessary modifications. The current networks are transformed into trusses to be able to increase the lights and displace the supports of the west façade, making them compatible with the new distribution. The flight to the west of the truss partially compensates for the increase in light between the proposed pillars.

确保新的周边件的自然采光是很简单的。在一楼和一楼的中央通道的情况下,特别是在一楼现有的餐厅,它是相当复杂的。为了达到目的,它使用了盖子体积的边缘,它被覆盖在一个铰链序列中,并在其上插入天窗(垂直关闭)。这种照明源在上层走廊上是自然的,它与底层天花板上的开孔相结合,以便为没有外墙的空间提供自然光。此外,随着门廊的关闭,餐厅被改造成西面的室内,它需要通风口和与外部的直接照明。为了达到这个目的,在南面的墙上打孔,并在外墙上开了一个新的窗户。
Ensuring natural lighting in the new perimetral pieces is simple. In the case of the central circulations, on the ground floor and the first one, and especially in the existing dining room of the ground floor, it is quite more complicated. To achieve the purpose it uses the edge of the volume of the cover, which is covered in to a hinge sequence, and on which the skylights (vertical closing) are inserted. This source of lighting is natural over the upper corridor and it is combined with the opening of holes in the ceiling of the ground floor in order to provide with natural light the spaces without facade. In addition, the dining room whom with the closing of the porch is transformed in the interior in the west, it requires ventilation openings and direct lighting with the exterior. For achiving this purpose the wall is perforated in the south and a new window is located in the facade









Architects: azab
Area : 2054 m²
Year : 2018
Photographs :Luis Diaz Diaz
Manufacturers : Cortizo, Forbo Flooring Systems, Dott.Gallina, HERAKLITH, Kalzip, Soleco, Zehnder
Lead Architects : Cristina Acha, Miguel Zaballa, Andrés Iza
Structural Architect : Jon Bilbao
MEP : Unai Martínez de la Hidalga
Collaborators : Ion Gozalo, Alexander Monasterio, Iñaki Herran, Erlantz Maturana
City : Erandio
Country : Spain