该公寓位于40年代的Alvalade特色区,面积为48平方米,这成为一个挑战,该项目旨在通过扩大现有房间来创建一个两居室的公寓。
The apartment located in the characteristic Alvalade district of the '40s has an area of 48 m2, which became a challenge for a project aimed at creating a two-bedroom apartment with an expansion of the existing room.



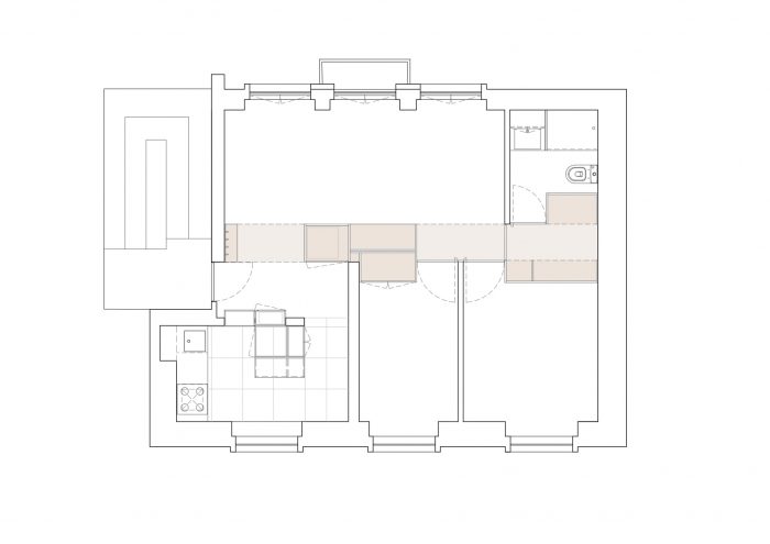
最大的挑战正是在这一点上,创造一个起居室/餐厅,保持两个卧室,以及一个更实用的厨房。在这个意义上,设计和一个多功能的作品,成为这个空间的 "脊柱",是为解决区域的定义和过渡,以及存储的问题而找到的解决方案。
The biggest challenge consisted exactly at this point, creating a living/dining room, maintaining two bedrooms, and a more functional kitchen. In this sense, the design and a versatile piece that became the "spine" of this space was the solution found to solve the problems of definition and transition of areas, as well as storage.



厨房仍然保留在房子的原始区域,但采用了完全现代的设计,通过壁龛加强了存储,优化了空间,同时产生了以前不存在的亮度。长凳被扩大了,通过安装一个半岛,也包括冰箱和储藏室。放在窗下的架子允许快速用餐,而不需要使用餐厅。
The kitchen remained in the original area of the house, but with a completely contemporary design, enhancing the storage through niches and optimizing the space while producing a lightness that previously did not exist. The bench was enlarged, through the installation of a peninsula that also includes the refrigerator and storage also. The shelf placed under the window allows quick meals, without the use of the dining room.


将厨房与其他区域分开的是这块桦木胶合板,它从大厅开始,做了一个衣帽间,结合地板上的尺寸差异(由于技术问题),允许区域的过渡和空间的组织。这个贯穿整个房子的 "盒子 "容纳了洗衣房、客厅的书柜,以及房间的入口和卫生设施。这种材料与以白色为主的公寓的其他部分形成了鲜明的对比,这也隐藏了房子中最私密的区域的入口,因为在作品的配置中,同样材料的旋转门实际上起到了隐藏平面的作用。因此,客厅/餐厅的占用变得非常广泛,因为走廊被破坏了,无论是物理上还是视觉上。
Separating the kitchen from the rest of the area is this piece in birch plywood that begins in the hall by making a cloakroom and that, combined with the differences of dimensions on the floor (due to technical issues), allows the transition of areas and organization of spaces. This "box" that runs through the whole house houses the laundry room, a bookcase for the living room, and the entrances of the rooms and sanitary installation. The material contrasts with the rest of the predominantly white apartment, which also hides the entrances in the most private areas of the house, since the pivoting doors, in the same material, function as practically hidden planes in the configuration of the piece. Thus, the occupation of the living room/ dining room becomes vastly wider, as the corridor is destroyed, both physically and visually.


除了房间和卫生设施,其中的空间被用来最大限度地提高存储功能,一个壁橱也是用同样的木匠工艺建造的。
在材料方面,原来的木质地板被保留下来(有一个新的抽屉),墙壁被涂成白色,证明中心元素是桦木胶合板,扩大了通过两个胸窗和一个阳台进入的自然光。在厨房和卫生设施中,我们选择了中性色调的材料,如Ibiza大理石石材和灰色图案的陶瓷,以加强光线,因为这些空间的面积很小。
In addition to the rooms and sanitary installation, where the spaces were used to maximize storage functionality, a closet was built in the same carpentry.
In regards to the materials, the original wood floor was maintained (with a new draw) and the walls painted white, evidence the central element in birch plywood, enlarging the natural light that enters through two chest windows and a balcony. In the kitchen and sanitary installation, we opted for materials with neutral tones, such as Ibiza marble stone and ceramics with gray patterns, in order to enhance the light, due to the small area of these spaces.

























Architects: Atelier 106
Area : 559 ft²
Year : 2019
Photographs :Do Mal o Menos
Manufacturers : JRBOTAS, Koklatt, Superbotânica
City:LISBON
Country:Portugal