踩在120年的历史上总是有风险的。年龄和传统可以把一切都掩盖在它的重量之下,使改变和改进成为不可能。然而,抹去所有的记忆,从头开始的常见选择似乎是不尊重的。
Stepping on 120 years of history is always risky. Age and tradition can cover everything under its weight and make change and improvement impossible. However, the common alternative of erasing all that memory and starting from scratch seemed disrespectful.




我们选择了第三种方案,就在中间。一方面,我们保留了原始建筑的元素,花砖马赛克地板,天花板上的框架。另一方面,我们拆除了隔墙,以腾出原本被分割和切割的空间,这与客户的要求不一致。这个过程使我们剥去了一层又一层的记忆,直到我们发现原来的砖墙、天花板上的模子、建筑的伤痕等等。
We chose a third option right down the middle. On one hand, we kept elements from the original construction, the nolla-tile mosaic floors, the frames on the ceilings. On the other hand, partition walls came down to free up what was otherwise a divided and chopped space, not aligned with what the client wanted. This process led us to strip down layer upon layer of memories until we found the original brick walls, the moldings on the ceiling, the construction scars, etc…

我们力争在两种建筑方式之间取得平衡。旧式的水泥和水手放的建筑工作方式,以及基于橡木框架和油漆木层的干式建筑新方式。老式的经久不衰,而不成为一种负担。新的铺设没有抹去曾经的东西。
We strived for a balance between two building approaches: The old way of cement and water hand-placed construction work, and the new way of dry construction based on oak frames and layers of painted wood. The old-fashioned endures without becoming a weight. The new is laid without wiping off what once was.

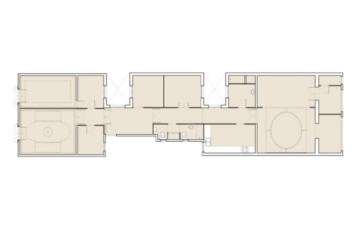
地板是对称铺设的。两端的两个大开口展示了瓷砖地板和从原来的分配中保留下来的模具。一边是主卧室和浴室,对立面更宽的地方是餐厅、厨房、客厅和画廊。这最后一个空间被设想为一个阳台,通过一个可折叠的门系统,可以作为室内和室外。
The floor is laid out symmetrically. Two big openings in opposite ends show off the tile floor and moldings kept from the original distribution. One side encloses the main bedroom and bathroom, and the wider opposing side holds dining room, kitchen, living room and gallery. This last space was conceived as a balcony that could pass as both indoors and outdoors through a system of foldable doors.


原始布局中位于中心的走廊已经不复存在。取而代之的是,一个对称交错的布局被用来创造一个区域的序列,与拱门一起,使开放的视野达到最完整的长度。在这个连接空间中,可以更好地欣赏到原始建筑:砖墙、加泰罗尼亚风格的拱门、铁梁和原始窗框等细节。
The hallway at the center in the original disposition is no more. Instead, a symmetrically staggered disposition is used to create a sequence of areas that, together with the arches, enables an open view to the fullest length. This connecting space is where the original construction is better appreciated: brick walls, catalan-style arches, iron beams and original window frames, among other details.












Architects: TwoBo arquitectura
Area : 1722 ft²
Year : 2018
Photographs :José Hevia
Manufacturers : JUNG, Chef d'oeuvre, Davide Groppi, Marset, Trimble Navigation, Vola
City:BARCELONA
Country:Spain