阿芒特分布在快速变化的布鲁克林北部工业区的三个街区。作为一个创新的文化孵化器,该设施同时具有私人和公共功能,容纳了艺术家工作室、画廊、办公室、一个表演空间和一个咖啡馆。
Amant is spread across three blocks of rapidly changing, industrial North Brooklyn. An innovative cultural incubator, the facility functions both privately and publicly, housing artist studios, galleries, offices, a performance space, and a cafe.





阿芒特设计的核心是城市绿洲的概念,一个艺术创作的步伐可以放慢的空间,允许实验和有意义的思考。园区与该地折衷的后工业社区进行对话,正如其中的组织促进了艺术家、游客和社区之间的对话。
Central to Amant’s design is the idea of an urban oasis, a space where the pace of art-making can slow to allow experimentation and meaningful reflection. The campus converses with the site’s eclectic post-industrial neighborhood, just as the organization housed within fosters dialogue between artist, visitor, and community.



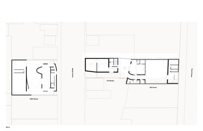
分布式的体量没有与城市环境相隔离,而是与城市的结构相交织。有多个入口的户外空间提供了无数的机会与周围的社区联系起来,同时为城市的强度提供了避难所。穿过大型城市街区的公共路线创造了新的流通和发现方式。庭院和大道穿过现有的建筑并在它们之间穿行,将游客从外围的私人空间带到位于中心的画廊和展览。
Rather than isolating from their urban context, the distributed volumes weave through the fabric of the city. Pockets of outdoor space with multiple entry points provide myriad opportunities to relate to the surrounding neighborhood while providing sanctuary from the city’s intensity. Public routes channeled through large city blocks create new means of circulation and discovery. Courtyards and thoroughfares dart through and between existing buildings, moving visitors past more private spaces at the periphery to centrally located galleries and exhibitions.

这个系列的四栋建筑中的每一栋都提供了一个在比例、大小、光线质量和基础设施方面独特的画廊。这个多孔的园区对策展保持灵活,为本地和国际艺术家提供了从大到小规模的多样化、技术要求高的节目。
Each of the four buildings in this collection contributes a gallery unique in proportion, size, light quality, and infrastructure. The porous campus remains flexible to curation, facilitating diverse, technically demanding programming on large to intimate scales for local and international artists across disciplines.



材料使这些建筑部分匿名。深具质感的模板衬里塑造了现浇混凝土。砖块在平面外旋转以捕捉阴影。镀锌钢条玩弄着反射和透明。每座建筑都舒适地依偎在其工业环境中,提供了令人惊讶的触感、细节和深度,近距离地背叛了熟悉的和日常的。
Materials render the buildings partly anonymous. Deeply textured form liners shape cast-in-place concrete. Bricks rotate out of plane to catch shadows. Galvanized steel bars toy with reflection and transparency. Each building nestles comfortably within its industrial context, offering surprising tactility, detail, and depth up close that betrays the familiar and the everyday.















Architects: SO-IL
Area : 16400 m²
Year : 2021
Photographs :Naho Kubota
Project Manager : Paratus Group
Structural Engineering : Silman Associates
MEP : CES Engineering, Plus Group Engineering
Lighting Design : Buro Happold
Civil Engineering : Bohler Engineering
Acoustics Consultant : Harvey Marshall Berling Associates
Geotechnical Engineering : Langan Engineering, PMT Laboratories
Landscape Architecture : Future Green
Executive Team : Florian Idenburg, Jing Liu, Kevin Lamyuktseung, Ted Baab
Design Team : Pietro Pagliaro, Grace Lee, Sanger Clark, Lucia Sanchez-Ramirez, Álvaro Gómez-Sellés, Kristen Too, Sophie Nichols, Christopher Riley, Alexandre Hamlyn, Regina Teng, Etienne Vallat, Marisa Musing, Tyler Mauri, Julie Perrone, Mario Serrano, Diego Fernandez, John Chow
Expediter : J. Callahan Consulting, Inc.
Concrete : Reginald Hough Associates
Graphics : Linked by Air
Cladding Consultant : Simpson Gumpertz & Heger
Av/Security : Harvey Marshall Berling Associates
City : Brooklyn
Country : United States