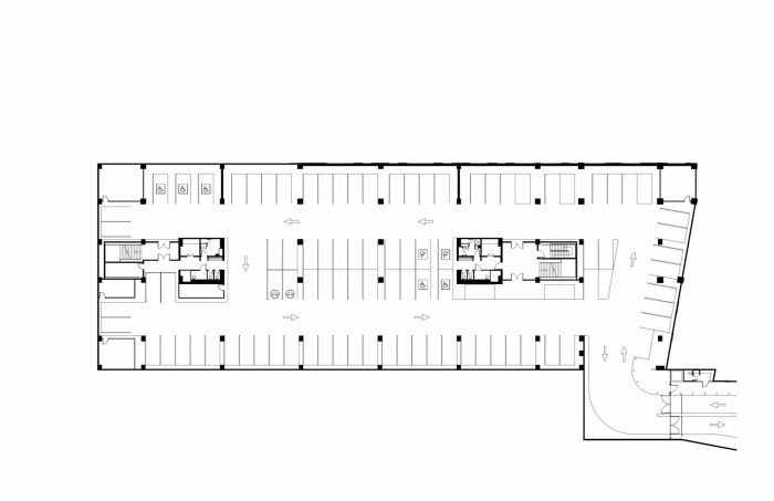
新的高中是一个大胆和前瞻性的方法,为瓜达拉哈拉美国学校基金会现有场地上的1500名学生提供服务。由于周围的房产随着新的发展而变得越来越高,新的7层露天结构也紧随其后,将ASFG的学术空间扩大了一倍,最大限度地利用了绿色空间,并提供了支持21世纪教育的最先进设施。
The new High School is a bold and forward-looking approach to serving 1,500 students on the American School Foundation of Guadalajara’s current site. As surrounding properties grow taller with new development, the new 7-story open-air structure follows their lead by doubling ASFG’s academic space, maximizing green space, and providing state-of-the-art facilities that support 21st Century education.



该项目鲜艳的色彩、雕塑般的造型、天然的材料和简洁的设计,都是受到瓜达拉哈拉的文化遗产和传统与现代建筑的丰富结合的启发。学校的设计借鉴了墨西哥的壁炉建筑、庭院和公共雕塑,拥抱了城市的建筑历史,并通过主题色彩促进了社区认同。
The project’s bright colors, sculptural form, natural materials, and crisp design are inspired by Guadalajara’s cultural heritage and rich combination of traditional and modern architecture. Drawing from Mexico’s cortile buildings, courtyards, and public sculptures, the school’s design embraces the city’s architectural history and fosters community identity through themed colors.

郁郁葱葱的绿色空间将学校与户外联系起来。植被的部署是有策略的,少用耗水的植物,在次要的花园区域放置低水的本地植物。植被通过改善空气质量创造了一个健康的环境,而树木通过提供遮阳板减少了太阳辐射。在城市环境中,绿色植物作为自然的出口,使人的精神焕发活力。
The incorporation of lush green space connects the school to the outdoors. Plantings are deployed strategically, using water-intensive plants sparingly and placing low-water native plants in secondary garden areas. Vegetation creates a healthy environment by improving air quality, and trees reduce solar gain by providing sunshades. Functioning as an outlet to nature in an urban setting, the greenery rejuvenates the human mind.


可持续发展被整合到建筑的设计和施工过程的各个方面。学校90%以上的地方是自然采光,减少了人工照明的电力负荷。学校的开放式设计、房间安排和可操作的通风口促进了自然空气的流动,并贯穿整个建筑。耐用的混凝土地面,由75%的当地沙子和碎石制成,减少了项目材料的数量,并将生产和运输的能源成本降到最低。混凝土的长热滞后,结合瓜达拉哈拉的昼夜温差,使地板从夜间低温中辐射出凉爽的感觉。自然通风和被动冷却节省了空气循环和温度控制所需的能源。
Sustainability is integrated into all aspects of the building’s design and construction process. Over 90% of the school is naturally lit, reducing electrical loads for artificial lighting. The school’s open design, room arrangement, and operable vents promote natural airflow through and across the building. Durable concrete floors, made of 75% local sand and crushed stone, decrease the number of project materials and minimize energy costs for production and transportation. Concrete’s long thermal lag, in conjunction with Guadalajara’s diurnal temperature swing, cause the floors to radiate coolness from low nighttime temperatures. Natural ventilation and passive cooling save energy needed for air circulation and temperature control.


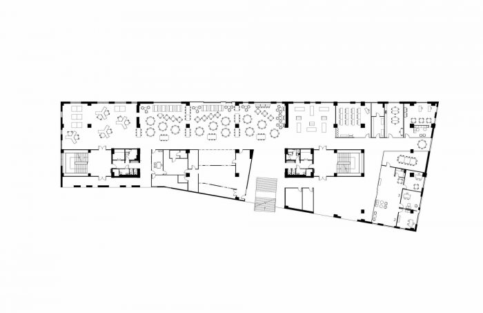
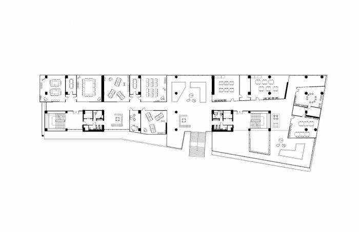
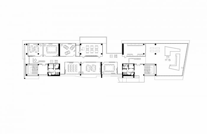
新学校包括许多灵活的学术空间,支持ASFG的教育目标和各种教学和学习方式。室内教室有隔音木板和玻璃墙,在教室内外的学生和教师之间建立了语言和视觉联系。一个新的图书馆、创客空间、动手能力强的科学实验室、分层演示区和合作的公共空间创造了一个引人入胜的学术环境。为了激发自由和社区联系的意识,学生们在户外教室、花园阳台和屋顶露台上进行反思、恢复和激发活力。立面和各个房间由一条有趣的、垂直的、蜿蜒的路径统一起来。该建筑的透明设计和空间配置激发了ASFG不同项目和年级之间的互动。
The new school includes many flexible academic spaces that support ASFG educational goals and various teaching and learning styles. Indoor classrooms have acoustical wood panels and glass walls, establishing verbal and visual connections between students and faculty both inside and outside the classroom. A new library, maker space, hands-on science lab, tiered presentation area, and collaborative common spaces create an engaging academic environment. Motivating a sense of freedom and community connection, students reflect, restore, and energize in outdoor classrooms, garden balconies, and rooftop terraces. Elevations and individual rooms are unified by a playful, vertical, meandering path. The building’s transparent design and spatial configuration stimulate interaction between ASFG’s diverse programs and grade levels.

在开发该项目之前,Flansburgh进行了三次设计研讨会,以更好地了解学校的需求和重点。通过与所有利益相关者当面讨论,公司深入了解了行政部门、教职员工、董事会成员、维修人员、家长和学生的观点。弗兰斯堡面临的挑战是在一个安全的校园里创造出一种欢迎的感觉,在一个小的城市场地上进行扩建,在学校仍在上课时进行施工,并适应未来的建筑阶段。
Before developing the project, Flansburgh conducted three design workshops to better understand the needs and priorities of the school. By discussing with all stakeholders in person, the firm deeply understood the perspectives of administration, faculty, board members, maintenance staff, parents, and students. Flansburgh was challenged to create a sense of welcoming on a secure campus, expand on a small, urban site, construct while the school remained in session, and accommodate future building phases.


该项目的结果是一个独特的,基于地点的学习环境,庆祝它在一个快速增长的城市中的地位。这个现代化的设施最终鼓励了积极的教育、社区参与、创造力和环境意识。
The result of the project is a distinctive, location-based learning environment that celebrates its place in a fast-growing city. The modern facility ultimately encourages positive education, community involvement, creativity, and environmental consciousness.



























Architects: Flansburgh Architects
Area : 17500 m²
Year : 2021
Photographs :Robert Benson
Manufacturers : Cristacurva, Interface, Firenze, Tekno-Step
Principal In Charge : David Croteau
Project Manager/Architect : Kelley Banks
Project Designer : Mike Banks
City : Guadalajara
Country : Mexico